SAVED No Saved House Plans REGISTER LOGIN Empty Cart
Don't lose your saved plans!  Create an account to access your saves whenever you want. See our Terms & Conditions and Privacy Policy.
  • Jump to:
  • All (35)
  • Floor plans (4)
Questions? Get Personalized Help
Home  >  Style  >  Craftsman

Key Specs


Plan Sq Ft

2223
sq ft

Plan Bedrooms

4
Beds

Plan Bathrooms

4
Baths

Plan Floors

2
Floors

Plan Garages

2
Garages

Select Plan Set Options

What's included?

Additional options

Dropdown arrow

Right-Reading Reverse
$250.00
Choose this option to reverse your plans and to have the text and dimensions readable.
2 Car Front-Loading Garage
$0.00
Changes garage to front load
Audio Video Design
$165.00
Receive an overlay sheet with suggested placement of audio and video components.
Construction Guide
$39.00
Educate yourself about basic building ideas with these four detailed diagrams that discuss electrical, plumbing, mechanical, and structural topics.
Subtotal
$2050.00
Best Price Guaranteed*

Also order by phone: 1-888-447-1946
 
Questions about building your home?
Get Personalized Help
We do our best to get back to you within 24 - 48 business hours.
Need an answer faster? Call now...
Phone: 1-888-447-1946
Hours:
Ready for Your Call 7 Days a Week
Every Day 7 am - 8:30 pm Eastern

See our Terms & Conditions and Privacy Policy.

 
Wow!
Cost to Build Reports
Only $1.99 Right Now
Use Code CTBFALL
Our Cost to Build Report gives you a personalized estimate for building your home, based on your location, plan, and materials.
Get Cost To Build Report
Limit one per order.

Residential Construction Guide

Learn Building Basics

This downloadable, 26-page guide is full of diagrams and details about plumbing, electrical, and more.

PLAN 51-1295

This plan can be customized

Tell us about your desired changes so we can prepare an estimate for the design service. Click the button to submit your request for pricing, or call 1-888-447-1946 for assistance.

Modify This Plan

Plan Description


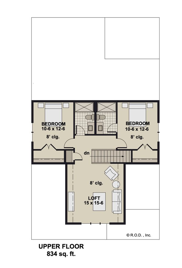
Welcome to this beautifully designed 2223 sq ft Craftsman home, where elegance and functionality harmoniously blend to create a perfect living space. As you step into the elegant foyer, you're immediately drawn to the sightlines that extend from the front to the rear of the home, offering a welcoming and open feel. The kitchen, both functional and attractive, features an island that seats four and provides ample prep space, making it a chef's delight. The great room, adorned with a sophisticated wine bar, is perfect for entertaining or relaxing after a long day. An office located in the rear of the home provides a quiet space for work or study, ensuring privacy and focus. The main level primary suite is a luxurious retreat, complete with a private bath and a generous walk-in closet, offering comfort and convenience. Upstairs, the roomy loft serves as an additional living space, ideal for family activities or as a cozy retreat. Two additional bedrooms provide ample space for family or guests, ensuring everyone has their own private haven. This Craftsman home combines timeless design with modern amenities, creating a space that is both stylish and practical for everyday living.

Full Specs & Features


Dimension

Depth : 59' 6"

Width : 38'

Area

Garage : 400 sq/ft

Main Floor : 1389 sq/ft

Porch : 272 sq/ft

Upper Floor : 834 sq/ft

* Total Square Footage typically only includes conditioned space and does not include garages, porches, bonus rooms, or decks.

Ceiling

Main Ceiling : 9'

Upper Ceiling Ft : 8'

Roof

Roof Framing : Truss

Exterior Wall Framing

Framing : 2x6

Bedroom Features

Lower Level Bedrooms

Main Floor Master Bedroom

Upstairs Bedrooms

Walk In Closet

Kitchen Features

Breakfast Nook

Kitchen Island

Walk In Pantry Cabinet Pantry

Additional Room Features

Den Office Study Computer

Great Room Living Room

Loft

Main Floor Laundry

Master Sitting Area

Mud Room

Wet Bar

Garage Features

Front Entry Garage

Lot Characteristics

Suited For Corner Lot

Suited For Narrow Lot

Suited For View Lot

Outdoor Spaces

Covered Front Porch

Covered Rear Porch

What's Included In This Plan Set


Plans are typically drawn to ¼” scale and include:
  • Foundation Plan(s): This page shows all necessary notations and dimensions including footings, support columns, walls, and excavated/unexcavated areas.
  • Floor Plan(s): Detailed plans, drawn to 1/4" scale for each level showing room dimensions, wall partitions, windows, etc.
  • Exterior Elevations: A blueprint picture of all four sides showing exterior materials and measurements. Drawn to 1/4" and 1/8" scale.
  • Overhead Roof Plan(s): A view of the home from above showing roof pitch, peaks, valleys, and other details.
  • Cross Section(s): A slice of the home from roof to foundation, showing relationships between floors, roof, and foundation.
  • Construction Notes / Detail(s): Shows basic parts and assemblies recommended for the home so the builder can see how things come together.
  • Other Note(s): This plan will not contain an electrical layout.
» See important information before purchasing.
Questions? Call 1-888-447-1946

Plan Set

PDF Set:
$2050.00
PDF plan sets are best for fast electronic delivery and inexpensive local printing.
5 Copy Set:
$2250.00
5 printed plan sets mailed to you.
5 Copy and PDF Set:
$2350.00
5 printed plan sets mailed to you plus PDF plan sets are best for fast electronic delivery and inexpensive local printing.
8 Copy Set:
$2350.00
8 printed plan sets mailed to you.
CAD Set:
$2700.00
For use by design professionals to make substantial changes to your house plan and inexpensive local printing.

Foundation

Crawlspace:
$0.00
Ideal for semi-sloped or level lot, home can be built off of grade, typically 18” - 48”.
Slab:
$400.00
Ideal for level lot, single layer concrete poured directly on grade.

Framing

Wood 2x6:
$0.00
Wood 2x6 Exterior Walls
Wood 2x4:
$250.00
Wood 2x4 Exterior Walls

Additional Options

Right-Reading Reverse:
$250.00
Choose this option to reverse your plans and to have the text and dimensions readable.
2 Car Front-Loading Garage:
$0.00
Changes garage to front load
Audio Video Design:
$165.00
Receive an overlay sheet with suggested placement of audio and video components.
Construction Guide:
$39.00
Educate yourself about basic building ideas with these four detailed diagrams that discuss electrical, plumbing, mechanical, and structural topics.

* Alternate Foundations may take time to prepare.

** Options with a fee may take time to prepare. Please call to confirm.

Unless you buy an “unlimited” plan set or a multi-use license you may only build one home from a set of plans. Please call to verify if you intend to build more than once. Plan licenses are non-transferable and cannot be resold.
Coupon Codes