SAVED No Saved House Plans REGISTER LOGIN Empty Cart
Don't lose your saved plans!  Create an account to access your saves whenever you want. See our Terms & Conditions and Privacy Policy.

PLAN 1114-70

Photographs may show modified designs.

Save
  • Jump to:
  • All (9)
  • Floor plans (1)
Questions? Get Personalized Help
Home  >  Style  >  Cottage

Key Specs


Plan Sq Ft

967
sq ft

Plan Bedrooms

2
Beds

Plan Bathrooms

2
Baths

Plan Floors

1
Floors

Plan Garages

0
Garages

Select Plan Set Options

What's included?

Additional options

Dropdown arrow

Right-Reading Reverse
$245.00
Choose this option to reverse your plans and to have the text and dimensions readable.
Audio Video Design
$165.00
Receive an overlay sheet with suggested placement of audio and video components.
Comprehensive Material List
$295.00
A complete list of building supplies needed to construct the infrastructure of your new house, plus an overlay of materials shown directly on your PDF (foundation to rooftop with interior and exterior materials), and a detailed, itemized door and window schedule showing all sizes and types. Please allow 5-7 Business Days for completion. Note, the Comprehensive list is only available with a PDF purchase. The Comprehensive list can be ordered no matter what additional plan options you have selected.
Construction Guide
$39.00
Educate yourself about basic building ideas with these four detailed diagrams that discuss electrical, plumbing, mechanical, and structural topics.
Lighting Design
$165.00
Receive an overlay sheet with suggested placement of lighting fixtures.
Subtotal
$1395.00
Best Price Guaranteed*

Also order by phone: 1-888-447-1946
 
Questions about building your home?
Get Personalized Help
We do our best to get back to you within 24 - 48 business hours.
Need an answer faster? Call now...
Phone: 1-888-447-1946
Hours:
Ready for Your Call 7 Days a Week
Every Day 7 am - 8:30 pm Eastern

See our Terms & Conditions and Privacy Policy.

 
Wow!
Cost to Build Reports
Only $1.99 Right Now
Use Code CTBFALL
Our Cost to Build Report gives you a personalized estimate for building your home, based on your location, plan, and materials.
Get Cost To Build Report
Limit one per order.

Residential Construction Guide

Learn Building Basics

This downloadable, 26-page guide is full of diagrams and details about plumbing, electrical, and more.

PLAN 1114-70

This plan can be customized

Tell us about your desired changes so we can prepare an estimate for the design service. Click the button to submit your request for pricing, or call 1-888-447-1946 for assistance.

Modify This Plan

Plan Description


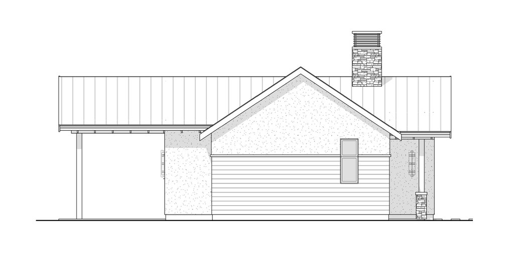
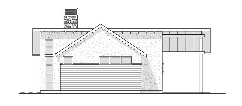
This cottage design floor plan is 967 sq ft and has 2 bedrooms and 2 bathrooms.

Full Specs & Features


Dimension

Depth : 40'

Height : 17' 2"

Width : 40' 9"

Area

Decks : 176 sq/ft

Main Floor : 967 sq/ft

Porch : 26 sq/ft

* Total Square Footage typically only includes conditioned space and does not include garages, porches, bonus rooms, or decks.

Ceiling

Main Ceiling : 9'

Roof

Primary Pitch : 12/12

Roof Framing : Truss

Roof Load : n/a

Roof Type : Standing seam metal

Exterior Wall Framing

Exterior Wall Finish : Stucco, Manufactured Stone, Horizontal Siding

Framing : 2x6

Insulation : Batt insulation

Bedroom Features

Main Floor Bedrooms

Main Floor Master Bedroom

Walk In Closet

Kitchen Features

Kitchen Island

Additional Room Features

Great Room Living Room

Main Floor Laundry

Outdoor Spaces

Covered Front Porch

Covered Rear Porch

Grill Deck Sundeck

More

Suited For Vacation Home

What's Included In This Plan Set


  • Foundation Plan: Footing sizes, slab thickness, floor framing sizes/layout, etc.
  • Floor Plan(s): Detailed dimensions, window/door details, plumbing fixture type/locations, etc. for each level of the home.
  • Roof Plan: Roof framing sizes/layout, roof pitch, attic venting, overhangs, roof finish materials, etc.
  • Exterior Elevations: Views of the front, rear, and sides of the home detailing exterior finish work.
  • Building Sections: Vertical slices of the home showing ceiling heights, floor level changes, and roof profiles.
  • Construction Details: Detailed drawings of foundation/footings, floor framing, door and window framing, roof framing, roof venting, etc.

What is NOT INCLUDED in the plans:

  • Architectural or Engineering Stamp: If required, stamps and seals must be obtained through a local architect or engineer. PDF and CAD plan licenses allow you to work with independent sources for compliance. Check with your builder to ensure they can work with you.
  • Site Plan: Site plans are handled locally, if required. Someone needs to walk the property and take measurements.
  • Plumbing Plans: Your contractor or utility subcontractor will prepare details for water and waste systems according to your property and local codes.
  • Electrical Plans: Not included but can be prepared by request for an additional fee.
  • Mechanical Drawings: Location of heating and air equipment and ductwork is to be provided by the builder, subcontractor, or engineer.
  • Framing Layouts: Beam sizes and locations are not calculated since requirements vary by region.
  • Material Lists: Can be purchased as an add-on. Please allow 5–7 business days for delivery.
  • Renderings, Photography, or Marketing Imagery: All images are copyrighted by the plan designer and used on the website with permission.
  • Energy Calculations: Title 24, ResCheck, and other energy code calculations are handled locally if required.
  • Building Codes: Because of varying local requirements, the plans may not include all information needed by your building department. If needed, we recommend hiring a local design professional or engineer to bring the plans into compliance.
  • Engineering: Some states require a licensed architect or engineer to review and stamp the plans. If this applies where you’re building, a local professional will assist with your permit plans.

Please call or send us a message to verify what is / is not included with this set of plans.

» See important information before purchasing.
Questions? Call 1-888-447-1946

Plan Set

PDF Set:
$1395.00
PDF plan sets are best for fast electronic delivery and inexpensive local printing.
CAD and PDF Set Unlimited Build:
$2395.00
For use by design professionals to make substantial changes to your house plan and inexpensive local printing plus PDF plan sets are best for fast electronic delivery and inexpensive local printing.

Foundation

Crawlspace:
$0.00
Ideal for semi-sloped or level lot, home can be built off of grade, typically 18” - 48”.
Slab:
$395.00
Ideal for level lot, single layer concrete poured directly on grade.

Framing

Wood 2x6:
$0.00
Wood 2x6 Exterior Walls

Additional Options

Right-Reading Reverse:
$245.00
Choose this option to reverse your plans and to have the text and dimensions readable.
Audio Video Design:
$165.00
Receive an overlay sheet with suggested placement of audio and video components.
Comprehensive Material List:
$295.00
A complete list of building supplies needed to construct the infrastructure of your new house, plus an overlay of materials shown directly on your PDF (foundation to rooftop with interior and exterior materials), and a detailed, itemized door and window schedule showing all sizes and types. Please allow 5-7 Business Days for completion. Note, the Comprehensive list is only available with a PDF purchase. The Comprehensive list can be ordered no matter what additional plan options you have selected.
Construction Guide:
$39.00
Educate yourself about basic building ideas with these four detailed diagrams that discuss electrical, plumbing, mechanical, and structural topics.
Lighting Design:
$165.00
Receive an overlay sheet with suggested placement of lighting fixtures.

* Alternate Foundations may take time to prepare.

** Options with a fee may take time to prepare. Please call to confirm.

Unless you buy an “unlimited” plan set or a multi-use license you may only build one home from a set of plans. Please call to verify if you intend to build more than once. Plan licenses are non-transferable and cannot be resold.
Coupon Codes