HomePlans.com

Questions about this plan? Visit HomePlans.com today or call 1-888-447-1946

View plan at /plan/100-square-feet-3-bedroom-2-00-bathroom-0-garage-adobe-southwestern-mediterranean-sp372239

Plan 1106-105
1200 sq/ft
3 beds
2 baths
43' 8" wide
45' 10" deep
Plan QR Code
Pricing
Plan Set
PDF Set
$1300.00
Foundation
Slab
+$0.00
Framing
Metal (PEMB)
$0.00
Wood 2x4
$0.00
Wood 2x6
$300.00

Full Specs & Features


Dimension
Depth: 45' 10"
Height: 12'
Width: 43' 8"
Area
Porch: 204 sq/ft
*Total Square Footage only includes conditioned space and does not include garages, porches, bonus rooms, or decks.
Ceiling
Lower Ceiling: 8'
Upper Ceiling Ft: 11'
Roof
Primary Pitch: 4/12
Roof Framing: Cold Formed Steel
Roof Load: Inquire for info
Exterior Wall Framing
Framing: Cold Formed Steel
Bedroom Features
Main Floor Bedrooms
Main Floor Master Bedroom
Additional Room Features
Main Floor Laundry
Lot Characteristics
Suited For Corner Lot
Outdoor Spaces
Covered Rear Porch
More
Economical To Build
Empty Nester
Suited For Vacation Home
Energy Efficient Features
Energy Efficient Design

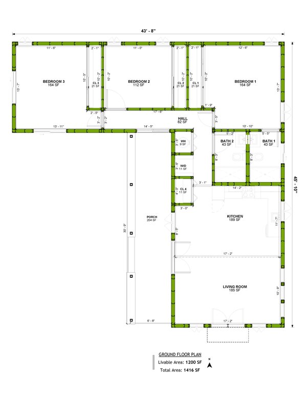
Floor Plan - Main Floor

Home Plan - Floor Plan - Main Floor for Adobe / Southwestern House Plan #1106-105 - 3 bed, 2 bath
HomePlans.com
Questions about this plan? Visit HomePlans.com today or call 1-888-447-1946
View this plan at /plan/100-square-feet-3-bedroom-2-00-bathroom-0-garage-adobe-southwestern-mediterranean-sp372239

In addition to the house plans you order, you may also need a site plan that shows where the house is going to be located on the property. You might also need beams sized to accommodate roof loads specific to your region. Your home builder can usually help you with this. You may also need a septic design unless your lot is served by a sanitary sewer system. Many areas now have area-specific energy codes that also have to be followed. This normally involves filling out a simple form providing documentation that your house plans are in compliance.

To find out what documents you should expect with your house plans, see /help/faq#faq13.

In some regions, there is a second step you will need to take to insure your house plans are in compliance with local codes. Some areas of North America have very strict engineering requirements. Examples of this would be earthquake-prone areas of California and the Pacific Coast, hurricane risk areas of the Florida, Gulf & Carolina Coasts. New York, New Jersey, Nevada, and parts of Illinois require review by a local professional as well. If you are building in these areas, it is most likely you will need to hire a state licensed structural engineer to analyze the design and provide additional drawings and calculations required by your building department. If you aren’t sure, building departments typically have a handout they will give you listing all of the items they require to submit for and obtain a building permit.

Additionally, stock plans do not have a professional stamp attached. If your building department requires one, they will only accept a stamp from a professional licensed in the state where you plan to build. In this case, you will need to take your house plans to a local engineer or architect for review and stamping. In addition, plans which are used to construct homes in Nevada are required to be drawn by a licensed Nevada architect.

Note: All sales on house plans are final. No refunds or exchanges can be given once your order has been fulfilled or once we have begun to customize a home plan to your specifications.