HomePlans.com

Questions about this plan? Visit HomePlans.com today or call 1-888-447-1946

View plan at /plan/1360-square-feet-3-bedroom-2-00-bathroom-2-garage-sp145798

Plan 42-411
1360 sq/ft
3 beds
2 baths
54' 8" wide
44' 8" deep
Plan QR Code
Pricing
Plan Set
5 Copy Set
$750.00
8 Copy Set
$800.00
PDF Set
$800.00
Single Set
$700.00
Foundation
Crawlspace
+$0.00
Slab
+$0.00
Framing
Wood 2x4
$0.00
Right-Reading Reverse
Each
+$175.00
Additional Construction Sets
Each Additional Set
+$60.00/each
Audio Video Design
Each
$100.00
Construction Guide
Each
$39.00
Lighting Design
Each
$100.00

Full Specs & Features


Dimension
Depth: 44' 8"
Height: 20'
Width: 54' 8"
Area
Bonus: 312 sq/ft
First Floor: 1360 sq/ft height 8'
*Total Square Footage only includes conditioned space and does not include garages, porches, bonus rooms, or decks.
Roof
Primary Pitch: 8:12
Roof Framing: Truss
Roof Type: Shingle
Exterior Wall Framing
Exterior Wall Finish: Siding
Framing: Wood - 2x4
Bedroom Features
Fireplace
Main Floor Master Bedroom
Split Bedrooms
Kitchen Features
Breakfast Nook
Kitchenette Wet Bar
Additional Room Features
Great Room Living Room
Main Floor Laundry
Open Floor Plan
Unfinished Future Space
Outdoor Spaces
Courtyard
Covered Front Porch
Covered Rear Porch
Wrap Around Porch
Rooms

3rd BR Closet:

16 sq/ft width 5' x depth 3' 4"

Bathroom 2:

45 sq/ft width 5' x depth 9'

Bedroom 2:

100 sq/ft width 10' x depth 10'

Bedroom 2 Closet:

12 sq/ft width 6' x depth 2'

Bedroom 3:

100 sq/ft width 10' x depth 10'

Bedroom 3 Closet:

12 sq/ft width 6' x depth 2'

Bonus Room - Finished:

240 sq/ft width 12' x depth 20'

Breakfast Room:

100 sq/ft width 10' x depth 10'

Coat Closet:

5 sq/ft width 2' 6" x depth 2'

Covered Porch:

60 sq/ft width 15' x depth 4'

Dining Room:

100 sq/ft width 10' x depth 10'

Foyer:

39 sq/ft width 4' 2" x depth 9' 6"

Front Entry:

41 sq/ft width 4' 2" x depth 10'

Garage:

380 sq/ft width 19' x depth 20'

Garage Storage:

36 sq/ft width 10' x depth 3' 8"

Gathering Room:

155 sq/ft width 10' x depth 15' 6"

Hall:

557 sq/ft width 30' 8" x depth 18' 2"

Hall Bathroom:

50 sq/ft width 5' x depth 10'

Hall Closet:

5 sq/ft width 2' 6" x depth 2'

Kitchen:

105 sq/ft width 10' 6" x depth 10'

Laundry Room:

32 sq/ft width 5' 10" x depth 5' 6"

Master Bathroom:

166 sq/ft width 16' 8" x depth 10'

Master Bedroom:

180 sq/ft width 15' x depth 12'

Master Closet:

25 sq/ft width 5' x depth 5'

Master Closet Two:

25 sq/ft width 5' x depth 5'

Pantry:

4 sq/ft width 2' x depth 2'

Patio:

149 sq/ft width 18' 8" x depth 8'

Porch - Front:

70 sq/ft width 15' x depth 4' 8"

Porch - Rear:

149 sq/ft width 18' 8" x depth 8'

Utility Room:

31 sq/ft width 5' 4" x depth 5' 10"

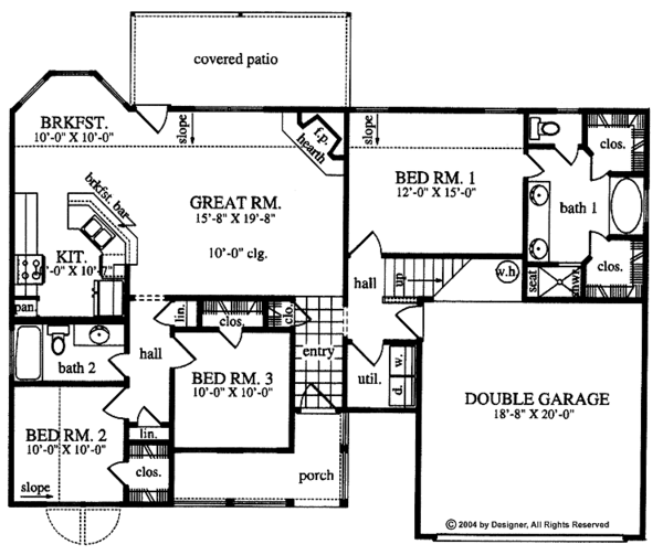
Floor Plan - Main Floor

Home Plan - Floor Plan - Main Floor for Country House Plan #42-411 - 3 bed, 2 bath

Floor Plan - Other Floor

Home Plan - Floor Plan - Other Floor for Country House Plan #42-411 - 3 bed, 2 bath
HomePlans.com
Questions about this plan? Visit HomePlans.com today or call 1-888-447-1946
View this plan at /plan/1360-square-feet-3-bedroom-2-00-bathroom-2-garage-sp145798

In addition to the house plans you order, you may also need a site plan that shows where the house is going to be located on the property. You might also need beams sized to accommodate roof loads specific to your region. Your home builder can usually help you with this. You may also need a septic design unless your lot is served by a sanitary sewer system. Many areas now have area-specific energy codes that also have to be followed. This normally involves filling out a simple form providing documentation that your house plans are in compliance.

To find out what documents you should expect with your house plans, see /help/faq#faq13.

In some regions, there is a second step you will need to take to insure your house plans are in compliance with local codes. Some areas of North America have very strict engineering requirements. Examples of this would be earthquake-prone areas of California and the Pacific Coast, hurricane risk areas of the Florida, Gulf & Carolina Coasts. New York, New Jersey, Nevada, and parts of Illinois require review by a local professional as well. If you are building in these areas, it is most likely you will need to hire a state licensed structural engineer to analyze the design and provide additional drawings and calculations required by your building department. If you aren’t sure, building departments typically have a handout they will give you listing all of the items they require to submit for and obtain a building permit.

Additionally, stock plans do not have a professional stamp attached. If your building department requires one, they will only accept a stamp from a professional licensed in the state where you plan to build. In this case, you will need to take your house plans to a local engineer or architect for review and stamping. In addition, plans which are used to construct homes in Nevada are required to be drawn by a licensed Nevada architect.

Note: All sales on house plans are final. No refunds or exchanges can be given once your order has been fulfilled or once we have begun to customize a home plan to your specifications.