HomePlans.com

Questions about this plan? Visit HomePlans.com today or call 1-888-447-1946

View plan at /plan/1919-square-feet-3-bedroom-2-50-bathroom-2-garage-sp133868

Plan 21-292
1919 sq/ft
3 beds
2.5 baths
69' wide
59' 8" deep
Plan QR Code
Pricing
Plan Set
PDF Set
$1300.00
5 Copy Set
$1400.00
5 Copy and PDF Set
$1600.00
CAD Set
$1950.00
Single Set
$1150.00
Foundation
Basement
+$0.00
Right-Reading Reverse
Each
+$150.00
Additional Construction Sets
Each Additional Set
+$65.00/each
Audio Video Design
Each
$165.00
Construction Guide
Each
$39.00
Lighting Design
Each
$165.00
Material List
Each
+$150.00
Mirror Reversed Sets
Each Additional Set
+$50.00

Full Specs & Features


Dimension
Depth: 59' 8"
Height: 24' 2"
Width: 69'
Area
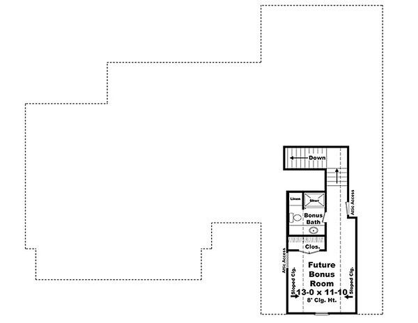
Bonus: 338 sq/ft
First Floor: 1919 sq/ft height 9'
Garage: 714 sq/ft
*Total Square Footage only includes conditioned space and does not include garages, porches, bonus rooms, or decks.
Ceiling
Bonus Ceiling: 8'
Main Ceiling: 9'
Roof
Primary Pitch: 10:12
Roof Framing: Conventional
Roof Type: Hip / Gable
Secondary Pitch: 12:12
Exterior Wall Framing
Exterior Wall Finish: Siding/Stone
Framing: 2"x4"
Bedroom Features
Split Bedrooms
Walk In Closet
Kitchen Features
Breakfast Nook
Eating Bar
Additional Room Features
Den Office Study Computer
Great Room Living Room
Play Flex Room
Storage Area
Garage Features
Side Entry Garage
Lot Characteristics
Suited For Corner Lot
Outdoor Spaces
Covered Front Porch
Covered Rear Porch
Rooms

Bedroom 2:

124 sq/ft width 11' 6" x depth 10' 10"

Bedroom 3:

122 sq/ft width 11' 6" x depth 10' 8"

Bonus Room - Finished:

143 sq/ft width 13' x depth 11'

Breakfast:

95 sq/ft width 11' 6" x depth 8' 4"

Dining Room:

124 sq/ft width 11' 6" x depth 10' 10"

Garage:

528 sq/ft width 22' 10" x depth 23' 2"

Great Room:

282 sq/ft width 17' 6" x depth 16' 2"

Kitchen:

164 sq/ft width 11' 6" x depth 14' 4"

Laundry Room:

55 sq/ft width 9' 2" x depth 6'

Master Bathroom:

146 sq/ft width 9' x depth 16' 4"

Master Bedroom:

200 sq/ft width 13' 6" x depth 14' 10"

Master Closet:

49 sq/ft width 9' x depth 5' 6"

Master Closet Two:

38 sq/ft width 9' x depth 4' 4"

Porch - Front:

192 sq/ft width 32' x depth 6'

Porch - Rear:

237 sq/ft width 29' 8" x depth 8'

Floor Plan - Main Floor

Home Plan - Floor Plan - Main Floor for Craftsman House Plan #21-292 - 3 bed, 2.5 bath

Floor Plan - Upper Floor

Home Plan - Floor Plan - Upper Floor for Craftsman House Plan #21-292 - 3 bed, 2.5 bath
HomePlans.com
Questions about this plan? Visit HomePlans.com today or call 1-888-447-1946
View this plan at /plan/1919-square-feet-3-bedroom-2-50-bathroom-2-garage-sp133868

In addition to the house plans you order, you may also need a site plan that shows where the house is going to be located on the property. You might also need beams sized to accommodate roof loads specific to your region. Your home builder can usually help you with this. You may also need a septic design unless your lot is served by a sanitary sewer system. Many areas now have area-specific energy codes that also have to be followed. This normally involves filling out a simple form providing documentation that your house plans are in compliance.

To find out what documents you should expect with your house plans, see /help/faq#faq13.

In some regions, there is a second step you will need to take to insure your house plans are in compliance with local codes. Some areas of North America have very strict engineering requirements. Examples of this would be earthquake-prone areas of California and the Pacific Coast, hurricane risk areas of the Florida, Gulf & Carolina Coasts. New York, New Jersey, Nevada, and parts of Illinois require review by a local professional as well. If you are building in these areas, it is most likely you will need to hire a state licensed structural engineer to analyze the design and provide additional drawings and calculations required by your building department. If you aren’t sure, building departments typically have a handout they will give you listing all of the items they require to submit for and obtain a building permit.

Additionally, stock plans do not have a professional stamp attached. If your building department requires one, they will only accept a stamp from a professional licensed in the state where you plan to build. In this case, you will need to take your house plans to a local engineer or architect for review and stamping. In addition, plans which are used to construct homes in Nevada are required to be drawn by a licensed Nevada architect.

Note: All sales on house plans are final. No refunds or exchanges can be given once your order has been fulfilled or once we have begun to customize a home plan to your specifications.