HomePlans.com

Questions about this plan? Visit HomePlans.com today or call 1-888-447-1946

View plan at /plan/2237-square-feet-3-bedroom-2-00-bathroom-2-garage-sp145938

Plan 42-551
2237 sq/ft
3 beds
2 baths
66' 6" wide
54' 8" deep
Plan QR Code
Pricing
Plan Set
5 Copy Set
$900.00
8 Copy Set
$950.00
PDF Set
$950.00
Single Set
$850.00
Foundation
Crawlspace
+$0.00
Slab
+$0.00
Framing
Wood 2x4
$0.00
Right-Reading Reverse
Each
+$175.00
Additional Construction Sets
Each Additional Set
+$60.00/each
Audio Video Design
Each
$100.00
Construction Guide
Each
$39.00
Lighting Design
Each
$100.00

Full Specs & Features


Dimension
Depth : 54' 8"
Height : 22'
Width : 66' 6"
Area
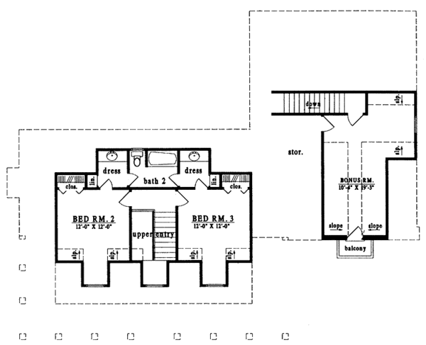
Bonus: 298 sq/ft
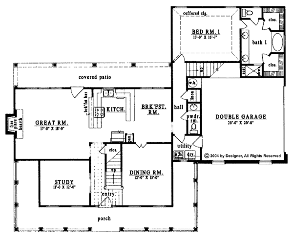
First Floor: 1671 sq/ft
Second Floor: 566 sq/ft
*Total Square Footage only includes conditioned space and does not include garages, porches, bonus rooms, or decks.
Roof
Primary Pitch : 8:12
Roof Framing : Conventional
Roof Type : Shingle
Exterior Wall Framing
Exterior Wall Finish : Siding/Stone
Framing : Wood - 2x4
Bedroom Features
Fireplace
Main Floor Master Bedroom
Split Bedrooms
Kitchen Features
Breakfast Nook
Kitchenette Wet Bar
Additional Room Features
Den Office Study Computer
Great Room Living Room
Main Floor Laundry
Open Floor Plan
Outdoor Spaces
Courtyard
Covered Front Porch
Covered Rear Porch
Wrap Around Porch
Rooms

3rd BR Closet:

10 sq/ft width 2' x depth 5'

Bedroom 2:

144 sq/ft width 12' x depth 12'

Bedroom 2 Closet:

10 sq/ft width 2' x depth 5'

Bedroom 3:

144 sq/ft width 12' x depth 12'

Bedroom 3 Closet:

10 sq/ft width 2' x depth 5'

Breakfast Room:

143 sq/ft width 11' x depth 13'

Dining Room:

180 sq/ft width 12' x depth 15'

Foyer:

120 sq/ft width 8' x depth 15'

Garage:

400 sq/ft width 20' x depth 20'

Garage Storage:

32 sq/ft width 4' x depth 8'

Gathering Room:

306 sq/ft width 17' x depth 18'

Hall Bathroom:

102 sq/ft width 6' x depth 17'

Hall Closet:

26 sq/ft width 3' 4" x depth 8'

Kitchen:

143 sq/ft width 11' x depth 13'

Master Bathroom:

187 sq/ft width 11' x depth 17'

Master Bedroom:

215 sq/ft width 13' x depth 16' 7"

Master Closet:

30 sq/ft width 5' x depth 6'

Porch - Front:

390 sq/ft width 6' x depth 65'

Porch - Rear:

240 sq/ft width 6' x depth 40'

Powder Room:

24 sq/ft width 3' x depth 8'

Study:

132 sq/ft width 11' x depth 12'

Utility Room:

49 sq/ft width 7' x depth 7'

Floor Plan - Main Floor

Home Plan - Country Floor Plan - Main Floor Plan #42-551

Floor Plan - Upper Floor

Home Plan - Country Floor Plan - Upper Floor Plan #42-551
HomePlans.com
Questions about this plan? Visit HomePlans.com today or call 1-888-447-1946
View this plan at /plan/2237-square-feet-3-bedroom-2-00-bathroom-2-garage-sp145938

In addition to the house plans you order, you may also need a site plan that shows where the house is going to be located on the property. You might also need beams sized to accommodate roof loads specific to your region. Your home builder can usually help you with this. You may also need a septic design unless your lot is served by a sanitary sewer system. Many areas now have area-specific energy codes that also have to be followed. This normally involves filling out a simple form providing documentation that your house plans are in compliance.

To find out what documents you should expect with your house plans, see /help/faq#faq13.

In some regions, there is a second step you will need to take to insure your house plans are in compliance with local codes. Some areas of North America have very strict engineering requirements. Examples of this would be earthquake-prone areas of California and the Pacific Coast, hurricane risk areas of the Florida, Gulf & Carolina Coasts. New York, New Jersey, Nevada, and parts of Illinois require review by a local professional as well. If you are building in these areas, it is most likely you will need to hire a state licensed structural engineer to analyze the design and provide additional drawings and calculations required by your building department. If you aren’t sure, building departments typically have a handout they will give you listing all of the items they require to submit for and obtain a building permit.

Additionally, stock plans do not have a professional stamp attached. If your building department requires one, they will only accept a stamp from a professional licensed in the state where you plan to build. In this case, you will need to take your house plans to a local engineer or architect for review and stamping. In addition, plans which are used to construct homes in Nevada are required to be drawn by a licensed Nevada architect.

Note: All sales on house plans are final. No refunds or exchanges can be given once your order has been fulfilled or once we have begun to customize a home plan to your specifications.