HomePlans.com

Questions about this plan? Visit HomePlans.com today or call 1-888-447-1946

View plan at /plan/2445-square-feet-4-bedroom-2-50-bathroom-2-garage-sp143024

Plan 927-111
2445 sq/ft
4 beds
2.5 baths
54' wide
47' deep
Plan QR Code
Pricing
Plan Set
PDF Set
$2095.00
PDF Unlimited Build
$2405.00
5 Copy and PDF Set
$2445.00
Five Copy and PDF Set Unlimited Build
$2755.00
CAD Unlimited Build
$2935.00
Foundation
Crawlspace
+$0.00
Daylight Basement
+$0.00
Framing
Wood 2x4
$0.00
Right-Reading Reverse
Each
+$295.00
Audio Video Design
Each
$165.00
Construction Guide
Each
$39.00
Lighting Design
Each
$165.00
Material List
Each
+$85.00

Full Specs & Features


Dimension
Depth: 47'
Height: 31'
Width: 54'
Area
Bonus: 208 sq/ft
First Floor: 1673 sq/ft height 9'
Second Floor: 772 sq/ft
*Total Square Footage only includes conditioned space and does not include garages, porches, bonus rooms, or decks.
Roof
Primary Pitch: 12:12
Roof Framing: Conventional
Exterior Wall Framing
Exterior Wall Finish: Brick
Framing: Wood - 2x4
Bedroom Features
Fireplace
Formal Living Room / Parlor
Split Bedrooms
Additional Room Features
Family Room Keeping Room
Outdoor Spaces
Covered Front Porch
Rooms

Bedroom 2:

146 sq/ft width 11' 6" x depth 12' 9"

Bedroom 3:

145 sq/ft width 11' 9" x depth 12' 5"

Bedroom 4:

138 sq/ft width 11' 7" x depth 12'

Bonus Room - Finished:

204 sq/ft width 12' 5" x depth 16' 6"

Breakfast Room:

116 sq/ft width 11' 1" x depth 10' 6"

Dining Room:

139 sq/ft width 11' 6" x depth 12' 2"

Family Room:

282 sq/ft width 16' 2" x depth 17' 6"

Foyer:

151 sq/ft width 8' x depth 18' 11"

Garage:

411 sq/ft width 20' 5" x depth 20' 2"

Kitchen:

135 sq/ft width 10' 8" x depth 12' 8"

Laundry Room:

33 sq/ft width 5' 6" x depth 6' 2"

Master Bathroom:

123 sq/ft width 12' 7" x depth 9' 10"

Master Bedroom:

266 sq/ft width 16' x depth 16' 8"

Master Closet:

71 sq/ft width 12' 7" x depth 5' 8"

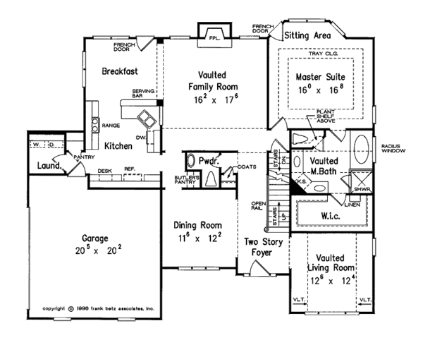
Floor Plan - Main Floor

Home Plan - Floor Plan - Main Floor for Traditional House Plan #927-111 - 4 bed, 2.5 bath

Floor Plan - Upper Floor

Home Plan - Floor Plan - Upper Floor for Traditional House Plan #927-111 - 4 bed, 2.5 bath
HomePlans.com
Questions about this plan? Visit HomePlans.com today or call 1-888-447-1946
View this plan at /plan/2445-square-feet-4-bedroom-2-50-bathroom-2-garage-sp143024

In addition to the house plans you order, you may also need a site plan that shows where the house is going to be located on the property. You might also need beams sized to accommodate roof loads specific to your region. Your home builder can usually help you with this. You may also need a septic design unless your lot is served by a sanitary sewer system. Many areas now have area-specific energy codes that also have to be followed. This normally involves filling out a simple form providing documentation that your house plans are in compliance.

To find out what documents you should expect with your house plans, see /help/faq#faq13.

In some regions, there is a second step you will need to take to insure your house plans are in compliance with local codes. Some areas of North America have very strict engineering requirements. Examples of this would be earthquake-prone areas of California and the Pacific Coast, hurricane risk areas of the Florida, Gulf & Carolina Coasts. New York, New Jersey, Nevada, and parts of Illinois require review by a local professional as well. If you are building in these areas, it is most likely you will need to hire a state licensed structural engineer to analyze the design and provide additional drawings and calculations required by your building department. If you aren’t sure, building departments typically have a handout they will give you listing all of the items they require to submit for and obtain a building permit.

Additionally, stock plans do not have a professional stamp attached. If your building department requires one, they will only accept a stamp from a professional licensed in the state where you plan to build. In this case, you will need to take your house plans to a local engineer or architect for review and stamping. In addition, plans which are used to construct homes in Nevada are required to be drawn by a licensed Nevada architect.

Note: All sales on house plans are final. No refunds or exchanges can be given once your order has been fulfilled or once we have begun to customize a home plan to your specifications.