HomePlans.com

Questions about this plan? Visit HomePlans.com today or call 1-888-447-1946

View plan at /plan/2538-square-feet-4-bedroom-2-50-bathroom-2-garage-sp142621

Plan 435-21
2538 sq/ft
4 beds
2.5 baths
57' wide
36' deep
Plan QR Code
Pricing
Plan Set
5 Copy Set
$800.00
8 Copy Set
$870.00
PDF Set
$1000.00
Reproducible Set
$1000.00
Single Set
$750.00
Foundation
Basement
+$0.00
Crawlspace
+$0.00
Daylight Basement
+$0.00
Slab
+$0.00
Framing
Wood 2x4
$0.00
Right-Reading Reverse
Each
+$175.00
Additional Construction Sets
Each Additional Set
+$60.00/each
Audio Video Design
Each
$165.00
Comprehensive Material List
Each
$295.00
Construction Guide
Each
$39.00
Lighting Design
Each
$165.00
Mirror Reversed Sets
Each Additional Set
+$55.00

Full Specs & Features


Dimension
Depth : 36'
Height : 30' 5"
Width : 57'
Area
Basement Unfinished: 1141 sq/ft height 9'
First Floor: 1202 sq/ft height 9'
Garage: 545 sq/ft height 9'
Porch: 45 sq/ft
Second Floor: 1336 sq/ft height 8'
*Total Square Footage only includes conditioned space and does not include garages, porches, bonus rooms, or decks.
Roof
Primary Pitch : 8:12
Roof Framing : Truss
Exterior Wall Framing
Exterior Wall Finish : Siding
Framing : Wood - 2x4
Bedroom Features
Formal Dining Room
Upstairs Master Bedrooms
Walk In Closet
Kitchen Features
Breakfast Nook
Additional Room Features
Family Room Keeping Room
Main Floor Laundry
Outdoor Spaces
Covered Front Porch
Rooms

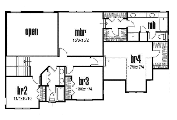
Bedroom 2:

122 sq/ft width 11' 4" x depth 10' 10"

Bedroom 3:

147 sq/ft width 13' x depth 11' 4"

Bedroom 4:

294 sq/ft width 17' x depth 17' 4"

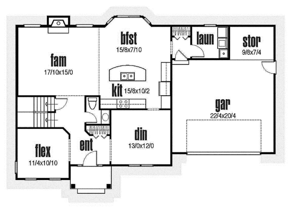
Breakfast:

122 sq/ft width 15' 8" x depth 7' 10"

Dining Room:

156 sq/ft width 13' x depth 12'

Family Room:

267 sq/ft width 17' 10" x depth 15'

Flex Room:

122 sq/ft width 11' 4" x depth 10' 10"

Garage:

454 sq/ft width 22' 4" x depth 20' 4"

Garage Storage:

70 sq/ft width 9' 8" x depth 7' 4"

Kitchen:

159 sq/ft width 15' 8" x depth 10' 2"

Master Bedroom:

235 sq/ft width 15' 6" x depth 15' 2"

Floor Plan - Main Floor

Home Plan - Traditional Floor Plan - Main Floor Plan #435-21

Floor Plan - Upper Floor

Home Plan - Traditional Floor Plan - Upper Floor Plan #435-21
HomePlans.com
Questions about this plan? Visit HomePlans.com today or call 1-888-447-1946
View this plan at /plan/2538-square-feet-4-bedroom-2-50-bathroom-2-garage-sp142621

In addition to the house plans you order, you may also need a site plan that shows where the house is going to be located on the property. You might also need beams sized to accommodate roof loads specific to your region. Your home builder can usually help you with this. You may also need a septic design unless your lot is served by a sanitary sewer system. Many areas now have area-specific energy codes that also have to be followed. This normally involves filling out a simple form providing documentation that your house plans are in compliance.

To find out what documents you should expect with your house plans, see /help/faq#faq13.

In some regions, there is a second step you will need to take to insure your house plans are in compliance with local codes. Some areas of North America have very strict engineering requirements. Examples of this would be earthquake-prone areas of California and the Pacific Coast, hurricane risk areas of the Florida, Gulf & Carolina Coasts. New York, New Jersey, Nevada, and parts of Illinois require review by a local professional as well. If you are building in these areas, it is most likely you will need to hire a state licensed structural engineer to analyze the design and provide additional drawings and calculations required by your building department. If you aren’t sure, building departments typically have a handout they will give you listing all of the items they require to submit for and obtain a building permit.

Additionally, stock plans do not have a professional stamp attached. If your building department requires one, they will only accept a stamp from a professional licensed in the state where you plan to build. In this case, you will need to take your house plans to a local engineer or architect for review and stamping. In addition, plans which are used to construct homes in Nevada are required to be drawn by a licensed Nevada architect.

Note: All sales on house plans are final. No refunds or exchanges can be given once your order has been fulfilled or once we have begun to customize a home plan to your specifications.