HomePlans.com

Questions about this plan? Visit HomePlans.com today or call 1-888-447-1946

View plan at /plan/2813-square-feet-4-bedroom-2-50-bathroom-3-garage-sp137872

Plan 314-228
2813 sq/ft
4 beds
2.5 baths
84' 10" wide
48' deep
Plan QR Code
Pricing
Plan Set
PDF Set
$1170.00
5 Copy Set
$1280.00
8 Copy Set
$1355.00
Reproducible Set
$1375.00
CAD Set
$2195.00
Foundation
Crawlspace
+$0.00
Slab
+$0.00
Basement
+$150.00
Framing
Wood 2x4
$0.00
Wood 2x6
$150.00
Right-Reading Reverse
Each
+$350.00
Additional Construction Sets
Each Additional Set
+$50.00/each
Audio Video Design
Each
$100.00
Construction Guide
Each
$39.00
Material List
Each
+$95.00
Mirror Reversed Sets
Each Additional Set
+$50.00

Full Specs & Features


Dimension
Depth : 48'
Height : 27'
Width : 84' 10"
Area
Bonus: 500 sq/ft
First Floor: 1890 sq/ft height 8'
Second Floor: 923 sq/ft
*Total Square Footage only includes conditioned space and does not include garages, porches, bonus rooms, or decks.
Roof
Primary Pitch : 6:12
Roof Framing : Conventional
Roof Type : Shingle
Exterior Wall Framing
Exterior Wall Finish : Siding
Framing : Wood - 2x4
Bedroom Features
Formal Dining Room
Guest Suite
Main Floor Master Bedroom
Kitchen Features
Breakfast Nook
Butler's Pantry
Walk In Pantry Cabinet Pantry
Additional Room Features
Den Office Study Computer
Great Room Living Room
Loft
Main Floor Laundry
Unfinished Future Space
Outdoor Spaces
Balcony
Rooms

3rd BR Closet:

8 sq/ft width 4' x depth 2'

Bedroom 2:

130 sq/ft width 13' x depth 10'

Bedroom 2 Closet:

11 sq/ft width 5' 8" x depth 2'

Bedroom 3:

130 sq/ft width 11' 4" x depth 11' 6"

Bedroom 3 Closet:

11 sq/ft width 5' 8" x depth 2'

Bedroom 4:

118 sq/ft width 11' 4" x depth 10' 6"

Bedroom 4 Closet:

12 sq/ft width 6' 2" x depth 2'

Bonus Room - Finished:

509 sq/ft width 25' 8" x depth 19' 10"

Breakfast Room:

100 sq/ft width 9' 2" x depth 11'

Den/Office or Bedroom 1:

121 sq/ft width 11' x depth 11'

Dining Room:

195 sq/ft width 15' x depth 13'

Foyer:

70 sq/ft width 8' x depth 8' 10"

Garage:

660 sq/ft width 22' x depth 30'

Gathering Room:

255 sq/ft width 13' x depth 19' 8"

Hall Bathroom:

78 sq/ft width 10' x depth 7' 10"

Hall Closet:

15 sq/ft width 3' 6" x depth 4' 6"

Kitchen:

132 sq/ft width 12' x depth 11'

Laundry Room:

60 sq/ft width 5' 6" x depth 11'

Living Room:

345 sq/ft width 15' x depth 23'

Master Bathroom:

124 sq/ft width 11' 10" x depth 10' 6"

Master Bedroom:

234 sq/ft width 18' x depth 13'

Master Closet:

61 sq/ft width 5' 10" x depth 10' 6"

Powder Room:

26 sq/ft width 5' x depth 5' 4"

Floor Plan - Main Floor

Home Plan - Contemporary Floor Plan - Main Floor Plan #314-228

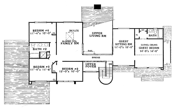
Floor Plan - Upper Floor

Home Plan - Contemporary Floor Plan - Upper Floor Plan #314-228
HomePlans.com
Questions about this plan? Visit HomePlans.com today or call 1-888-447-1946
View this plan at /plan/2813-square-feet-4-bedroom-2-50-bathroom-3-garage-sp137872

In addition to the house plans you order, you may also need a site plan that shows where the house is going to be located on the property. You might also need beams sized to accommodate roof loads specific to your region. Your home builder can usually help you with this. You may also need a septic design unless your lot is served by a sanitary sewer system. Many areas now have area-specific energy codes that also have to be followed. This normally involves filling out a simple form providing documentation that your house plans are in compliance.

To find out what documents you should expect with your house plans, see /help/faq#faq13.

In some regions, there is a second step you will need to take to insure your house plans are in compliance with local codes. Some areas of North America have very strict engineering requirements. Examples of this would be earthquake-prone areas of California and the Pacific Coast, hurricane risk areas of the Florida, Gulf & Carolina Coasts. New York, New Jersey, Nevada, and parts of Illinois require review by a local professional as well. If you are building in these areas, it is most likely you will need to hire a state licensed structural engineer to analyze the design and provide additional drawings and calculations required by your building department. If you aren’t sure, building departments typically have a handout they will give you listing all of the items they require to submit for and obtain a building permit.

Additionally, stock plans do not have a professional stamp attached. If your building department requires one, they will only accept a stamp from a professional licensed in the state where you plan to build. In this case, you will need to take your house plans to a local engineer or architect for review and stamping. In addition, plans which are used to construct homes in Nevada are required to be drawn by a licensed Nevada architect.

Note: All sales on house plans are final. No refunds or exchanges can be given once your order has been fulfilled or once we have begun to customize a home plan to your specifications.