HomePlans.com

Questions about this plan? Visit HomePlans.com today or call 1-888-447-1946

View plan at /plan/3735-square-feet-5-bedroom-4-00-bathroom-2-garage-sp149866

Plan 328-401
3735 sq/ft
5 beds
4 baths
38' 6" wide
69' 4" deep
Plan QR Code
Pricing
Plan Set
5 Copy Set
$725.00
8 Copy Set
$850.00
Reproducible Set
$1000.00
CAD Set
$2100.00
Single Set
$650.00
Foundation
Basement
+$0.00
Framing
Wood 2x6
$0.00
Additional Construction Sets
Each Additional Set
+$60.00/each
Audio Video Design
Each
$100.00
Construction Guide
Each
$39.00
Lighting Design
Each
$200.00
Mirror Reversed Sets
Each Additional Set
+$40.00

Full Specs & Features


Dimension
Depth : 69' 4"
Width : 38' 6"
Area
Bonus: 342 sq/ft height 9'
First Floor: 2440 sq/ft height 9'
Second Floor: 1295 sq/ft height 9'
*Total Square Footage only includes conditioned space and does not include garages, porches, bonus rooms, or decks.
Roof
Roof Framing : Conventional
Roof Type : Asphalt
Exterior Wall Framing
Exterior Wall Finish : Brick/Shingle
Framing : Wood - 2x6
Bedroom Features
Formal Dining Room
Main Floor Master Bedroom
Kitchen Features
Breakfast Nook
Kitchen Island
Additional Room Features
Great Room Living Room
Main Floor Laundry
Master Sitting Area
Unfinished Future Space
Rooms

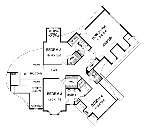
Bedroom 2:

153 sq/ft width 12' 10" x depth 12'

Bedroom 3:

207 sq/ft width 12' x depth 17' 3"

Bedroom 4:

183 sq/ft width 13' 5" x depth 13' 8"

Bonus Room - Finished:

335 sq/ft width 19' 2" x depth 17' 6"

Den/Office or Bedroom 5:

130 sq/ft width 11' 10" x depth 11'

Dinette:

196 sq/ft width 15' 6" x depth 12' 8"

Garage:

588 sq/ft width 28' x depth 21'

Great Room:

383 sq/ft width 19' 6" x depth 19' 8"

Kitchen:

280 sq/ft width 18' 2" x depth 15' 5"

Master Bedroom:

177 sq/ft width 12' x depth 14' 10"

Master Sitting Room:

54 sq/ft width 7' x depth 7' 10"

Storage:

246 sq/ft width 18' 9" x depth 13' 2"

Floor Plan - Main Floor

Home Plan - Country Floor Plan - Main Floor Plan #328-401

Floor Plan - Upper Floor

Home Plan - Country Floor Plan - Upper Floor Plan #328-401
HomePlans.com
Questions about this plan? Visit HomePlans.com today or call 1-888-447-1946
View this plan at /plan/3735-square-feet-5-bedroom-4-00-bathroom-2-garage-sp149866

In addition to the house plans you order, you may also need a site plan that shows where the house is going to be located on the property. You might also need beams sized to accommodate roof loads specific to your region. Your home builder can usually help you with this. You may also need a septic design unless your lot is served by a sanitary sewer system. Many areas now have area-specific energy codes that also have to be followed. This normally involves filling out a simple form providing documentation that your house plans are in compliance.

To find out what documents you should expect with your house plans, see /help/faq#faq13.

In some regions, there is a second step you will need to take to insure your house plans are in compliance with local codes. Some areas of North America have very strict engineering requirements. Examples of this would be earthquake-prone areas of California and the Pacific Coast, hurricane risk areas of the Florida, Gulf & Carolina Coasts. New York, New Jersey, Nevada, and parts of Illinois require review by a local professional as well. If you are building in these areas, it is most likely you will need to hire a state licensed structural engineer to analyze the design and provide additional drawings and calculations required by your building department. If you aren’t sure, building departments typically have a handout they will give you listing all of the items they require to submit for and obtain a building permit.

Additionally, stock plans do not have a professional stamp attached. If your building department requires one, they will only accept a stamp from a professional licensed in the state where you plan to build. In this case, you will need to take your house plans to a local engineer or architect for review and stamping. In addition, plans which are used to construct homes in Nevada are required to be drawn by a licensed Nevada architect.

Note: All sales on house plans are final. No refunds or exchanges can be given once your order has been fulfilled or once we have begun to customize a home plan to your specifications.