HomePlans.com

Questions about this plan? Visit HomePlans.com today or call 1-888-447-1946

View plan at /plan/4837-square-feet-4-bedroom-3-50-bathroom-2-garage-sp143934

Plan 965-1
4837 sq/ft
4 beds
3.5 baths
107' wide
57' deep
Plan QR Code
Pricing
Plan Set
5 Copy Set
$1230.00
8 Copy Set
$1330.00
CAD Set
$2260.00
Single Set
$1030.00
Foundation
Daylight Basement
+$0.00
Framing
Wood 2x6
$0.00
Additional Construction Sets
Each Additional Set
+$40.00/each
Audio Video Design
Each
$100.00
Construction Guide
Each
$39.00
Lighting Design
Each
$200.00
Mirror Reversed Sets
Each Additional Set
+$50.00

Full Specs & Features


Dimension
Depth : 57'
Height : 28'
Width : 107'
Area
Basement Living: 1461 sq/ft height 9'
Basement Unfinished: 1636 sq/ft height 9'
First Floor: 3011 sq/ft height 9'
Second Floor: 365 sq/ft height 9'
*Total Square Footage only includes conditioned space and does not include garages, porches, bonus rooms, or decks.
Roof
Roof Framing : Truss
Exterior Wall Framing
Exterior Wall Finish : Shingle/Siding
Framing : Wood - 2x6
Bedroom Features
Fireplace
Formal Dining Room
Guest Suite
Walk In Closet
Kitchen Features
Breakfast Nook
Kitchen Island
Kitchenette Wet Bar
Additional Room Features
Hobby Rec Room Game Room
Loft
Main Floor Laundry
Master Sitting Area
Media Room
Sunroom
Outdoor Spaces
Balcony
Screened Porch
Rooms

Bedroom 2:

239 sq/ft width 17' 4" x depth 13' 10"

Bedroom 3:

180 sq/ft width 15' x depth 12'

Breakfast Nook:

94 sq/ft width 12' 5" x depth 7' 7"

Dining Room:

234 sq/ft width 16' x depth 14' 8"

Entry:

80 sq/ft width 20' x depth 4'

Game Room:

537 sq/ft width 21' 6" x depth 25'

Great Room:

307 sq/ft width 15' 6" x depth 19' 10"

Guest Bedroom:

180 sq/ft width 12' 5" x depth 14' 6"

Kitchen:

25 sq/ft width 5' x depth 5'

Kitchen:

252 sq/ft width 14' x depth 18'

Loft:

302 sq/ft width 18' x depth 16' 10"

Master Bathroom:

144 sq/ft width 16' x depth 9'

Master Bedroom:

315 sq/ft width 18' x depth 17' 6"

Media Room:

154 sq/ft width 14' x depth 11'

Sun Room:

228 sq/ft width 19' x depth 12'

Utility Room:

81 sq/ft width 9' x depth 9'

Floor Plan - Lower Floor

Home Plan - Country Floor Plan - Lower Floor Plan #965-1

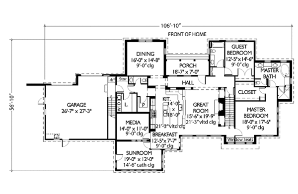
Floor Plan - Main Floor

Home Plan - Country Floor Plan - Main Floor Plan #965-1

Floor Plan - Upper Floor

Home Plan - Country Floor Plan - Upper Floor Plan #965-1
HomePlans.com
Questions about this plan? Visit HomePlans.com today or call 1-888-447-1946
View this plan at /plan/4837-square-feet-4-bedroom-3-50-bathroom-2-garage-sp143934

In addition to the house plans you order, you may also need a site plan that shows where the house is going to be located on the property. You might also need beams sized to accommodate roof loads specific to your region. Your home builder can usually help you with this. You may also need a septic design unless your lot is served by a sanitary sewer system. Many areas now have area-specific energy codes that also have to be followed. This normally involves filling out a simple form providing documentation that your house plans are in compliance.

To find out what documents you should expect with your house plans, see /help/faq#faq13.

In some regions, there is a second step you will need to take to insure your house plans are in compliance with local codes. Some areas of North America have very strict engineering requirements. Examples of this would be earthquake-prone areas of California and the Pacific Coast, hurricane risk areas of the Florida, Gulf & Carolina Coasts. New York, New Jersey, Nevada, and parts of Illinois require review by a local professional as well. If you are building in these areas, it is most likely you will need to hire a state licensed structural engineer to analyze the design and provide additional drawings and calculations required by your building department. If you aren’t sure, building departments typically have a handout they will give you listing all of the items they require to submit for and obtain a building permit.

Additionally, stock plans do not have a professional stamp attached. If your building department requires one, they will only accept a stamp from a professional licensed in the state where you plan to build. In this case, you will need to take your house plans to a local engineer or architect for review and stamping. In addition, plans which are used to construct homes in Nevada are required to be drawn by a licensed Nevada architect.

Note: All sales on house plans are final. No refunds or exchanges can be given once your order has been fulfilled or once we have begun to customize a home plan to your specifications.