HomePlans.com

Questions about this plan? Visit HomePlans.com today or call 1-888-447-1946

View plan at /plan/6014-square-feet-8-bedroom-8-00-bathroom-8-garage-sp137208

Plan 70-1396
6014 sq/ft
8 beds
8 baths
133' wide
60' deep
Plan QR Code
Pricing
Plan Set
5 Copy Set
$3910.00
8 Copy Set
$4150.00
PDF Set
$5714.00
Reproducible Set
$5714.00
CAD Set
$11126.00
Foundation
Basement
+$0.00
Crawlspace
+$650.00
Slab
+$650.00
Framing
Wood 2x4
$0.00
Right-Reading Reverse
Each
+$395.00
Additional Construction Sets
Each Additional Set
+$80.00/each
Audio Video Design
Each
$165.00
Comprehensive Material List
Each
$495.00
Construction Guide
Each
$39.00
Lighting Design
Each
$165.00
Mirror Reversed Sets
Each Additional Set
+$75.00

Full Specs & Features


Dimension
Depth : 60'
Height : 29'
Width : 133'
Area
First Floor: 1290 sq/ft
First Floor: 1171 sq/ft
First Floor: 1171 sq/ft
First Floor: 1290 sq/ft
Second Floor: 546 sq/ft
Second Floor: 546 sq/ft
*Total Square Footage only includes conditioned space and does not include garages, porches, bonus rooms, or decks.
Roof
Primary Pitch : 6:12
Roof Framing : Truss
Exterior Wall Framing
Exterior Wall Finish : Brick
Framing : Wood - 2x4
Bedroom Features
Fireplace
Main Floor Master Bedroom
Additional Room Features
Loft
Main Floor Laundry
Open Floor Plan
Outdoor Spaces
Balcony
Deck
Rooms

Bathroom 2:

45 sq/ft width 8' 7" x depth 5' 3"

Bathroom 2:

45 sq/ft width 8' 7" x depth 5' 3"

Bedroom 2:

108 sq/ft width 9' 4" x depth 11' 8"

Bedroom 2:

108 sq/ft width 9' 4" x depth 11' 8"

Deck:

243 sq/ft width 24' 4" x depth 10'

Deck:

243 sq/ft width 24' 4" x depth 10'

Dining Room:

203 sq/ft width 18' x depth 11' 4"

Dining Room:

203 sq/ft width 18' x depth 11' 4"

Garage:

380 sq/ft width 19' 4" x depth 19' 8"

Garage:

380 sq/ft width 19' 4" x depth 19' 8"

Kitchen:

93 sq/ft width 10' 11" x depth 8' 7"

Kitchen:

93 sq/ft width 10' 11" x depth 8' 7"

Laundry Room:

55 sq/ft width 10' 6" x depth 5' 3"

Laundry Room:

55 sq/ft width 10' 6" x depth 5' 3"

Living Room:

138 sq/ft width 12' x depth 11' 6"

Living Room:

138 sq/ft width 12' x depth 11' 6"

Master Bathroom:

77 sq/ft width 9' 8" x depth 8'

Master Bathroom:

77 sq/ft width 9' 8" x depth 8'

Master Bedroom:

223 sq/ft width 13' x depth 17' 2"

Master Bedroom:

223 sq/ft width 13' x depth 17' 2"

Master Closet:

27 sq/ft width 4' 11" x depth 5' 8"

Master Closet:

27 sq/ft width 4' 11" x depth 5' 8"

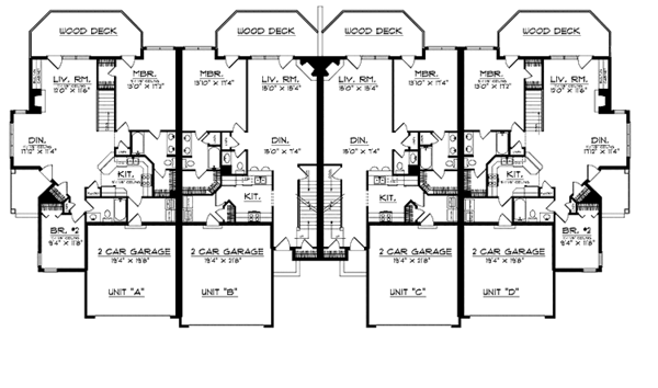
Floor Plan - Main Floor

Home Plan - Prairie Floor Plan - Main Floor Plan #70-1396

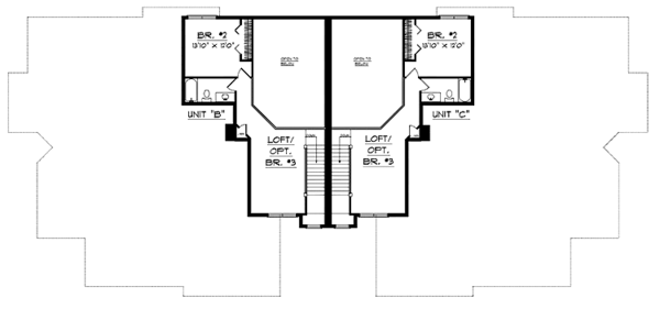
Floor Plan - Upper Floor

Home Plan - Prairie Floor Plan - Upper Floor Plan #70-1396
HomePlans.com
Questions about this plan? Visit HomePlans.com today or call 1-888-447-1946
View this plan at /plan/6014-square-feet-8-bedroom-8-00-bathroom-8-garage-sp137208

In addition to the house plans you order, you may also need a site plan that shows where the house is going to be located on the property. You might also need beams sized to accommodate roof loads specific to your region. Your home builder can usually help you with this. You may also need a septic design unless your lot is served by a sanitary sewer system. Many areas now have area-specific energy codes that also have to be followed. This normally involves filling out a simple form providing documentation that your house plans are in compliance.

To find out what documents you should expect with your house plans, see /help/faq#faq13.

In some regions, there is a second step you will need to take to insure your house plans are in compliance with local codes. Some areas of North America have very strict engineering requirements. Examples of this would be earthquake-prone areas of California and the Pacific Coast, hurricane risk areas of the Florida, Gulf & Carolina Coasts. New York, New Jersey, Nevada, and parts of Illinois require review by a local professional as well. If you are building in these areas, it is most likely you will need to hire a state licensed structural engineer to analyze the design and provide additional drawings and calculations required by your building department. If you aren’t sure, building departments typically have a handout they will give you listing all of the items they require to submit for and obtain a building permit.

Additionally, stock plans do not have a professional stamp attached. If your building department requires one, they will only accept a stamp from a professional licensed in the state where you plan to build. In this case, you will need to take your house plans to a local engineer or architect for review and stamping. In addition, plans which are used to construct homes in Nevada are required to be drawn by a licensed Nevada architect.

Note: All sales on house plans are final. No refunds or exchanges can be given once your order has been fulfilled or once we have begun to customize a home plan to your specifications.