Questions about this plan? Visit HomePlans.com today or call 1-888-447-1946
View plan at /plan/1492-square-feet-3-bedroom-2-00-bathroom-2-garage-sp145392
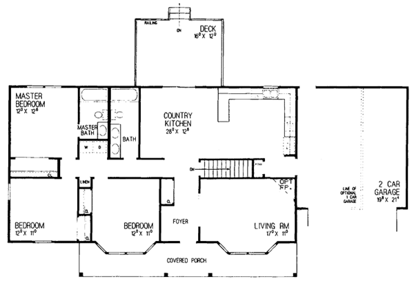
3rd BR Closet:
9 sq/ft width 2' 1" x depth 4' 6"
Basement Foundation:
1456 sq/ft width 52' x depth 28'
Bathroom 2:
62 sq/ft width 5' x depth 12' 6"
Bedroom 2:
132 sq/ft width 12' x depth 11'
Bedroom 2 Closet:
9 sq/ft width 2' 1" x depth 4' 6"
Bedroom 3:
132 sq/ft width 12' x depth 11'
Bedroom 3 Closet:
9 sq/ft width 2' 1" x depth 4' 6"
Foyer:
38 sq/ft width 6' 10" x depth 5' 8"
Garage:
440 sq/ft width 20' x depth 22'
Hall:
58 sq/ft width 3' 1" x depth 19'
Hall Closet:
6 sq/ft width 2' 1" x depth 3' 2"
Kitchen:
350 sq/ft width 28' x depth 12' 6"
Laundry Room:
15 sq/ft width 3' 1" x depth 5'
Living Room:
187 sq/ft width 17' x depth 11'
Master Bathroom:
45 sq/ft width 5' x depth 9' 1"
Master Bedroom:
150 sq/ft width 12' x depth 12' 6"
Master Closet:
26 sq/ft width 3' 1" x depth 8' 7"
Porch - Front:
width 0" x depth 39' 2"
Slab Foundation:
235 sq/ft width 6' x depth 39' 2"
