HomePlans.com

Questions about this plan? Visit HomePlans.com today or call 1-888-447-1946

View plan at /plan/2479-square-feet-3-bedroom-2-5-bathroom-2-garage-farmhouse-traditional-craftsman-sp258166

Plan 1069-17
2479 sq/ft
3 beds
2.5 baths
76' wide
64' deep
Plan QR Code
Pricing
Plan Set
PDF Set
$1195.00
CAD and PDF Set
$1795.00
PDF Unlimited Build
$1945.00
Foundation
Walk Out Basement
+$0.00
Monolithic Slab
+$300.00
Slab
+$300.00
Crawlspace
+$325.00
Basement
+$350.00
Daylight Basement
+$375.00
Framing
Wood 2x6
$0.00
Wood 2x4
$300.00
Block
$500.00
Wood 2x8
$500.00
Right-Reading Reverse
Each
+$300.00
Audio Video Design
Each
$165.00
Construction Guide
Each
$39.00
Lighting Design
Each
$165.00
Material List
Each
+$200.00

Full Specs & Features


Dimension
Depth: 64'
Height: 25' 8"
Width: 76'
Area
Basement: 1790 sq/ft
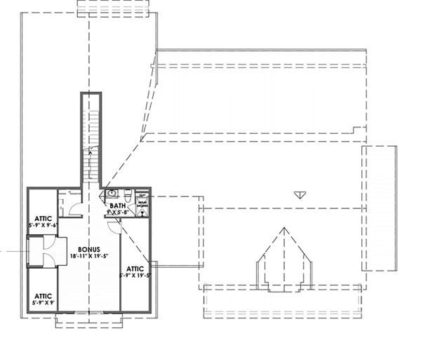
Bonus: 444 sq/ft
Garage: 842 sq/ft
Lower Floor: 2112 sq/ft
Main Floor: 2479 sq/ft
*Total Square Footage only includes conditioned space and does not include garages, porches, bonus rooms, or decks.
Ceiling
Lower Ceiling: 9'
Main Ceiling: 10'
Upper Ceiling Ft: 9'
Roof
Primary Pitch: 8/12
Roof Framing: Truss/Stick
Roof Type: Shingles/Metal
Secondary Pitch: 12/12
Exterior Wall Framing
Exterior Wall Finish: Stone/Siding
Framing: 2x6
Bedroom Features
Main Floor Master Bedroom
Split Bedrooms
Walk In Closet
Kitchen Features
Breakfast Nook
Butler's Pantry
Eating Bar
Additional Room Features
Hobby Rec Room Game Room
Unfinished Future Space
Wet Bar
Garage Features
Side Entry Garage
Outdoor Spaces
Covered Front Porch
Covered Rear Porch
Rooms

Bathroom 2:

width 5' 6" x depth 8' 3"

Bathroom 3:

width 5' 6" x depth 8' 3"

Bedroom 2:

width 11' 2" x depth 12' 5"

Bedroom 3:

width 11' 2" x depth 12' 3"

Covered deck/patio:

width 44' x depth 15' 11"

Covered Porch:

width 32' 10" x depth 5' 11"

Dining:

width 12' x depth 11' 10"

Entry:

width 8' 5" x depth 11' 10"

Garage:

width 25' x depth 27' 6"

Kitchen:

width 11' 9" x depth 19' 10"

Laundry:

width 10' 8" x depth 8' 6"

Living:

width 19' 8" x depth 19' 2"

Master Bath:

width 9' 8" x depth 11' 10"

Master Bedroom:

width 15' x depth 15' 1"

Master Closet:

width 10' 8" x depth 10' 8"

Nook:

width 11' 9" x depth 12' 2"

Owner Entry:

width 10' 10" x depth 6'

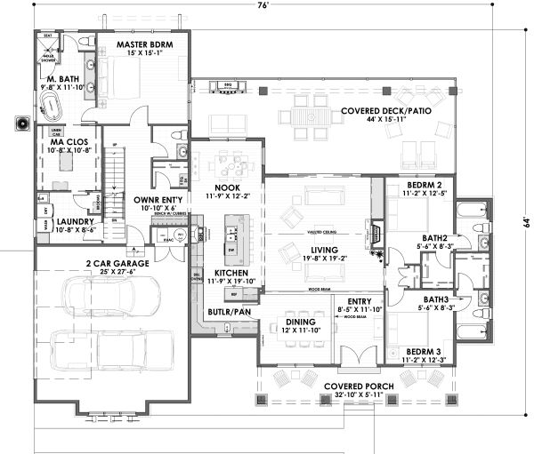
Floor Plan - Main Floor

Home Plan - Floor Plan - Main Floor for Farmhouse House Plan #1069-17 - 3 bed, 2.5 bath

Floor Plan - Lower Floor

Home Plan - Floor Plan - Lower Floor for Farmhouse House Plan #1069-17 - 3 bed, 2.5 bath

Floor Plan - Upper Floor

Home Plan - Floor Plan - Upper Floor for Farmhouse House Plan #1069-17 - 3 bed, 2.5 bath
HomePlans.com
Questions about this plan? Visit HomePlans.com today or call 1-888-447-1946
View this plan at /plan/2479-square-feet-3-bedroom-2-5-bathroom-2-garage-farmhouse-traditional-craftsman-sp258166

In addition to the house plans you order, you may also need a site plan that shows where the house is going to be located on the property. You might also need beams sized to accommodate roof loads specific to your region. Your home builder can usually help you with this. You may also need a septic design unless your lot is served by a sanitary sewer system. Many areas now have area-specific energy codes that also have to be followed. This normally involves filling out a simple form providing documentation that your house plans are in compliance.

To find out what documents you should expect with your house plans, see /help/faq#faq13.

In some regions, there is a second step you will need to take to insure your house plans are in compliance with local codes. Some areas of North America have very strict engineering requirements. Examples of this would be earthquake-prone areas of California and the Pacific Coast, hurricane risk areas of the Florida, Gulf & Carolina Coasts. New York, New Jersey, Nevada, and parts of Illinois require review by a local professional as well. If you are building in these areas, it is most likely you will need to hire a state licensed structural engineer to analyze the design and provide additional drawings and calculations required by your building department. If you aren’t sure, building departments typically have a handout they will give you listing all of the items they require to submit for and obtain a building permit.

Additionally, stock plans do not have a professional stamp attached. If your building department requires one, they will only accept a stamp from a professional licensed in the state where you plan to build. In this case, you will need to take your house plans to a local engineer or architect for review and stamping. In addition, plans which are used to construct homes in Nevada are required to be drawn by a licensed Nevada architect.

Note: All sales on house plans are final. No refunds or exchanges can be given once your order has been fulfilled or once we have begun to customize a home plan to your specifications.