What Do You Get With Your House Plan?
Plan on purchasing a house plan set? Here you will learn what exactly you’re paying for when you buy a home plan design. Continue below to see what’s included and get ready to build the home of your dreams!
Here’s what a plan set usually includes
*Not all plan sets include all sheets listed below. See the 'What’s Included section' on specific plan pages to get complete information.

Foundation Plan
Showcasing a basement, crawl space, or slab, the foundation plant set portrays the general design intent of the foundation. Typically, you will find the layout of the footing, post and beams, and extent of structural slabs, based on what foundation type is purchased in this set.

Floor Plan(s)
The floor plan sheet set includes an overhead view of the design that showcases the location of windows, doors, walls, and rooms.

Roof Plan
Illustrating valleys, hips, and ridges, this plan sheet incorporates the elements that make up the roof. It may also reveal the roofing material and slopes of roof surfaces, as well as chimneys and any other decorative details.

Exterior Elevation
Generally displaying the materials for roof, walls, and any other components that are part of the design, elevations are a 2d representation of each side of the home plan.

Building Section(s)
The building plan sheet features a cut-away view through the home plan that shows the adjacencies of spaces. It also includes the relationship from the ground to the house and to the roof.

Electrical Plan(s)
Displaying lighting design intent and layout, the electrical plan sheet showcases the location of lighting fixtures, switches, and outlets.

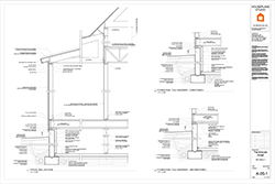
Construction Notes and Details
The foundation, interior walls, exterior walls, stairways, floors, and/or roof details may be included in the construction notes and details sheet.
Caution! Read This Before Getting Started
Be sure to check with your local building department to be sure your plan meets local codes and building requirements. Although many of our plans can be built “as is” in most locations, some areas require extra steps (such as structural engineering, soils reports and energy efficiency calculations).
The typical plan set does not include any plumbing, heating or air conditioning drawings due to the large variety of local codes and climatic conditions. These details and specifications can be accessed from your builder, contractor, and/or local suppliers.
All house plans on HomePlans.com are designed to conform to the building codes from when and where the original house was designed.
Other Important Documents
License
The License Agreement gives you the access to construct a single home from a purchased plan design.
Plan Media (Digital Files or Printed Copies)
Digital Files
Digital files can be obtained via email and can also be sent to a print shop or copy store when you need printed “sets” for bidding and permitting. You will save both time and money when you need an extra copy or even just a single page.
Printed Copies
Printed copies can be sent to you via mail. Simply order another when you are in need of more copies and they will arrive within a few days in the mail.
Digital Media (sent by e-mail)
Best Value
PDF sets arrive the fastest and also give you the opportunity to print more copies locally (and inexpensively) when needed.
Print locally as needed
CAD
Computer Aided Design (CAD) files are required if you are making considerable changes to a plan set and are using your own architect.
Printed Copies (sent in the mail)
Printed Copies (sent in the mail)
5 or 8 Copy Set
Printed sets are stamped “do not copy” and cannot legally be copied.
For more prints, order additional copies
Reproducible
These sets allow direct copying and are printed on paper. In this set you will obtain a limited copyright release to make additional copies when/if the need arises.
Print locally as needed
The Study Set Option – For a Closer Look
Many plans have a Study Set or Single Set option that allows you to obtain bids from contractors if you are not ready to buy a full-priced plan. These plan sets are stamped “Not for Construction” and the builder or contractor legally cannot build from it. However, we do credit you 90% of the Study Set or Single Set purchase towards your upgraded plan set once you are ready for your construction documents.
* Unless you buy an “unlimited” plan set or a multi-use license you may only build one home from a set of plans. Please call to verify if you intend to build more than once. Plan licenses are non-transferable and cannot be resold.
** The original designer retains the copyright to plans derived from their plans. You cannot buy a CAD set, change them and sell the changed design to others or build additional homes based on the changed set.