SAVED No Saved House Plans REGISTER LOGIN Empty Cart
Don't lose your saved plans!  Create an account to access your saves whenever you want. See our Terms & Conditions and Privacy Policy.
15% OFF THIS PLAN TODAY

PLAN 497-49

Photographs may show modified designs.

Save
  • Jump to:
  • All (7)
  • Floor plans (2)
Questions? Get Personalized Help
Home  >  Style  >  Colonial

Key Specs


Plan Sq Ft

2688
sq ft

Plan Bedrooms

3
Beds

Plan Bathrooms

2.5
Baths

Plan Floors

2
Floors

Plan Garages

0
Garages

Select Plan Set Options

What's included?

Additional options

Dropdown arrow

Right-Reading Reverse
$175.50
Choose this option to reverse your plans and to have the text and dimensions readable.
Additional Construction Sets
$45.00/each
Additional hard copies of the plan (can be ordered at the time of purchase and within 90 days of the purchase date).
Additional Use License
$445.50
Allows you to build one more home for each additional license purchased.
Audio Video Design
$135.00
Receive an overlay sheet with suggested placement of audio and video components.
Comprehensive Material List
$265.50
A complete list of building supplies needed to construct the infrastructure of your new house, plus an overlay of materials shown directly on your PDF (foundation to rooftop with interior and exterior materials), and a detailed, itemized door and window schedule showing all sizes and types. Please allow 5-7 Business Days for completion. Note, the Comprehensive list is only available with a PDF purchase. The Comprehensive list can be ordered no matter what additional plan options you have selected.
Construction Guide
$35.10
Educate yourself about basic building ideas with these four detailed diagrams that discuss electrical, plumbing, mechanical, and structural topics.
Lighting Design
$135.00
Receive an overlay sheet with suggested placement of lighting fixtures.
Mirror Reversed Sets
$0.00
Printed sets showing plan in reverse, text and dimensions will be backwards.
Unlimited Use License
$895.50
Allows you to build this home as many times as you want.
Subtotal
$1214.40 NOW $1092.96
You save $121.44 (10% savings)
Sale ends soon!
Best Price Guaranteed*

Also order by phone: 1-888-447-1946
 
Questions about building your home?
Get Personalized Help
We do our best to get back to you within 24 - 48 business hours.
Need an answer faster? Call now...
Phone: 1-888-447-1946
Hours:
Ready for Your Call 7 Days a Week
Every Day 7 am - 8:30 pm Eastern

See our Terms & Conditions and Privacy Policy.

 
Wow!
Cost to Build Reports
Only $1.99 Right Now
Use Code CTB2026
Our Cost to Build Report gives you a personalized estimate for building your home, based on your location, plan, and materials.
Get Cost To Build Report
Limit one per order.

Residential Construction Guide

Learn Building Basics

This downloadable, 26-page guide is full of diagrams and details about plumbing, electrical, and more.

PLAN 497-49

This plan can be customized

Tell us about your desired changes so we can prepare an estimate for the design service. Click the button to submit your request for pricing, or call 1-888-447-1946 for assistance.

Modify This Plan

Plan Description


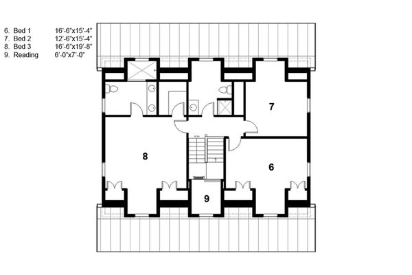
The cedar shake or the board and batten siding look as natural as the idyllic setting we have placed around this home. The Seaside Barn has large covered porches in the front and rear of the house. The small dormers in the upper floor that protrude out from the barn roof draw the eyes attention to the detail of this magnificent home. Upon entry, you are greeted by large open spaces including an enormous great room, large dining room and family sized kitchen. The ceilings are nine feet tall on the first floor. At the rear of the house behind the stair well we have tucked some of the more functional home amenities such as the laundry area, mud room and closet / storage space. Those interesting dormers that caught your eye from the exterior create very charming interior spaces. Each bedroom has its own nook as a result. By far the most curious attraction on this floor is the reading nook just above the center stair landing. You need to climb the ladder to get up to this space but once you are here it is a private escape. The master bedroom on this floor hosts its own large bathroom and walk in closet. We like the contrast of the light and dark kitchen cabinet options. Also for a more elegant look we provided a vision for this kitchen that includes coffered ceilings. This is a large open space that is ideal for family cooking. A beautiful French double door opens up onto the large rear covered porch.. Clean and modern, this home has an enormous great room anchored in the center by a large masonry fireplace. Many hours of lounging, reading, watching movies and entertaining await you in this home.

Full Specs & Features


Dimension

Depth : 32'

Height : 26' 6"

Width : 42'

Area

Main Floor : 1344 sq/ft

Porch : 504 sq/ft

Upper Floor : 1344 sq/ft

* Total Square Footage typically only includes conditioned space and does not include garages, porches, bonus rooms, or decks.

Ceiling

Main Ceiling : 9' 1"

Upper Ceiling Ft : 8' 1"

Roof

Primary Pitch : 20:12

Roof Framing : Stick

Roof Type : Gambrel

Exterior Wall Framing

Exterior Wall Finish : Cedar Shingle Siding

Framing : 2"x6"

Bedroom Features

Upstairs Bedrooms

Kitchen Features

Kitchen Island

Additional Room Features

Great Room Living Room

Outdoor Spaces

Covered Front Porch

Covered Rear Porch

More

Economical To Build

Energy Efficient Features

Energy Efficient Design

What's Included In This Plan Set


House plans created for Green Living give our customers design options that meet or exceed existing energy standards, while giving options in the realm of cost, style, and environmental commitment. As an example, all Green Living homes are designed to perform 30% to 50% better than prescriptive building code energy performance. The level of home performance depends on the products that you choose.

Each Green Living house plan includes:

Plans are typically drawn to ¼” scale and include:
  • Foundation Plan(s): This page shows all necessary notations and dimensions including footings, support columns, walls, and excavated/unexcavated areas.
  • Floor Plan(s): Detailed plans showing room dimensions, wall partitions, windows, etc. as well as the location of electrical outlets and switches.
  • Exterior Elevations: A blueprint picture of all four sides showing exterior materials and measurements.
  • Interior Elevations: Detailed drawings of kitchen cabinet elevations and other elements as required.
  • Overhead Roof Plan(s): A view of the home from above showing roof pitch, peaks, valleys, and other details.
  • Cross Section(s): A vertical cutaway view of the house from roof to foundation showing details of framing, construction, flooring and roofing.
  • Electrical Plan(s): In general, each house plan set includes an electrical plan which will show the locations of lights, receptacles, switches, etc. Note: Most Green Living plans have an electrical plan, however some do not. Please contact us to verify. Window shading details: External window shading devices are an effective method for reducing heat gains through windows during Summer. In fact, external shading devices can reduce heat gains by up to 80% if sized and built properly. With this in mind, the founders of Green Living, formerly Free Green, created this page to assist home builders in constructing effective window shading devices. The information we provide includes a zoning map of the United States, zoning charts for proper sizing of shading devices and a variety of shading device styles and materials to suite different tastes and different home designs.
  • Construction Notes and Detail(s): Shows basic parts and assemblies recommended for the home so the builder can see how things come together.
  • Framing Detail(s): The framing layout is intended to be a suggested layout only. Design loads & weather conditions vary by region. As a result the size, spacing & layout of all structural elements in this home design must be approved by a structural engineer and code official based on your specific site location prior to construction.
  • Wall Section(s): Detailed drawings showing wall connections, from foundation to the roof. wall connections to foundation, window installation, siding installation, stair details, and more.
LEED for Homes Rating System
Guidelines to meet LEED for Homes certification levels of: Certified, Silver, Gold, and Platinum. LEED for Homes is a national, voluntary certification system, developed by national experts and experienced builders, that promotes the design and construction of high-performance green homes and encourages the adoption of sustainable practices by the homebuilding industry. The LEED for Homes Rating System is part of the suite of nationally recognized LEED Green Building Rating Systems administered by USGBC. Like all LEED Rating Systems, it is the market's leadership system, targeting the top 25% of home building practices in terms of environmental responsibility. LEED provides industry resources and tools on how to "green" any new home. With LEED, homebuilders can differentiate their structures as meeting the highest performance measures, and homebuyers can readily identify high quality green homes. LEED provides national consistency in defining the features of a green home, enables builders anywhere in the country to obtain a green rating on their homes, and assures homebuyers of the quality of their purchases, all based on a recognized national brand.
» See important information before purchasing.
Questions? Call 1-888-447-1946

Plan Set

PDF Set:
$1092.96
PDF plan sets are best for fast electronic delivery and inexpensive local printing.
5 Copy Set:
$1211.76
5 printed plan sets mailed to you.
CAD Set:
$2185.92
For use by design professionals to make substantial changes to your house plan and inexpensive local printing.
Study Set:
$974.16
One electronic set for bidding purposes only. Not a legal building set for construction.

Foundation

Crawlspace:
$0.00
Ideal for semi-sloped or level lot, home can be built off of grade, typically 18” - 48”.
Slab:
$315.00
Ideal for level lot, single layer concrete poured directly on grade.

Framing

Wood 2x6:
$0.00
Wood 2x6 Exterior Walls

Additional Options

Right-Reading Reverse:
$175.50
Choose this option to reverse your plans and to have the text and dimensions readable.
Additional Construction Sets:
$45.00
Additional hard copies of the plan (can be ordered at the time of purchase and within 90 days of the purchase date).
Additional Use License:
$445.50
Allows you to build one more home for each additional license purchased.
Audio Video Design:
$135.00
Receive an overlay sheet with suggested placement of audio and video components.
Comprehensive Material List:
$265.50
A complete list of building supplies needed to construct the infrastructure of your new house, plus an overlay of materials shown directly on your PDF (foundation to rooftop with interior and exterior materials), and a detailed, itemized door and window schedule showing all sizes and types. Please allow 5-7 Business Days for completion. Note, the Comprehensive list is only available with a PDF purchase. The Comprehensive list can be ordered no matter what additional plan options you have selected.
Construction Guide:
$35.10
Educate yourself about basic building ideas with these four detailed diagrams that discuss electrical, plumbing, mechanical, and structural topics.
Lighting Design:
$135.00
Receive an overlay sheet with suggested placement of lighting fixtures.
Mirror Reversed Sets:
$0.00
A mirror-reversed set is a printed copy of your house, resulting in the same image you would see if you held the drawing up to a mirror. Everything, including the text, is backward in relation to the original design. These kinds of drawing are typically used to reorient an original plan more advantageously on a site, either because the homeowner prefers it that way or because of limitations of the site itself. Note: Mirror reverse sets are only available with a 5 copy or 8 copy set. With a Reproducible, PDF, or CAD set, you can print mirrored copies locally. In addition: 5 Copy set selected, should only allow 4 mirrored sets to be selected. 8 Copy set selected, should only allow 7 mirrored sets to be selected.
Unlimited Use License:
$895.50
Allows you to build this home as many times as you want.

* Alternate Foundations may take time to prepare.

** Options with a fee may take time to prepare. Please call to confirm.

Unless you buy an “unlimited” plan set or a multi-use license you may only build one home from a set of plans. Please call to verify if you intend to build more than once. Plan licenses are non-transferable and cannot be resold.