There’s something so tranquil and soothing about lake house plans. Perhaps it’s the peaceful sounds of lake water and nature mixed with woodsy scents just feet away from your own front door. Or maybe it’s the nostalgic memories of sweltering summer days spent by the lake with family and friends without a care in the world. Whether you are looking to build a property that is your primary residence or a vacation home that allows you to escape the hustle and bustle of everyday life, we’ve got you covered. Let’s dive in and look at some of our favorite lakefront home designs.
Browse lake house plans here
** Cabin House Plan**
Plan 23-597
Check out this lake house plan! With generous outdoor living spaces (including a screened porch in the front), this design is ideal for scenic sites. The open floor plan delivers a relaxed vibe and makes it easy to move between the great room and the kitchen. A loft space on the second level can be used in a variety of ways (like a handy home office).
Explore these rustic cabin ideas from HGTV
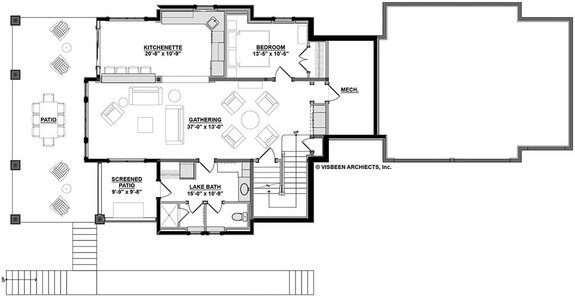
Modern Farmhouse Plan with Screened Porch
Plan 928-310
This modern farmhouse plan caters to relaxation. A large screened porch (with retractable screens) features ample room for lounging and an outdoor dining space that opens to the kitchen and living areas.
Large and in charge, this kitchen (pictured above) is loaded with features (just look at all that storage space!). The generously sized kitchen island seats up to twelve and provides plenty of room for casual meals.
Vaulted ceilings in the living room make the space feel bright and airy, while wood beams evoke cozy touches. An elegant floor-to-ceiling stone fireplace warms the room and allows for relaxed evenings in.
Check out these fireplace mantle decor ideas from Country Living
Lake House Plan with Cabin Style
Plan 137-295
Here is a warm and welcoming retreat where family and friends can relax year-round. Cabin style (above) reflects the classic charm of lakeside dwellings, inside and out. Beginning with the vast and wide front porch, this home was clearly designed with outdoor living in mind.
Taking advantage of every square inch of space, the open floor plan helps to create a convenient and casual flow throughout the main living areas. The upper floor plan includes a sleeping loft that can be used as a home office.
Timeless House Design with Compact Footprint
Plan 47-657
For a timeless house design with a compact footprint, look no further than this relaxing and versatile vacation hideaway (above). Complete with a balcony that offers great views from the upper-floor master bedroom and a deep deck that sweeps up to the entry for easy outdoor living. Enjoy a contemporary (and open) layout between the kitchen, living (with a cozy fireplace), and dining areas.
Cabin Lake House Plan
Plan 47-871
Drenching the home with sunlight, large windows provide expansive views and comfortable outdoor living in this sweet house plan (above). Designed to maximize space, a vaulted ceiling in the living room includes full-height windows that overlook the deck and connect the interior and exterior.
Additional highlights to this plan include: three beds, two baths, fireplace, sliding glass doors to the deck, and private access to the deck from the master suite.
One-Story House Plan with Large Deck
Plan 47-937
This house design makes sure you get plentiful amounts of natural light (with an expansive wall of glass overlooking the front deck), while the main living areas flow organically into one another for an easy livability.
A triangular snack bar in the kitchen provides space casual meals (or makes a great spot for kids to do homework). With a split-bedroom design, homeowners can escape chaos and retreat to their own private master oasis.
Country Style with Open Floor Plan
Plan 928-4
Flanked by a generous front porch, a sheltered rear terrace, high gables, oval windows, and screened porch (bye bugs!), this home (above) was designed to capture breezes and views.
Packing in five sizable bedrooms, four baths, a loft, two bunks (pictured above), and a flow of living spaces, this dwelling exudes a sense of welcome and comfort. Bright and airy, the kitchen is loaded with features. The open space and generous island (with decorative legs) provide ample opportunities for entertaining friends and families. A wood hood range, farm sink, and shaker style cabinetry lend classic touches.
Lake House Plan with Country Flair
Plan 928-297
This country house design is the one you’ve been dreaming of. It exudes comfort, charm, and cozy elegance. The contemporary open floor plan encourages movement and a sense of community throughout the main living areas.
A wide covered patio and deck (above) promotes outdoor fun. Rainy day? Relax on the screened porch and enjoy the afternoon soaking in the calming sounds of nature with a nice glass of tea.
The kitchen (pictured above) is a major highlight of this home, with a long island capped by a pub-height table and chairs. Built-in bunk beds (above) were designed with convenience in mind and help maximize space.
















