SAVED No Saved House Plans REGISTER LOGIN Empty Cart
BLOG
Our Favorites + Building Knowledge and Materials
Home>Articles

Flexible 3 Bedroom, 3 Bath House Plans Under 2,000 Sq. Ft.

Flexible 3 Bedroom, 3 Bath House Plans Under 2,000 Sq. Ft.
Adaptable house plans under 2,000 sq. ft.

Flexible 3 Bedroom, 3 Bath House Plans Under 2,000 Sq. Ft.

By Devin Uriarte

Here’s a fine collection of flexible house plans, where functionality meets comfort in the most surprising ways. Picture a cozy home with three bedrooms, three bathrooms, and a modern open floor plan all neatly packaged under 2,000 sq. ft. These house plans offer thoughtful storage solutions and floor layouts that are adaptable for change.

Browse more 3 bed, 3 bath house plans here.

Charming Curb Appeal Charming Curb Appeal Charming Curb Appeal - Front Exterior

Charming Curb Appeal Charming Curb Appeal - Main Floor Plan

Charming Curb Appeal Charming Curb Appeal - Upper Floor Plan

The attractive curb appeal of this three-bedroom house plan is incredibly welcoming. The optional detached garage adds some flexibility to the space and the breezeway keeps you covered while bringing in groceries. Another thoughtful detail in this plan is the private bedroom upstairs. The bedroom has its own bathroom, which makes this a great space for guests or live-in relatives. The loft space could be used as an office and the window seat is a charming feature that owners will love.

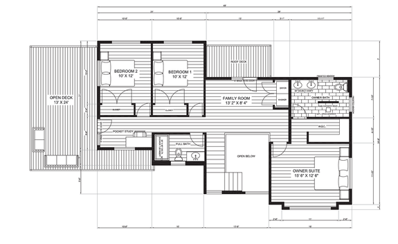
Modern House Plan with Multiple Decks Modern House Plan with Multiple Decks - Front Exterior

Modern House Plan with Multiple Decks Modern House Plan with Multiple Decks- Main Floor Plan

Modern House Plan with Multiple Decks Modern House Plan with Multiple Decksors - Upper Floor Plan

This plan that’s under 2,000 sq. ft. could be a great option to build on a hill as it has an unfinished lower level. The outdoor spaces on both the main and upper levels are ideal for lounging in the sun. A spacious kitchen flows out to the open deck where owners can host dinners during the summer. On the upper level there’s a sizeable deck past the two guest bedrooms that’s large enough to fit outdoor furniture. The final outdoor space is also upstairs and is next to the sitting room.

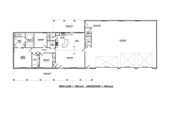
Barndominium with Room for RVs Barndominium with Room for RVs Barndominium with Room for RVs - Front Exterior

Barndominium with Room for RVs Barndominium with Room for RVs - Main Floor Plan

Owners that need additional storage space will find this plan a great fit. There’s a four-car garage attached to the main living space with a large workshop and a bathroom. The elevated ceilings allow large recreational vehicles to fit inside. Inside the home is the open living space that flows out to the covered patio. Down the long hallway are the two guest bedrooms and the primary suite with a walk-in closet and bathroom.

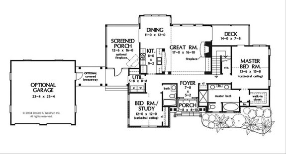
Unique and Flexible Layout Unique and Flexible Layout Unique and Flexible Layout - Front Exterior

Unique and Flexible Layout Unique and Flexible Layout - Main Floor Plan

Unique and Flexible Layout Unique and Flexible Layout - Upper Floor Plan

What’s so unique about this three-bedroom plan are the two separate wings, one featuring a flexible living space and the other a guest zone and a single-car garage. A foyer connects the two sides and leads into the main living space, where a large patio is easily accessible.

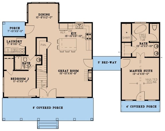
Cottage Plan with Very Private Main Suite [Cottage Plan with Very Private Main Suite(plan:923-262) Cottage Plan with Very Private Main Suite - Front Exterior

Cottage Plan with Very Private Main Suite Cottage Plan with Very Private Main Suite - Main Floor Plan

Cottage Plan with Very Private Main Suite Cottage Plan with Very Private Main Suite - Upper Floor Plan

This adorable cottage has a private primary suite for owners with its own welcoming front porch. A breezeway connects the suite to the open living space where there’s a large kitchen island for meal prepping and hosting. Upstairs there’s a bunkroom and a bonus room, which owners could use as a media room or even an office.

See more 3 bed, 3 bath house plans.

Flexible 3 Bedroom, 3 Bath House Plans Under 2,000 Sq. Ft.

Today's Deals