SAVED No Saved House Plans REGISTER LOGIN Empty Cart
BLOG
Our Favorites + Building Knowledge and Materials
Home>Articles

Small 5 Bedroom House Plans Under 2,100 Sq. Ft.

Small 5 Bedroom House Plans Under 2,100 Sq. Ft.
Small homes for big families

Small 5 Bedroom House Plans Under 2,100 Sq. Ft.

by Jenny Clark

Need a five-bedroom home that doesn't break the bank? Check out the small five-bedroom house plans below. Each design is under 2,100 sq. ft.

View the Five-Bedroom House Plan Collection

1. Big Garage

Small Single-Story Five-Bedroom House Plan 513-2195 - Front Exterior Small Single-Story Five-Bedroom House Plan 513-2195 - Front Exterior

Small Single-Story Five-Bedroom House Plan 513-2195 - Main Floor Small Single-Story Five-Bedroom House Plan 513-2195 - Main Floor

In addition to five bedrooms, this 1,996 sq. ft. cottage-style ranch design offers three baths, an open floor plan, a kitchen island, and a three-car garage. Inside the primary suite, note the spacious walk-in closet.

2. Cool Contemporary Cabin

Small Five-Bedroom Contemporary Cabin Plan 25-4925 - Front Exterior Small Five-Bedroom Contemporary Cabin Plan 25-4925 - Front Exterior

Small Five-Bedroom Contemporary Cabin Plan 25-4925 - Main Floor Small Five-Bedroom Contemporary Cabin Plan 25-4925 - Main Floor

Small Five-Bedroom Contemporary Cabin Plan 25-4925 - Upper Floor Small Five-Bedroom Contemporary Cabin Plan 25-4925 - Upper Floor

Small Five-Bedroom Contemporary Cabin Plan 25-4925 - Lower Floor Small Five-Bedroom Contemporary Cabin Plan 25-4925 - Lower Floor

This contemporary cabin plan is just...cool! It's small (only 2,084 sq. ft.), narrow (only 26 ft. wide), and somehow manages to showcase five bedrooms, one of which includes a spacious walk-in closet and a private deck for morning coffee. How sweet is that?!

3. It's a Duplex!

Small Five-Bedroom Duplex House Plan 542-20 - Front Exterior Small Five-Bedroom Duplex House Plan 542-20 - Front Exterior

Small Five-Bedroom Duplex House Plan 542-20  - Main Floor Small Five-Bedroom Duplex House Plan 542-20 - Main Floor

Small Five-Bedroom Duplex House Plan 542-20  - Upper Floor Small Five-Bedroom Duplex House Plan 542-20 - Upper Floor

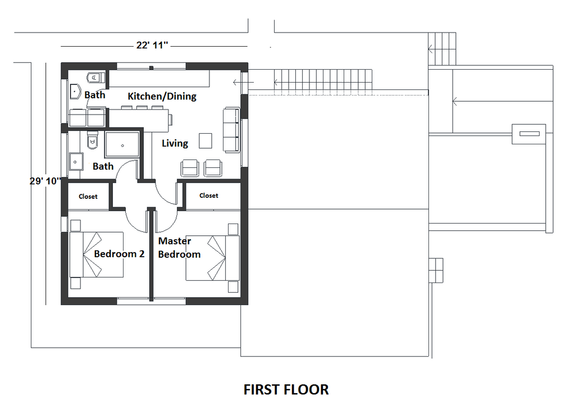
This small five-bedroom house plan is actually a duplex. The main level and the upper level are their own units with unique entryways. The main unit presents three bedrooms, two-and-a-half baths, a kitchen island, a living room, and a covered front porch. Meanwhile, the smaller upper unit features two bedrooms, one-and-a-half baths, and a kitchen/dining/living space.

4. Split-Bedroom Interior Design

Small Five-Bedroom House Plan 513-18 - Front Exterior Small Five-Bedroom House Plan 513-18 - Front Exterior

Small Five-Bedroom House Plan 513-18  - Main Floor Small Five-Bedroom House Plan 513-18 - Main Floor

Here we have a small five-bedroom house plan that boasts a split-bedroom interior design–where the primary suite lives on one side of the house, and the other bedrooms live on the opposite side. This type of layout is meant to afford the primary suite maximum privacy and peace, keeping noise and commotion from the other bedrooms at a distance. In addition to five bedrooms, this 1,988 sq. ft. layout boasts three baths, a two-car garage, a study, a modern open-concept living space, and a kitchen island.

5. Upstairs Bedrooms

Small Five-Bedroom House Plan 569-34 - Front Exterior Small Five-Bedroom House Plan 569-34 - Front Exterior

Small Five-Bedroom House Plan 569-34  - Main Floor Small Five-Bedroom House Plan 569-34 - Main Floor

Small Five-Bedroom House Plan 569-34  - Upper Floor Small Five-Bedroom House Plan 569-34 - Upper Floor

This small traditional house plan features five bedrooms on its upper level. Take note: if you decided to make the downstairs den a guest bedroom, this could actually be a small six-bedroom house plan! Other cool call-outs of this design include: a walk-in pantry, a mudroom, and an upstairs laundry/utility area.

Find more five-bedroom house plan designs!

Small 5 Bedroom House Plans Under 2,100 Sq. Ft.

Today's Deals