- Jump to:
- All (6)
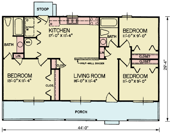
- Floor plans (1)
Phone: 1-888-447-1946
See our Terms & Conditions and Privacy Policy.
Use Code CTBFALL
Residential Construction Guide
Learn Building Basics
This downloadable, 26-page guide is full of diagrams and details about plumbing, electrical, and more.
PLAN 54-611
This plan can be customized
Tell us about your desired changes so we can prepare an estimate for the design service. Click the button to submit your request for pricing, or call 1-888-447-1946 for assistance.
Plan Description
Floor Plans
Full Specs & Features
Dimension
Depth : 33' 4"
Width : 44'
Area
Main Floor : 1056 sq/ft
Porch : 235 sq/ft
Ceiling
Main Ceiling : 8'
Roof
Primary Pitch : 5:12
Roof Framing : Stick
Roof Type : Shingles
Exterior Wall Framing
Exterior Wall Finish : Board & Batten
Framing : 2x4
Insulation : PER IRC REQUIREMENTS
Bedroom Features
Main Floor Master Bedroom
Walk In Closet
Kitchen Features
Walk In Pantry Cabinet Pantry
Additional Room Features
Family Room Keeping Room
Main Floor Laundry
Outdoor Spaces
Covered Front Porch
More
Economical To Build
What's Included In This Plan Set
- Foundation Plan: Drawn to 1/4" scale, this page shows all necessary notations and dimensions including support columns, walls and excavated and unexcavated areas.
- Exterior Elevations: A blueprint picture of all four sides showing exterior materials and measurements.
- Floor Plan(s): Detailed plans, drawn to 1/4" scale for each level showing room dimensions, wall partitions, windows, etc. as well as the location of electrical outlets and switches.
- Cross Section: A vertical cutaway view of the house from roof to foundation showing details of framing, construction, flooring and roofing.
- Interior Elevations: Detailed drawings of kitchen cabinet elevations and other elements as required.
Plan Set
$845.75
$1058.25
$1143.25
$1568.25
$2248.25
Foundation
$0.00
$255.00
Framing
$0.00
$297.50
Additional Options
$191.25
$140.25
$250.75
$33.15
$140.25
* Alternate Foundations may take time to prepare.
** Options with a fee may take time to prepare. Please call to confirm.
 
         
         
                 
                         
                 
                 
                 
                 
                 
                 
                 
                 
                 
                 
                         
                        