SAVED No Saved House Plans REGISTER LOGIN Empty Cart
Don't lose your saved plans!  Create an account to access your saves whenever you want. See our Terms & Conditions and Privacy Policy.
15% OFF THIS PLAN TODAY

PLAN 23-2830

Photographs may show modified designs.

Save
  • Jump to:
  • All (13)
  • Floor plans (2)
Questions? Get Personalized Help
Home  >  Style  >  Bungalow

Key Specs


Plan Sq Ft

1178
sq ft

Plan Bedrooms

3
Beds

Plan Bathrooms

1
Baths

Plan Floors

1
Floors

Plan Garages

0
Garages

Select Plan Set Options

What's included?

Additional options

Dropdown arrow

Right-Reading Reverse
$225.25
Choose this option to reverse your plans and to have the text and dimensions readable.
Additional Construction Sets
$63.75/each
Additional hard copies of the plan (can be ordered at the time of purchase and within 90 days of the purchase date).
Audio Video Design
$140.25
Receive an overlay sheet with suggested placement of audio and video components.
Comprehensive Material List
$250.75
A complete list of building supplies needed to construct the infrastructure of your new house, plus an overlay of materials shown directly on your PDF (foundation to rooftop with interior and exterior materials), and a detailed, itemized door and window schedule showing all sizes and types. Please allow 5-7 Business Days for completion. Note, the Comprehensive list is only available with a PDF purchase. The Comprehensive list can be ordered no matter what additional plan options you have selected.
Construction Guide
$33.15
Educate yourself about basic building ideas with these four detailed diagrams that discuss electrical, plumbing, mechanical, and structural topics.
Lighting Design
$140.25
Receive an overlay sheet with suggested placement of lighting fixtures.
Subtotal
$1450.00 NOW $1232.50
You save $217.50 (15% savings)
Sale ends soon!
Best Price Guaranteed*

Also order by phone: 1-888-447-1946
 
Questions about building your home?
Get Personalized Help
We do our best to get back to you within 24 - 48 business hours.
Need an answer faster? Call now...
Phone: 1-888-447-1946
Hours:
Ready for Your Call 7 Days a Week
Every Day 7 am - 8:30 pm Eastern

See our Terms & Conditions and Privacy Policy.

 
Wow!
Cost to Build Reports
Only $1.99 Right Now
Use Code CTB2026
Our Cost to Build Report gives you a personalized estimate for building your home, based on your location, plan, and materials.
Get Cost To Build Report
Limit one per order.

Residential Construction Guide

Learn Building Basics

This downloadable, 26-page guide is full of diagrams and details about plumbing, electrical, and more.

PLAN 23-2830

This plan can be customized

Tell us about your desired changes so we can prepare an estimate for the design service. Click the button to submit your request for pricing, or call 1-888-447-1946 for assistance.

Modify This Plan

Plan Description


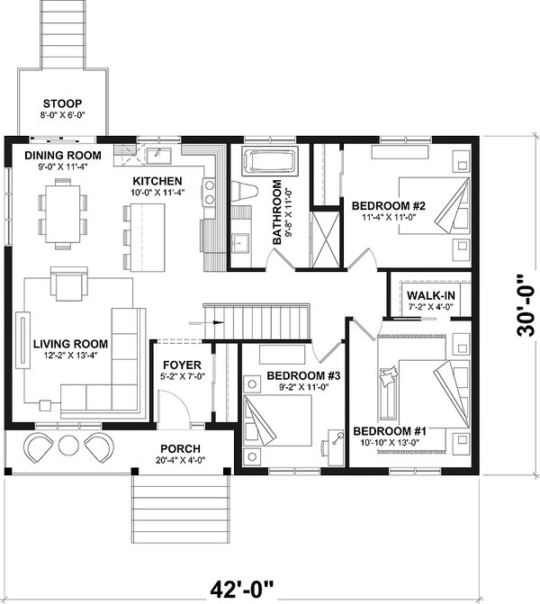
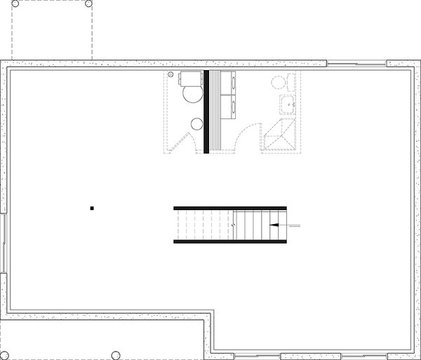
Bungalow plan with 9' ceiling on the entire ground floor. Open concept and beautiful natural light in the kitchen, dining room and living room. Kitchen island. Primary bedroom with walk-in closet. Family bathroom with separate bath and shower. Total of 3 bedrooms on the ground floor. Basement with laundry room and space to finish according to your needs.

Full Specs & Features


Dimension

Depth : 30'

Height : 20' 5"

Width : 42'

Area

Basement : 1178 sq/ft

Main Floor : 1178 sq/ft

Porch : 129 sq/ft

* Total Square Footage typically only includes conditioned space and does not include garages, porches, bonus rooms, or decks.

Ceiling

Main Ceiling : 9'

Roof

Roof Framing : Truss

Bedroom Features

Main Floor Master Bedroom

Walk In Closet

Kitchen Features

Eating Bar

Additional Room Features

Great Room Living Room

Lot Characteristics

Suited For Narrow Lot

Outdoor Spaces

Covered Front Porch

More

Economical To Build

Empty Nester

What's Included In This Plan Set


Important This designer may need 5-7 business days to update the plan content when an order is placed. Please call to confirm your order details.


Plans are typically drawn to ¼” scale and include:
  • Foundation Plan(s): Foundation plans typically include: All exterior / interior dimensions, thickness of foundation walls (if variable), all structural details, location of stairwell, location and size of windows and location / dimensions of footings (where applicable and required)
  • Floor Plan(s): Floor plans typically include: All interior / exterior dimensions (included but not as a schedule), location and sizes of doors / windows, indication of the structure above (second floor or roof), indication that details are on other pages
  • Exterior Elevations: Front, rear, left & right sides) typically include: Floor/ceiling heights, dimensions of standard windows & roof overhangs, location of all needed flashings, height and location of foundation, type of finishing and textures, dimensions of chimney,
  • Overhead Roof Plan(s): Roof plans typically include: location of all the different trusses, general overcharge of the roof compared to the floor footprint.
  • Cross Section(s): A slice of the home from roof to foundation, showing relationships between floors, roof, and foundation.
  • Construction Notes / Detail(s): Details typically include: Roof sections, sections of concrete wall with wood connection, sections of walls with particular called out, section of concrete porch and connection with wood frame, foundation particulars, wall components.
  • Wall Section(s): Wall sections typically include: All the details and components needed in construction.
NOTE: This plan does not included HVAC, electrical and plumbing.

*** Please note that some plans from this designer may be delayed 5-7 days as they are updating plan content. ***
» See important information before purchasing.
Questions? Call 1-888-447-1946

Plan Set

PDF Set:
$1232.50
PDF plan sets are best for fast electronic delivery and inexpensive local printing.
Three Copy and PDF Set:
$1351.50
3 printed plan sets mailed to you plus PDF plan sets are best for fast electronic delivery and inexpensive local printing.
CAD Set:
$2082.50
For use by design professionals to make substantial changes to your house plan and inexpensive local printing.

Foundation

Basement:
$0.00
Ideal for level lot, lower level of home partially or fully underground.
Crawlspace:
$382.50
Ideal for semi-sloped or level lot, home can be built off of grade, typically 18” - 48”.
Floating Slab:
$382.50
A concrete slab that covers the ground with no anchoring, it simply floats. Typical for garages and workshop plans.
Monolithic Slab:
$382.50
A single concrete pour with thicker portions that replace footers under load bearing walls and all perimeter edges.

Framing

Wood 2x6:
$0.00
Wood 2x6 Exterior Walls

Additional Options

Right-Reading Reverse:
$225.25
Choose this option to reverse your plans and to have the text and dimensions readable.
Additional Construction Sets:
$63.75
Additional hard copies of the plan (can be ordered at the time of purchase and within 90 days of the purchase date).
Audio Video Design:
$140.25
Receive an overlay sheet with suggested placement of audio and video components.
Comprehensive Material List:
$250.75
A complete list of building supplies needed to construct the infrastructure of your new house, plus an overlay of materials shown directly on your PDF (foundation to rooftop with interior and exterior materials), and a detailed, itemized door and window schedule showing all sizes and types. Please allow 5-7 Business Days for completion. Note, the Comprehensive list is only available with a PDF purchase. The Comprehensive list can be ordered no matter what additional plan options you have selected.
Construction Guide:
$33.15
Educate yourself about basic building ideas with these four detailed diagrams that discuss electrical, plumbing, mechanical, and structural topics.
Lighting Design:
$140.25
Receive an overlay sheet with suggested placement of lighting fixtures.

* Alternate Foundations may take time to prepare.

** Options with a fee may take time to prepare. Please call to confirm.

Unless you buy an “unlimited” plan set or a multi-use license you may only build one home from a set of plans. Please call to verify if you intend to build more than once. Plan licenses are non-transferable and cannot be resold.