- Jump to:
- All (4)
- Floor plans (2)
Phone: 1-888-447-1946
See our Terms & Conditions and Privacy Policy.
Use Code CTBFALL
Residential Construction Guide
Learn Building Basics
This downloadable, 26-page guide is full of diagrams and details about plumbing, electrical, and more.
PLAN 72-294
This plan can be customized
Tell us about your desired changes so we can prepare an estimate for the design service. Click the button to submit your request for pricing, or call 1-888-447-1946 for assistance.
Plan Description
Floor Plans
Full Specs & Features
Dimension
Depth : 26'
Height : 21'
Width : 32'
Area
First Floor: 832 sq/ft height 8'
Second Floor: 512 sq/ft
Ceiling
Main Ceiling : 8'
Roof
Primary Pitch : 9:12
Roof Framing : Conventional
Roof Type : Shingle
Exterior Wall Framing
Exterior Wall Finish : Siding
Framing : 2"x4"
Bedroom Features
Guest Suite
Main Floor Bedrooms
Upstairs Master Bedrooms
Lot Characteristics
Suited For Narrow Lot
Rooms
3rd BR Closet:
6 sq/ft width 2' 4" x depth 2' 10"
Basement Foundation:
720 sq/ft width 24' x depth 30'
Bathroom 2:
35 sq/ft width 5' x depth 7'
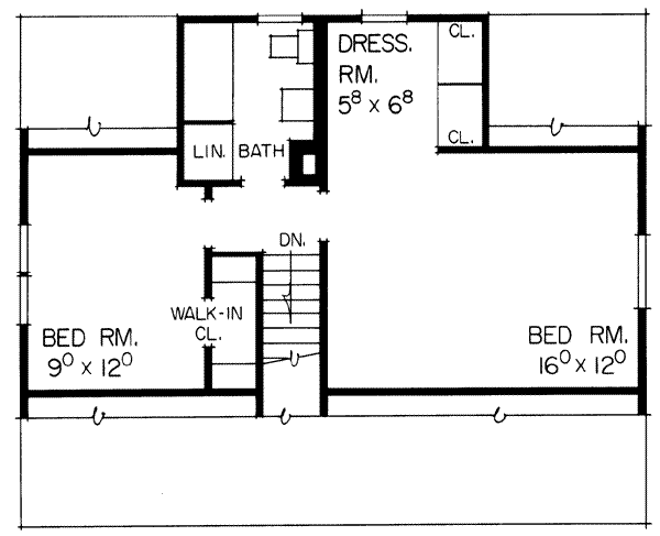
Bedroom 2:
108 sq/ft width 9' x depth 12'
Bedroom 2 Closet:
16 sq/ft width 2' 4" x depth 6' 11"
Bedroom 3:
92 sq/ft width 8' x depth 11' 6"
Bedroom 3 Closet:
16 sq/ft width 2' 4" x depth 6' 11"
Bedroom 4:
130 sq/ft width 11' 2" x depth 11' 8"
Bedroom 4 Closet:
12 sq/ft width 2' 1" x depth 6' 1"
Dining Room:
88 sq/ft width 8' x depth 11'
Hall Closet:
5 sq/ft width 1' 10" x depth 2' 10"
Kitchen:
92 sq/ft width 8' x depth 11' 6"
Living Room:
216 sq/ft width 13' 6" x depth 16'
Master Bathroom:
56 sq/ft width 7' x depth 8'
Master Bedroom:
192 sq/ft width 12' x depth 16'
Master Closet:
13 sq/ft width 2' 1" x depth 6' 4"
What's Included In This Plan Set
All plans are drawn at ¼” scale or larger and include :
- Foundation Plan: This page shows all necessary notations and dimensions including support columns, walls, and excavated/unexcavated areas.
- Exterior Elevations: Views of the home from all four sides showing exterior materials and measurements.
- Floor Plan(s): Detailed plans for each level showing room dimensions, wall partitions, windows and doors, etc.
- Cross Section: A slice of the home from roof to foundation, showing important details like stairs and wall construction.
- Overhead Roof Plan(s): A view of the home from above showing roof pitch, peaks, valleys, and other details.
- Construction Notes and Details: Shows the builder how things come together, like walls, the chimney, insulation, and more.
Plan Set
$785.40
$897.60
$1009.80
$673.20
Foundation
$0.00
Additional Options
$165.75
$51.00
$420.75
$127.50
$250.75
$33.15
$127.50
$72.25
$0.00
$845.75
* Alternate Foundations may take time to prepare.
** Options with a fee may take time to prepare. Please call to confirm.
 
         
         
                 
                         
                         
                 
                 
                 
                 
                 
                 
                