- Jump to:
- All (7)
- Floor plans (2)
Key Specs
1440
sq ft
3
Beds
2
Baths
2
Floors
0
Garages
Phone: 1-888-447-1946
See our Terms & Conditions and Privacy Policy.
Use Code CTBFALL
Residential Construction Guide
Learn Building Basics
This downloadable, 26-page guide is full of diagrams and details about plumbing, electrical, and more.
PLAN 23-503
This plan can be customized
Tell us about your desired changes so we can prepare an estimate for the design service. Click the button to submit your request for pricing, or call 1-888-447-1946 for assistance.
Plan Description
Floor Plans
Full Specs & Features
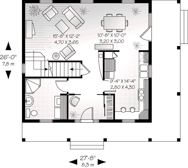
Dimension
Depth : 26'
Height : 27' 4"
Width : 27' 8"
Area
First Floor: 720 sq/ft height 8'
Second Floor: 720 sq/ft height 8'
Roof
Primary Pitch : 7:12
Roof Framing : Truss
Roof Type : Shingle
Secondary Pitch : 12:12
Exterior Wall Framing
Exterior Wall Finish : Siding
Framing : Wood - 2x6
Bedroom Features
Upstairs Master Bedrooms
Lot Characteristics
Suited For Narrow Lot
Rooms
Bedroom 1:
161 sq/ft width 13' 8" x depth 11' 10"
Bedroom 2:
96 sq/ft width 10' x depth 9' 8"
Bedroom 3:
100 sq/ft width 10' x depth 10'
Dining Room:
106 sq/ft width 10' 8" x depth 10'
Family Room:
190 sq/ft width 15' 8" x depth 12' 2"
Kitchen:
133 sq/ft width 9' 4" x depth 14' 4"
What's Included In This Plan Set
Plans are typically drawn to ¼” scale and include:
- Foundation Plan(s): Foundation plans typically include: All exterior / interior dimensions, thickness of foundation walls (if variable), all structural details, location of stairwell, location and size of windows and location / dimensions of footings (where applicable and required)
- Floor Plan(s): Floor plans typically include: All interior / exterior dimensions (included but not as a schedule), location and sizes of doors / windows, indication of the structure above (second floor or roof), indication that details are on other pages
- Exterior Elevations: Front, rear, left & right sides) typically include: Floor/ceiling heights, dimensions of standard windows & roof overhangs, location of all needed flashings, height and location of foundation, type of finishing and textures, dimensions of chimney,
- Overhead Roof Plan(s): Roof plans typically include: location of all the different trusses, general overcharge of the roof compared to the floor footprint.
- Cross Section(s): A slice of the home from roof to foundation, showing relationships between floors, roof, and foundation.
- Construction Notes / Detail(s): Details typically include: Roof sections, sections of concrete wall with wood connection, sections of walls with particular called out, section of concrete porch and connection with wood frame, foundation particulars, wall components.
- Wall Section(s): Wall sections typically include: All the details and components needed in construction.
*** Please note that some plans from this designer may be delayed 5-7 days as they are updating plan content. ***
Plan Set
$1224.00
$1343.00
$2074.00
Foundation
$0.00
$361.25
$361.25
Additional Options
$212.50
$55.25
$140.25
$250.75
$33.15
$140.25
* Alternate Foundations may take time to prepare.
** Options with a fee may take time to prepare. Please call to confirm.
 
         
         
                         
                         
                 
                 
                 
                 
                 
                 
                 
                