- Jump to:
- All (2)
- Floor plans (1)
Phone: 1-888-447-1946
See our Terms & Conditions and Privacy Policy.
Use Code CTBFALL
Residential Construction Guide
Learn Building Basics
This downloadable, 26-page guide is full of diagrams and details about plumbing, electrical, and more.
PLAN 410-333
This plan can be customized
Tell us about your desired changes so we can prepare an estimate for the design service. Click the button to submit your request for pricing, or call 1-888-447-1946 for assistance.
Plan Description
Floor Plans
Full Specs & Features
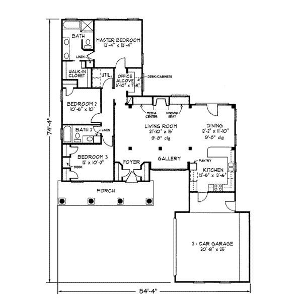
Dimension
Depth : 75'
Height : 19'
Width : 54'
Area
First Floor: 1672 sq/ft height 8'
Exterior Wall Framing
Exterior Wall Finish : Siding
Framing : 2"x4"
Bedroom Features
Walk In Closet
Kitchen Features
Eating Bar
Additional Room Features
Den Office Study Computer
Storage Area
Garage Features
Side Entry Garage
Lot Characteristics
Suited For Corner Lot
Outdoor Spaces
Covered Front Porch
Rooms
Bedroom 2:
106 sq/ft width 10' 8" x depth 10'
Bedroom 3:
122 sq/ft width 12' x depth 10' 2"
Computer Room:
29 sq/ft width 3' 10" x depth 7' 8"
Dining Room:
143 sq/ft width 12' 2" x depth 11' 10"
Garage:
516 sq/ft width 20' 8" x depth 25'
Kitchen:
158 sq/ft width 12' 8" x depth 12' 6"
Living Room:
327 sq/ft width 21' 10" x depth 15'
Master Bedroom:
177 sq/ft width 13' 4" x depth 13' 4"
What's Included In This Plan Set
All plans are drawn at ¼” scale or larger and include :
- Foundation Plan: This page shows all necessary notations and dimensions including support columns, walls, and excavated/unexcavated areas.
- Exterior Elevations: Views of the home from all four sides showing exterior materials and measurements.
- Floor Plan(s): Detailed plans for each level showing room dimensions, wall partitions, windows and doors, etc.
- Cross Section: A slice of the home from roof to foundation, showing important details like stairs and wall construction.
- Overhead Roof Plan(s): A view of the home from above showing roof pitch, peaks, valleys, and other details.
- Construction Notes and Details: Shows the builder how things come together, like walls, the chimney, insulation, and more.
Plan Set
$867.85
$433.50
Foundation
$0.00
Additional Options
$42.50
$85.00
$33.15
$85.00
$51.00
* Alternate Foundations may take time to prepare.
** Options with a fee may take time to prepare. Please call to confirm.
 
         
         
                 
                         
                 
                 
                 
                 
                 
                 
                 
                 
                         
                        