Don't lose your saved plans!  Create an account to access your saves whenever you want.  
          See our Terms & Conditions and Privacy Policy.
        
      - Jump to:
- All (2)
- Floor plans (1)
Get Personalized Help
    We do our best to get back to you within 24 - 48 business hours.
  Need an answer faster?  Call now...
Phone: 1-888-447-1946
  Phone: 1-888-447-1946
Hours:     
  Ready for Your Call 7 Days a Week
    Every Day 7 am - 8:30 pm Eastern
  See our Terms & Conditions and Privacy Policy.
Wow!
      Cost to Build Reports
      Only $1.99 Right Now
Use Code CTBFALL
    Use Code CTBFALL
         Our Cost to Build Report gives you a personalized estimate for building your home, based on your location, plan, and materials.
      
      
        Get Cost To Build Report
        
    Limit one per order.
      Residential Construction Guide
Learn Building Basics
This downloadable, 26-page guide is full of diagrams and details about plumbing, electrical, and more.
PLAN 45-497
This plan can be customized
Tell us about your desired changes so we can prepare an estimate for the design service. Click the button to submit your request for pricing, or call 1-888-447-1946 for assistance.
Plan Description
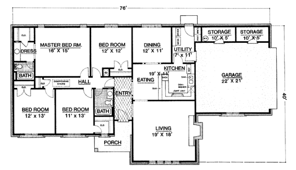
            This country design floor plan is 1870 sq ft and has 3 bedrooms and 2 bathrooms.          
          
          Floor Plans
Full Specs & Features
Dimension
Depth : 40'
Width : 76'
Area
First Floor: 1870 sq/ft
* Total Square Footage typically only includes conditioned space and does not include garages, porches, bonus rooms, or decks.
                                  Exterior Wall Framing
Exterior Wall Finish : Brick
Framing : Wood - 2x4
Bedroom Features
Fireplace
Formal Dining Room
Walk In Closet
Kitchen Features
Breakfast Nook
Kitchenette Wet Bar
Outdoor Spaces
Covered Front Porch
What's Included In This Plan Set
                  Plans are typically drawn to ¼” scale and include:
                » See important
                  information before purchasing.
                          - Cover Sheet: Drawing index, designer contact info, plan name/number, legal disclaimers.
- Foundation Plan(s): Each plan is designed on a specific type of foundation. Optional foundation types may be offered. Refer to the general information listed with each plan to determine foundation type and options available.
- Floor Plan(s): Complete with the window and door schedules. Electrical plans, with suggested switch, fixture and outlet locations, may be part of the floor plan or a separate drawing.
- Exterior Elevations: Exterior views
- Interior Elevations: Detailed drawings
- Overhead Roof Plan(s): A view of the home from above showing roof pitch, peaks, valleys, and other details.
- Cross Section(s): A slice of the home from roof to foundation, showing relationships between floors, roof, and foundation.
- Building Section(s): Shows the relationship between different levels, wall heights, and the overall building volume. May include details like foundation, framing, insulation, and finishes.
- Construction Notes / Detail(s): Shows basic parts and assemblies recommended for the home so the builder can see how things come together.
- Specification(s): Specifications list the types of materials used in the construction of the home. Finish schedules are provided.
Questions? Call 1-888-447-1946
            Plan Set
PDF Set:
$1000.00
                $1000.00
PDF plan sets are best for fast electronic delivery and inexpensive local printing.
                              5 Copy Set:
$1130.00
                $1130.00
5 printed plan sets mailed to you.
                              8 Copy Set:
$1240.00
                $1240.00
8 printed plan sets mailed to you.
                              5 Copy and PDF Set:
$1255.00
                $1255.00
5 printed plan sets mailed to you plus PDF plan sets are best for fast electronic delivery and inexpensive local printing.
                          Foundation
Slab:
$0.00
                  $0.00
Ideal for level lot, single layer concrete poured directly on grade.
                                  Crawlspace:
$175.00
                  $175.00
Ideal for semi-sloped or level lot, home can be built off of grade, typically 18” - 48”.
                              Framing
Wood 2x4:
$0.00
                  $0.00
Wood 2x4 Exterior Walls
                              Additional Options
Additional Construction Sets:
$45.00
                $45.00
Additional hard copies of the plan (can be ordered at the time of purchase and within 90 days of the purchase date).
                              Audio Video Design:
$165.00
                $165.00
Receive an overlay sheet with suggested placement of audio and video components.
                              Construction Guide:
$39.00
                $39.00
Educate yourself about basic building ideas with these four detailed diagrams that discuss electrical, plumbing, mechanical, and structural topics.
                              Lighting Design:
$165.00
                $165.00
Receive an overlay sheet with suggested placement of lighting fixtures.
                              Mirror Reversed Sets:
$75.00
                $75.00
A mirror-reversed set is a printed copy of your house, resulting in the same image you would see if you held the drawing up to a mirror. Everything, including the text, is backward in relation to the original design. These kinds of drawing are typically used to reorient an original plan more advantageously on a site, either because the homeowner prefers it that way or because of limitations of the site itself. Note: Mirror reverse sets are only available with a 5 copy or 8 copy set. With a Reproducible, PDF, or CAD set, you can print mirrored copies locally. In addition: 5 Copy set selected, should only allow 4 mirrored sets to be selected. 8 Copy set selected, should only allow 7 mirrored sets to be selected. 
                          * Alternate Foundations may take time to prepare.
** Options with a fee may take time to prepare. Please call to confirm.
Unless you buy an “unlimited” plan set or a multi-use license you may only build one home from a set of plans. Please call to verify if you intend to build more than once. Plan licenses are non-transferable and cannot be resold.
          
         
         
         
                 
                         
                 
                 
                 
                 
                 
                 
                 
                 
                 
                