Don't lose your saved plans!  Create an account to access your saves whenever you want.  
          See our Terms & Conditions and Privacy Policy.
        
      - Jump to:
- All (2)
- Floor plans (1)
Get Personalized Help
    We do our best to get back to you within 24 - 48 business hours.
  Need an answer faster?  Call now...
Phone: 1-888-447-1946
  Phone: 1-888-447-1946
Hours:     
  Ready for Your Call 7 Days a Week
    Every Day 7 am - 8:30 pm Eastern
  See our Terms & Conditions and Privacy Policy.
Wow!
      Cost to Build Reports
      Only $1.99 Right Now
Use Code CTBFALL
    Use Code CTBFALL
         Our Cost to Build Report gives you a personalized estimate for building your home, based on your location, plan, and materials.
      
      
        Get Cost To Build Report
        
    Limit one per order.
      Residential Construction Guide
Learn Building Basics
This downloadable, 26-page guide is full of diagrams and details about plumbing, electrical, and more.
PLAN 54-549
This plan can be customized
Tell us about your desired changes so we can prepare an estimate for the design service. Click the button to submit your request for pricing, or call 1-888-447-1946 for assistance.
Plan Description
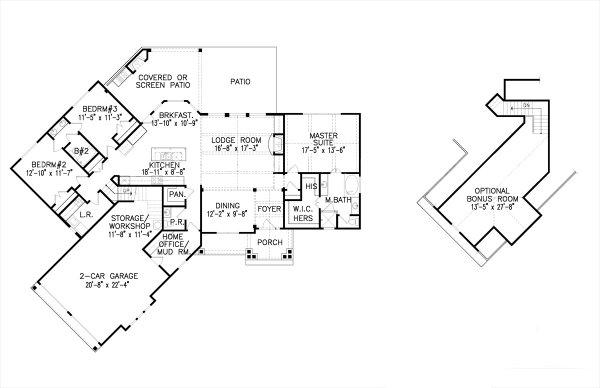
            This ranch design floor plan is 2090 sq ft and has 3 bedrooms and 2.5 bathrooms.          
          
          Floor Plans
Full Specs & Features
Dimension
Depth : 70' 3"
Height : 25' 7"
Width : 82' 7"
Area
Bonus : 422 sq/ft
Garage : 642 sq/ft
Main Floor : 2090 sq/ft
* Total Square Footage typically only includes conditioned space and does not include garages, porches, bonus rooms, or decks.
                                  Ceiling
Lower Ceiling : 9'
Main Ceiling : 10' 1"
Upper Ceiling Ft : 9'
What's Included In This Plan Set
                                    All plans are drawn at ¼” scale or larger and include :
                » See important
                  information before purchasing.
                          - Foundation Plan: Drawn to 1/4" scale, this page shows all necessary notations and dimensions including support columns, walls and excavated and unexcavated areas.
- Exterior Elevations: A blueprint picture of all four sides showing exterior materials and measurements.
- Floor Plan(s): Detailed plans, drawn to 1/4" scale for each level showing room dimensions, wall partitions, windows, etc. as well as the location of electrical outlets and switches.
- Cross Section: A vertical cutaway view of the house from roof to foundation showing details of framing, construction, flooring and roofing.
- Interior Elevations: Detailed drawings of kitchen cabinet elevations and other elements as required.
Questions? Call 1-888-447-1946
            Plan Set
PDF Set:
$1610.75
                $1610.75
PDF plan sets are best for fast electronic delivery and inexpensive local printing.
                              CAD Set:
$2418.25
                $2418.25
For use by design professionals to make substantial changes to your house plan and inexpensive local printing.
                          Foundation
Basement:
$0.00
                  $0.00
Ideal for level lot, lower level of home partially or fully underground.
                                  Crawlspace:
$297.50
                  $297.50
Ideal for semi-sloped or level lot, home can be built off of grade, typically 18” - 48”.
                                  Slab:
$297.50
                  $297.50
Ideal for level lot, single layer concrete poured directly on grade.
                              Framing
Wood 2x4:
$0.00
                  $0.00
Wood 2x4 Exterior Walls
                                  Wood 2x6:
$297.50
                  $297.50
Wood 2x6 Exterior Walls
                              Additional Options
Right-Reading Reverse:
$212.50
                $212.50
Choose this option to reverse your plans and to have the text and dimensions readable.
                              Audio Video Design:
$140.25
                $140.25
Receive an overlay sheet with suggested placement of audio and video components.
                              Comprehensive Material List:
$250.75
                $250.75
A complete list of building supplies needed to construct the infrastructure of your new house, plus an overlay of materials shown directly on your PDF (foundation to rooftop with interior and exterior materials), and a detailed, itemized door and window schedule showing all sizes and types. Please allow 5-7 Business Days for completion. Note, the Comprehensive list is only available with a PDF purchase. The Comprehensive list can be ordered no matter what additional plan options you have selected.
                              Construction Guide:
$33.15
                $33.15
Educate yourself about basic building ideas with these four detailed diagrams that discuss electrical, plumbing, mechanical, and structural topics.
                              Lighting Design:
$140.25
                $140.25
Receive an overlay sheet with suggested placement of lighting fixtures.
                          * Alternate Foundations may take time to prepare.
** Options with a fee may take time to prepare. Please call to confirm.
Unless you buy an “unlimited” plan set or a multi-use license you may only build one home from a set of plans. Please call to verify if you intend to build more than once. Plan licenses are non-transferable and cannot be resold.
          
         
         
         
                 
                         
                 
                 
                 
                 
                 
                 
                 
                 
                 
                 
                         
                        