- Jump to:
- All (7)
- Floor plans (2)
Phone: 1-888-447-1946
See our Terms & Conditions and Privacy Policy.
Use Code CTBFALL
Residential Construction Guide
Learn Building Basics
This downloadable, 26-page guide is full of diagrams and details about plumbing, electrical, and more.
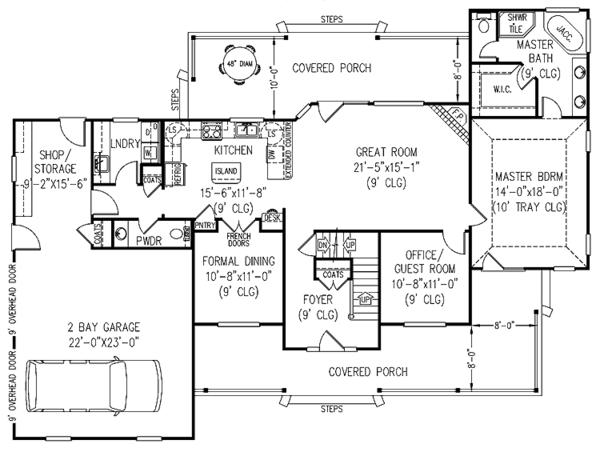
PLAN 11-268
This plan can be customized
Tell us about your desired changes so we can prepare an estimate for the design service. Click the button to submit your request for pricing, or call 1-888-447-1946 for assistance.
Plan Description
Floor Plans
Full Specs & Features
Dimension
Depth : 53'
Height : 28' 6"
Width : 70' 8"
Area
Basement Unfinished: 1570 sq/ft
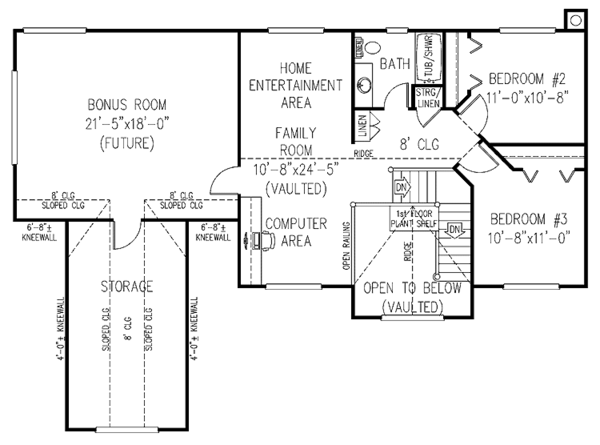
Bonus: 403 sq/ft height 8'
First Floor: 1570 sq/ft height 9'
Garage: 654 sq/ft
Second Floor: 732 sq/ft height 8'
Roof
Primary Pitch : 9:12
Roof Framing : Truss
Roof Type : Shingle
Exterior Wall Framing
Exterior Wall Finish : Brick/Siding
Framing : Wood - 2x4
Bedroom Features
Fireplace
Formal Dining Room
Main Floor Master Bedroom
Walk In Closet
Kitchen Features
Kitchen Island
Kitchenette Wet Bar
Walk In Pantry Cabinet Pantry
Additional Room Features
Den Office Study Computer
Family Room Keeping Room
Great Room Living Room
Main Floor Laundry
Unfinished Future Space
Workshop
Garage Features
Side Entry Garage
Outdoor Spaces
Covered Front Porch
Covered Rear Porch
Rooms
Bedroom 2:
117 sq/ft width 11' x depth 10' 8"
Bedroom 3:
117 sq/ft width 10' 8" x depth 11'
Bonus Room - Finished:
385 sq/ft width 21' 5" x depth 18'
Dining Room:
117 sq/ft width 10' 8" x depth 11'
Family Room:
260 sq/ft width 10' 8" x depth 24' 5"
Great Room:
323 sq/ft width 21' 5" x depth 15' 1"
Kitchen:
180 sq/ft width 15' 6" x depth 11' 8"
Master Bedroom:
252 sq/ft width 14' x depth 18'
Office:
117 sq/ft width 10' 8" x depth 11'
Storage:
142 sq/ft width 9' 2" x depth 15' 6"
What's Included In This Plan Set
- Foundation Plan(s): 1/4" scale. All foundation types included with sets of house plans.
- Floor Plan(s): 1/4" scale. Includes Electrical Schematics (placement of outlets, fixtures, switches, etc.)
- Exterior Elevations: Front rendering (as shown on site). 1/4" scale front elevation. Sides and rear elevations at 1/8" scale.
- Overhead Roof Plan(s): 1/8" scale roof plan
- Cross Section(s): 1/4" scale full cross sections (3 to 5 included depending on house).
- Building Section(s): 1/2" scale full foundation sections.
- Electrical Plan(s): Shows the location of lights, receptacles, switches, etc. Some plans that do not include an electrical plan may have it available for an additional fee.
- Kitchen Cabinet Elevation(s): 1/2" scale full cabinet elevations
- Construction Notes / Detail(s): 1/2" scale fireplace details and sections (if applicable)
- Wall Section(s): Full wall section detailing all components.
- Stair Detail(s): 1/2" scale full stair section (if applicable).
Plan Set
$1020.00
$1360.00
$1700.00
$1785.00
$2677.50
Foundation
$0.00
$0.00
$0.00
Framing
$0.00
Additional Options
$255.00
$127.50
$85.00
$33.15
$85.00
* Alternate Foundations may take time to prepare.
** Options with a fee may take time to prepare. Please call to confirm.
 
         
         
                 
                         
                         
                 
                 
                 
                 
                 
                 
                 
                 
                 
                 
                        