- Jump to:
- All (12)
- Floor plans (3)
Phone: 1-888-447-1946
See our Terms & Conditions and Privacy Policy.
Use Code CTBFALL
Residential Construction Guide
Learn Building Basics
This downloadable, 26-page guide is full of diagrams and details about plumbing, electrical, and more.
PLAN 314-219
This plan can be customized
Tell us about your desired changes so we can prepare an estimate for the design service. Click the button to submit your request for pricing, or call 1-888-447-1946 for assistance.
Plan Description
Floor Plans
Full Specs & Features
Dimension
Depth : 68' 3"
Height : 23'
Width : 81' 4"
Area
First Floor: 2347 sq/ft height 9'
Roof
Primary Pitch : 9:12
Roof Framing : Conventional
Roof Type : Shingle
Exterior Wall Framing
Exterior Wall Finish : Brick/Siding
Framing : Wood - 2x4
Bedroom Features
Fireplace
Formal Dining Room
Main Floor Master Bedroom
Kitchen Features
Butler's Pantry
Kitchen Island
Kitchenette Wet Bar
Walk In Pantry Cabinet Pantry
Additional Room Features
Den Office Study Computer
Great Room Living Room
Main Floor Laundry
Open Floor Plan
Unfinished Future Space
Garage Features
Side Entry Garage
Outdoor Spaces
Covered Front Porch
Covered Rear Porch
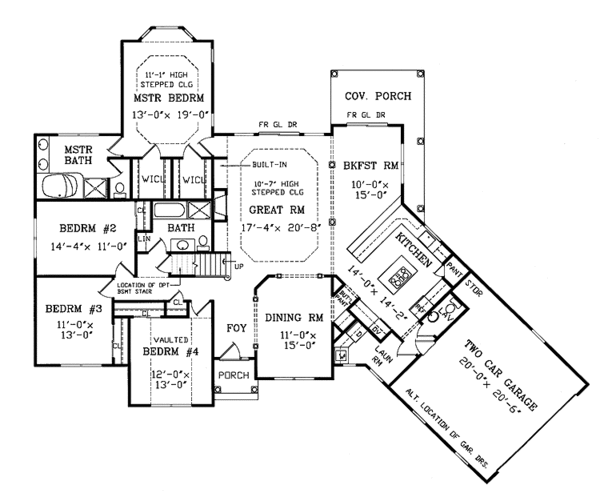
Rooms
3rd BR Closet:
13 sq/ft width 6' 11" x depth 2'
Bedroom 2:
157 sq/ft width 14' 4" x depth 11'
Bedroom 2 Closet:
8 sq/ft width 4' 4" x depth 2'
Bedroom 3:
143 sq/ft width 11' x depth 13'
Bedroom 3 Closet:
8 sq/ft width 4' 4" x depth 2'
Bedroom 4:
155 sq/ft width 12' x depth 12' 11"
Bedroom 4 Closet:
14 sq/ft width 7' 4" x depth 2'
Breakfast Room:
170 sq/ft width 10' x depth 17'
Dining Room:
165 sq/ft width 11' x depth 15'
Garage:
14 sq/ft width 4' x depth 3' 8"
Gathering Room:
314 sq/ft width 15' 4" x depth 20' 6"
Hall Bathroom:
65 sq/ft width 8' 8" x depth 7' 6"
Hall Closet:
6 sq/ft width 3' x depth 2'
Kitchen:
231 sq/ft width 14' x depth 16' 6"
Laundry Room:
60 sq/ft width 10' x depth 6'
Master Bathroom:
127 sq/ft width 13' 8" x depth 9' 4"
Master Bedroom:
247 sq/ft width 13' x depth 19'
Master Closet:
33 sq/ft width 5' 8" x depth 5' 10"
Porch - Front:
30 sq/ft width 6' x depth 5'
Porch - Rear:
143 sq/ft width 14' 4" x depth 10'
Powder Room:
19 sq/ft width 3' 4" x depth 6'
What's Included In This Plan Set
All plans are drawn at ¼” scale or larger and include :
- Foundation Plan: This page shows all necessary notations and dimensions including support columns, walls, and excavated/unexcavated areas.
- Exterior Elevations: Views of the home from all four sides showing exterior materials and measurements.
- Floor Plan(s): Detailed plans for each level showing room dimensions, wall partitions, windows and doors, etc.
- Cross Section: A slice of the home from roof to foundation, showing important details like stairs and wall construction.
- Overhead Roof Plan(s): A view of the home from above showing roof pitch, peaks, valleys, and other details.
- Construction Notes and Details: Shows the builder how things come together, like walls, the chimney, insulation, and more.
Plan Set
$956.25
$1049.75
$1113.50
$1122.00
$1780.75
Foundation
$0.00
$0.00
$127.50
Framing
$0.00
$127.50
Additional Options
$297.50
$42.50
$85.00
$33.15
$80.75
$42.50
* Alternate Foundations may take time to prepare.
** Options with a fee may take time to prepare. Please call to confirm.
 
         
         
                 
                         
                         
                         
                 
                 
                 
                 
                 
                 
                 
                 
                         
                        