- Jump to:
- All (5)
- Floor plans (2)
Key Specs
2490
sq ft
3
Beds
2.5
Baths
2
Floors
2
Garages
Phone: 1-888-447-1946
See our Terms & Conditions and Privacy Policy.
Use Code CTBFALL
Residential Construction Guide
Learn Building Basics
This downloadable, 26-page guide is full of diagrams and details about plumbing, electrical, and more.
PLAN 453-97
This plan can be customized
Tell us about your desired changes so we can prepare an estimate for the design service. Click the button to submit your request for pricing, or call 1-888-447-1946 for assistance.
Plan Description
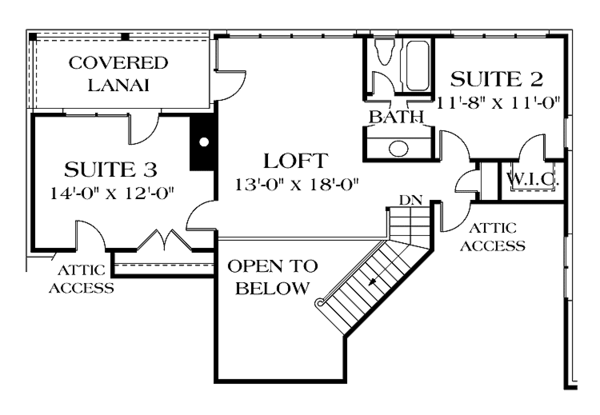
Floor Plans
Full Specs & Features
Dimension
Depth : 65'
Height : 26'
Width : 57' 10"
Area
First Floor: 1667 sq/ft height 9'
Second Floor: 823 sq/ft height 9'
Roof
Primary Pitch : 12:12
Roof Framing : Conventional
Exterior Wall Framing
Exterior Wall Finish : Brick
Framing : Wood - 2x4
Bedroom Features
Fireplace
Formal Dining Room
Split Bedrooms
Additional Room Features
Great Room Living Room
Outdoor Spaces
Covered Rear Porch
Rooms
3rd BR Closet:
19 sq/ft width 3' 6" x depth 5' 6"
Bedroom 3:
128 sq/ft width 11' x depth 11' 8"
Bedroom 4:
168 sq/ft width 12' x depth 14'
Bedroom 4 Closet:
8 sq/ft width 2' x depth 4'
Bonus Room - Finished:
234 sq/ft width 18' x depth 13'
Breakfast Room:
112 sq/ft width 9' 8" x depth 11' 8"
Dining Room:
168 sq/ft width 14' x depth 12'
Garage:
559 sq/ft width 26' x depth 21' 6"
Gathering Room:
270 sq/ft width 18' x depth 15'
Hall Closet:
10 sq/ft width 5' x depth 2'
Kitchen:
232 sq/ft width 15' x depth 15' 6"
Laundry Room:
42 sq/ft width 6' x depth 7'
Master Bedroom:
238 sq/ft width 17' x depth 14'
Master Closet:
24 sq/ft width 5' x depth 4' 10"
Porch - Front:
119 sq/ft width 7' x depth 17'
Powder Room:
30 sq/ft width 6' x depth 5'
Walk-In Closet:
24 sq/ft width 5' x depth 4' 10"
What's Included In This Plan Set
- Foundation Plan(s): Dimensioned and detailed foundation plan (type as listed on home plan description). Typical foundation details, wall sections, and cornice details necessary for construction.
- Floor Plan(s): Dimensioned and detailed floor plans
- Exterior Elevations: Views of the home from all four sides showing exterior materials, roof slope, ridge heights, siding and trim notes.
- Overhead Roof Plan(s): A view of the home from above showing roof pitch, peaks, valleys, and other details.
- Cross Section(s): A slice of the home from roof to foundation, showing relationships between floors, roof, and foundation.
- Building Section(s): Shows the relationship between different levels, wall heights, and the overall building volume. May include details like foundation, framing, insulation, and finishes.
- Electrical Plan(s): Separate electrical plan (may be shown on floor plans in some cases). Shows the location of lights, receptacles, switches, etc.
- Construction Notes / Detail(s): Shows basic parts and assemblies recommended for the home so the builder can see how things come together.
- Framing Detail(s): Framing plans (framing may be shown on floor plans in some cases.) If included, the framing layout is intended to be a suggested layout only. Design loads and weather conditions vary by region. As a result the size, spacing, and layout of all structural elements in this home design may need approval by a structural engineer or code official based on your specific site location.
Plan Set
$1062.50
$1062.50
$2125.00
Foundation
$0.00
Framing
$0.00
Additional Options
$170.00
$51.00
$140.25
$250.75
$33.15
$140.25
$42.50
* Alternate Foundations may take time to prepare.
** Options with a fee may take time to prepare. Please call to confirm.
 
         
         
                 
                         
                         
                 
                 
                 
                 
                 
                 
                 
                 
                 
                 
                        