- Jump to:
- All (7)
- Floor plans (2)
Key Specs
2511
sq ft
4
Beds
3
Baths
2
Floors
4
Garages
Phone: 1-888-447-1946
See our Terms & Conditions and Privacy Policy.
Use Code CTBFALL
Residential Construction Guide
Learn Building Basics
This downloadable, 26-page guide is full of diagrams and details about plumbing, electrical, and more.
PLAN 1064-164
2511
sq ft
4
Beds
3
Baths
2
Floors
4
Garages
This plan can be customized
Tell us about your desired changes so we can prepare an estimate for the design service. Click the button to submit your request for pricing, or call 1-888-447-1946 for assistance.
Plan Description
Floor Plans
Full Specs & Features
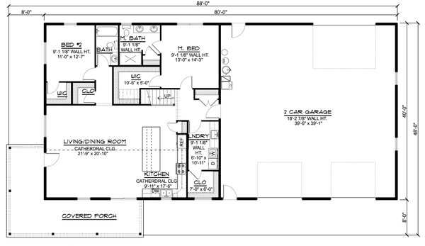
Dimension
Depth : 48'
Height : 25' 6"
Width : 88'
Area
Garage : 1600 sq/ft
Main Floor : 1600 sq/ft
Porch : 336 sq/ft
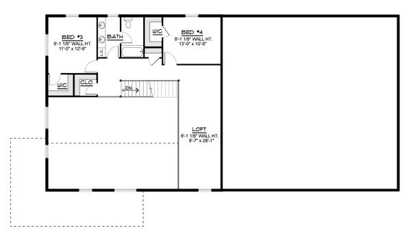
Upper Floor : 911 sq/ft
Ceiling
Garage Ceiling : 18' 3"
Main Ceiling : 9'
Upper Ceiling Ft : 8'
Roof
Primary Pitch : 4/12
Roof Framing : Truss
Roof Load : 30 psf
Roof Type : Metal Roof
Exterior Wall Framing
Exterior Wall Finish : Vertical Metal Siding
Framing : 2x6
Insulation : R-19
Bedroom Features
Main Floor Bedrooms
Main Floor Master Bedroom
Split Bedrooms
Upstairs Bedrooms
Kitchen Features
Breakfast Nook
Kitchen Island
Additional Room Features
Great Room Living Room
Loft
Garage Features
Front Entry Garage
Rear Entry Garage
Lot Characteristics
Suited For View Lot
Outdoor Spaces
Covered Front Porch
Wrap Around Porch
What's Included In This Plan Set
All plans are drawn at ¼” scale or larger and include :
- Foundation Plan: This page shows all necessary notations and dimensions including support columns, walls, and excavated/unexcavated areas.
- Exterior Elevations: Views of the home from all four sides showing exterior materials and measurements.
- Floor Plan(s): Detailed plans for each level showing room dimensions, wall partitions, windows and doors, etc.
- Cross Section: A slice of the home from roof to foundation, showing important details like stairs and wall construction.
- Overhead Roof Plan(s): A view of the home from above showing roof pitch, peaks, valleys, and other details.
- Construction Notes and Details: Shows the builder how things come together, like walls, the chimney, insulation, and more.
Plan Set
$1232.50
$1530.00
$1742.50
$2295.00
$2762.50
Foundation
$0.00
$250.75
$335.75
$335.75
$335.75
Framing
$0.00
$170.00
Additional Options
$233.75
$29.75
$140.25
$250.75
$33.15
$140.25
* Alternate Foundations may take time to prepare.
** Options with a fee may take time to prepare. Please call to confirm.
 
         
         
                 
                         
                         
                 
                 
                 
                 
                 
                 
                 
                 
                 
                 
                        