- Jump to:
- All (7)
- Floor plans (2)
Key Specs
2520
sq ft
3
Beds
2.5
Baths
2
Floors
3
Garages
Phone: 1-888-447-1946
See our Terms & Conditions and Privacy Policy.
Use Code CTBFALL
Residential Construction Guide
Learn Building Basics
This downloadable, 26-page guide is full of diagrams and details about plumbing, electrical, and more.
PLAN 132-112
This plan can be customized
Tell us about your desired changes so we can prepare an estimate for the design service. Click the button to submit your request for pricing, or call 1-888-447-1946 for assistance.
Plan Description
Floor Plans
Full Specs & Features
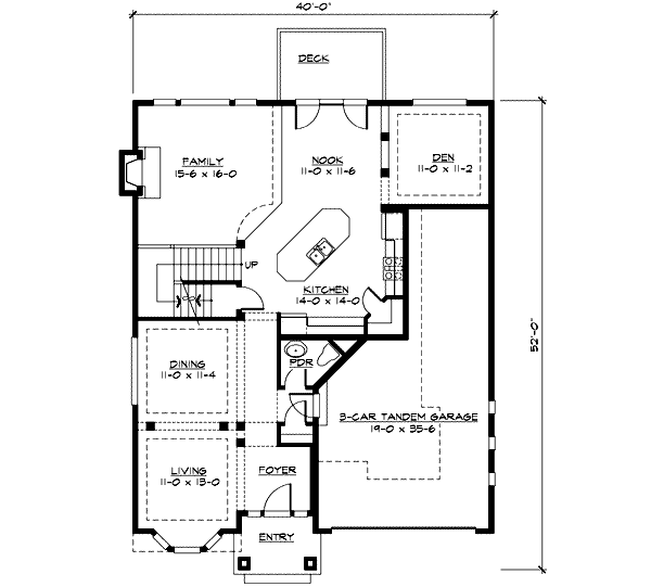
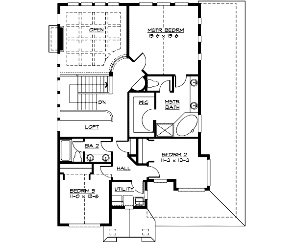
Dimension
Depth : 52'
Height : 31'
Width : 40'
Area
Garage : 552 sq/ft
Main Floor : 1365 sq/ft
Upper Floor : 1155 sq/ft
Ceiling
Main Ceiling : 9'
Upper Ceiling Ft : 8'
Roof
Primary Pitch : 8:12
Exterior Wall Framing
Framing : 2"x6"
Bedroom Features
Upstairs Master Bedrooms
Walk In Closet
Kitchen Features
Breakfast Nook
Kitchen Island
Walk In Pantry Cabinet Pantry
Additional Room Features
Den Office Study Computer
Family Room Keeping Room
Loft
Upstairs Laundry
Garage Features
Oversized Garage
Tandem Garage
Lot Characteristics
Suited For Narrow Lot
Suited For View Lot
Outdoor Spaces
Balcony
What's Included In This Plan Set
If you are building this plan in the state of Washington, please call us before placing your order. This designer includes the bonus square feet in the total heated living square feet. Plans are typically drawn to ¼” scale and include:
- Cover Sheet: The cover sheet includes the general notes and building code information, design standards and structural materials specifications required to construct your home.
- Foundation Plan(s): The foundation plan sheet shows the layout of the crawl space, walk-out basement or slab foundation. The foundation plan includes all necessary notes, dimensions, concrete walls, footing pads, posts, beams, bearing walls, crawlspace vents, footing schedule, steel reinforcing, and structural information. If you require a different foundation type, please contact us for modifications to your plan.
- Floor Plan(s): Floor plans are horizontal cuts through each floor level of the home, usually at 5' above the floor. The floor plan shows the location of interior and exterior walls, doors, windows, stairs, closets, cabinets, flooring, appliances, plumbing fixtures, fireplaces, posts and beams. Floor plans also indicate vaulted, coffered, or box beam ceilings, cased openings and areas with ceiling soffits.
- Exterior Elevations: Exterior elevations show all four sides of the house, describing the roofing, siding, and trim materials, doors, windows, roof pitches, skylights, gutters, chimneys, wall heights, finish grade and overall building height.
- Overhead Roof Plan(s): The roof framing plan shows the geometry of the hips, ridges, valleys, dormers, roof pitches, wall and plate heights, and overhangs. The plan also shows all individual roof framing members, trusses, rafters, beams, skylights, roof vents, gutters, downspouts, skylights, bearing walls under framing members, and point loads. Design loads and weather conditions vary by region. As a result the size, spacing, and layout of all structural elements in this home design may need approval by a structural engineer or code official based on your specific site location.
- Cross Section(s): Building sections are vertical cuts through the house from the roof to the foundation. The sections illustrate the construction sequence from bottom to top starting with excavation, proceeding up through the foundation, drainage, wall and floor framing, stair framing, roof framing, windows, doors, venting, and exterior and interior finishes. Wall plate heights for each floor are also delineated.
- Detail Sheet(s): The detail sheet shows building components at large scale as required to explain construction of footings, foundation walls, concrete slabs, framed floors and walls, posts, beams, insulation, eaves, roofs, vents, stairs, skylights, and connections.
- Construction Notes / Detail(s): Shows basic parts and assemblies recommended for the home so the builder can see how things come together.
- Door / Window Schedule(s): The schedule sheet includes the window, roof and foundation ventilation schedules, insulation and vapor barrier specifications, and exhaust fan ventilation schedule.
Plan Set
$1657.50
$2762.50
Foundation
$0.00
Additional Options
$255.00
$42.50
$140.25
$250.75
$33.15
$140.25
* Alternate Foundations may take time to prepare.
** Options with a fee may take time to prepare. Please call to confirm.
 
         
         
                 
                         
                         
                 
                 
                 
                 
                 
                 
                 
                 
                