- Jump to:
- All (4)
- Floor plans (2)
Phone: 1-888-447-1946
See our Terms & Conditions and Privacy Policy.
Use Code CTBFALL
Residential Construction Guide
Learn Building Basics
This downloadable, 26-page guide is full of diagrams and details about plumbing, electrical, and more.
PLAN 53-587
This plan can be customized
Tell us about your desired changes so we can prepare an estimate for the design service. Click the button to submit your request for pricing, or call 1-888-447-1946 for assistance.
Plan Description
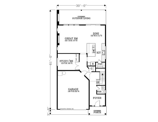
Floor Plans
Full Specs & Features
Dimension
Depth : 52'
Height : 27' 2"
Width : 30'
Area
Bonus : 226 sq/ft
Garage : 443 sq/ft
Main Floor : 1094 sq/ft
Upper Floor : 1435 sq/ft
Ceiling
Ceiling Details : VAULTED
Main Ceiling : 9'
Roof
Primary Pitch : 3"12
Roof Framing : TRUSS
Roof Load : 30LB
Roof Type : COMPOSITION
Exterior Wall Framing
Exterior Wall Finish : LAP, SHINGLE, STONE
Framing : 2X6
Insulation : R-21
Bedroom Features
Upstairs Bedrooms
Upstairs Master Bedrooms
Walk In Closet
Kitchen Features
Kitchen Island
Additional Room Features
Den Office Study Computer
Great Room Living Room
Play Flex Room
Upstairs Laundry
Garage Features
Front Entry Garage
More
Economical To Build
Energy Efficient Features
Energy Efficient Design
What's Included In This Plan Set
- Foundation Plan: Drawn to 1/4" scale, this page shows all necessary notations and dimensions including support columns, walls and excavated and unexcavated areas.
- Exterior Elevations: A blueprint picture of all four sides showing exterior materials and measurements.
- Floor Plan(s): Detailed plans, drawn to 1/4" scale for each level showing room dimensions, wall partitions, windows, etc.
- Cross Section: A vertical cutaway view of the house from roof to foundation showing details of framing, construction, flooring and roofing.
Plan Set
$1525.75
$2460.75
Foundation
$0.00
$233.75
Framing
$0.00
$297.50
Additional Options
$170.00
$892.50
$140.25
$250.75
$33.15
$140.25
* Alternate Foundations may take time to prepare.
** Options with a fee may take time to prepare. Please call to confirm.
 
         
         
                 
                         
                         
                 
                 
                 
                 
                 
                 
                 
                 
                 
                 
                         
                        