- Jump to:
- All (4)
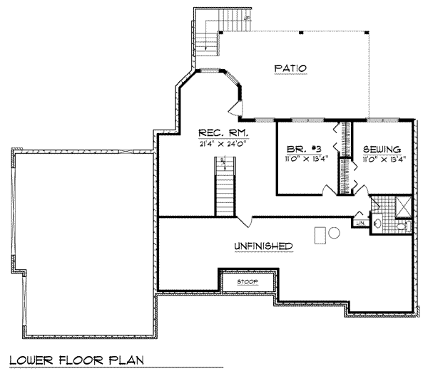
- Floor plans (2)
Phone: 1-888-447-1946
See our Terms & Conditions and Privacy Policy.
Use Code CTBFALL
Residential Construction Guide
Learn Building Basics
This downloadable, 26-page guide is full of diagrams and details about plumbing, electrical, and more.
PLAN 70-765
This plan can be customized
Tell us about your desired changes so we can prepare an estimate for the design service. Click the button to submit your request for pricing, or call 1-888-447-1946 for assistance.
Plan Description
Floor Plans
Full Specs & Features
Dimension
Depth : 49'
Height : 24' 4"
Width : 74'
Area
Basement Living: 890 sq/ft
First Floor: 1700 sq/ft
Ceiling
Main Ceiling : 8'
Roof
Primary Pitch : 9:12
Roof Framing : Truss
Exterior Wall Framing
Exterior Wall Finish : Siding
Framing : Wood - 2x6
Bedroom Features
Walk In Closet
Kitchen Features
Breakfast Nook
Eating Bar
Kitchen Island
Additional Room Features
Den Office Study Computer
Hobby Rec Room Game Room
Storage Area
Garage Features
Oversized Garage
Side Entry Garage
Lot Characteristics
Suited For Corner Lot
Suited For Sloping Lot
Suited For View Lot
Outdoor Spaces
Covered Rear Porch
What's Included In This Plan Set
- Cover Sheet: Cover sheet with front rendering
- Foundation Plan(s): Foundation plans at 1/4" = 1' scale
- Floor Plan(s): Floor plans at 1/4" = 1' scale
- Exterior Elevations: Exterior elevations of all four views, front at 1/4" = 1' scale, rear and sides vary from 1/8" to 1/4" = 1' scale
- Overhead Roof Plan(s): A view of the home from above showing roof pitch, peaks, valleys, and other details.
- Cross Section(s): A slice of the home from roof to foundation, showing relationships between floors, roof, and foundation.
- Building Section(s): Building sections and details as required to construct the individual design
- Electrical Plan(s): Schematic electrical plans with suggested switch, outlet, and light fixture locations
- Kitchen Cabinet Elevation(s): Interior elevation of cabinets at 1/4" = 1' scale
- Construction Notes / Detail(s): Shows basic parts and assemblies recommended for the home so the builder can see how things come together.
- Specification(s): General specification design notes
Plan Set
$981.75
$1037.85
$1244.40
$1244.40
$1978.80
Foundation
$0.00
$335.75
$335.75
Additional Options
$335.75
$68.00
$140.25
$250.75
$33.15
$140.25
$63.75
* Alternate Foundations may take time to prepare.
** Options with a fee may take time to prepare. Please call to confirm.
 
         
         
                 
                         
                         
                 
                 
                 
                 
                 
                 
                 
                 
                 
                