SAVED No Saved House Plans REGISTER LOGIN Empty Cart
Don't lose your saved plans!  Create an account to access your saves whenever you want. See our Terms & Conditions and Privacy Policy.
20% OFF TODAY FOR BLACK FRIDAY

PLAN 1089-14

Photographs may show modified designs.

Save
  • Jump to:
  • All (6)
  • Floor plans (2)
Questions? Get Personalized Help
Home  >  Style  >  Traditional

Key Specs


Plan Sq Ft

2631
sq ft

Plan Bedrooms

3
Beds

Plan Bathrooms

2.5
Baths

Plan Floors

2
Floors

Plan Garages

3
Garages

Select Plan Set Options

What's included?

Additional options

Dropdown arrow

Right-Reading Reverse
$180.00
Choose this option to reverse your plans and to have the text and dimensions readable.
Audio Video Design
$132.00
Receive an overlay sheet with suggested placement of audio and video components.
Comprehensive Material List
$236.00
A complete list of building supplies needed to construct the infrastructure of your new house, plus an overlay of materials shown directly on your PDF (foundation to rooftop with interior and exterior materials), and a detailed, itemized door and window schedule showing all sizes and types. Please allow 5-7 Business Days for completion. Note, the Comprehensive list is only available with a PDF purchase. The Comprehensive list can be ordered no matter what additional plan options you have selected.
Construction Guide
$31.20
Educate yourself about basic building ideas with these four detailed diagrams that discuss electrical, plumbing, mechanical, and structural topics.
Lighting Design
$132.00
Receive an overlay sheet with suggested placement of lighting fixtures.
Subtotal
$1195.00 NOW $956.00
You save $239.00 (20% savings)
Sale ends soon!
Best Price Guaranteed*

Also order by phone: 1-888-447-1946
 
Questions about building your home?
Get Personalized Help
We do our best to get back to you within 24 - 48 business hours.
Need an answer faster? Call now...
Phone: 1-888-447-1946
Hours:
Ready for Your Call 7 Days a Week
Every Day 7 am - 8:30 pm Eastern

See our Terms & Conditions and Privacy Policy.

 
Wow!
Cost to Build Reports
Only $1.99 Right Now
Use Code CTBFALL
Our Cost to Build Report gives you a personalized estimate for building your home, based on your location, plan, and materials.
Get Cost To Build Report
Limit one per order.

Residential Construction Guide

Learn Building Basics

This downloadable, 26-page guide is full of diagrams and details about plumbing, electrical, and more.

PLAN 1089-14

This plan can be customized

Tell us about your desired changes so we can prepare an estimate for the design service. Click the button to submit your request for pricing, or call 1-888-447-1946 for assistance.

Modify This Plan

Plan Description


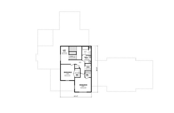
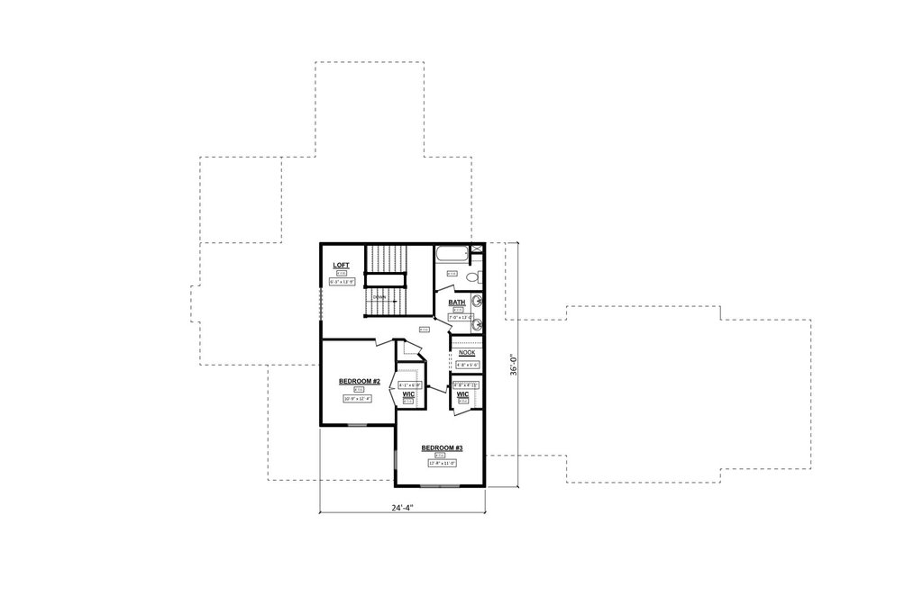
This traditional design floor plan is 2631 sq ft and has 3 bedrooms and 2.5 bathrooms.

Full Specs & Features


Dimension

Depth : 62' 8"

Height : 27'

Width : 91' 4"

Area

Basement : 1970 sq/ft

Garage : 885 sq/ft

Main Floor : 1955 sq/ft

Patios : 152 sq/ft

Porch : 218 sq/ft

Upper Floor : 676 sq/ft

* Total Square Footage typically only includes conditioned space and does not include garages, porches, bonus rooms, or decks.

Ceiling

Main Ceiling : 9'

Upper Ceiling Ft : 8'

Roof

Primary Pitch : 10:12

Roof Type : Truss

Secondary Pitch : 10:12

Exterior Wall Framing

Framing : 2x4

Bedroom Features

Main Floor Master Bedroom

Split Bedrooms

Upstairs Bedrooms

Walk In Closet

Kitchen Features

Butler's Pantry

Walk In Pantry Cabinet Pantry

Additional Room Features

Den Office Study Computer

Loft

Main Floor Laundry

Mud Room

Garage Features

Front Entry Garage

Rear Entry Garage

Outdoor Spaces

Wrap Around Porch

More

Additional Half Bath

What's Included In This Plan Set


  • Foundation Plan(s): Drawn to 1/4" scale, this page shows all necessary notations and dimensions including support columns, walls and excavated and unexcavated areas.
  • Floor Plan(s): Detailed plans, drawn to 1/4" scale for each level showing room dimensions, wall partitions, windows, etc. as well as the location of electrical outlets and switches.
  • Exterior Elevations: A blueprint picture of all four sides showing exterior materials and measurements.
  • Overhead Roof Plan(s): A bird's-eye view of the roof showing pitches and simple overhang details.
  • Cross Section(s): A vertical cutaway view of the house from roof to foundation showing details of framing, construction, flooring and roofing.
  • Electrical Plan(s): Shows the location of lights, receptacles, switches, etc. Some plans that do not include an electrical plan may have it available for an additional fee.
  • Construction Notes / Detail(s): Shows basic parts and assemblies recommended for the home so the builder can see how things come together.
» See important information before purchasing.
Questions? Call 1-888-447-1946

Plan Set

PDF Set:
$956.00
PDF plan sets are best for fast electronic delivery and inexpensive local printing.
5 Copy and PDF Set:
$1156.00
5 printed plan sets mailed to you plus PDF plan sets are best for fast electronic delivery and inexpensive local printing.
PDF Unlimited Build:
$1356.00
PDF plan sets are best for fast electronic delivery and inexpensive local printing.
CAD Unlimited Build:
$1596.00
For use by design professionals to make substantial changes to your house plan and inexpensive local printing.

Foundation

Basement:
$0.00
Ideal for level lot, lower level of home partially or fully underground.
Crawlspace:
$360.00
Ideal for semi-sloped or level lot, home can be built off of grade, typically 18” - 48”.
Daylight Basement:
$360.00
Ideal for sloping lot, lower level of home partially underground.
Slab:
$360.00
Ideal for level lot, single layer concrete poured directly on grade.
Walk Out Basement:
$360.00
Ideal for a sloping lot, lower level with outdoor access.

Framing

Wood 2x4:
$0.00
Wood 2x4 Exterior Walls
Wood 2x6:
$236.00
Wood 2x6 Exterior Walls

Additional Options

Right-Reading Reverse:
$180.00
Choose this option to reverse your plans and to have the text and dimensions readable.
Audio Video Design:
$132.00
Receive an overlay sheet with suggested placement of audio and video components.
Comprehensive Material List:
$236.00
A complete list of building supplies needed to construct the infrastructure of your new house, plus an overlay of materials shown directly on your PDF (foundation to rooftop with interior and exterior materials), and a detailed, itemized door and window schedule showing all sizes and types. Please allow 5-7 Business Days for completion. Note, the Comprehensive list is only available with a PDF purchase. The Comprehensive list can be ordered no matter what additional plan options you have selected.
Construction Guide:
$31.20
Educate yourself about basic building ideas with these four detailed diagrams that discuss electrical, plumbing, mechanical, and structural topics.
Lighting Design:
$132.00
Receive an overlay sheet with suggested placement of lighting fixtures.

* Alternate Foundations may take time to prepare.

** Options with a fee may take time to prepare. Please call to confirm.

Unless you buy an “unlimited” plan set or a multi-use license you may only build one home from a set of plans. Please call to verify if you intend to build more than once. Plan licenses are non-transferable and cannot be resold.