- Jump to:
- All (3)
- Floor plans (2)
Phone: 1-888-447-1946
See our Terms & Conditions and Privacy Policy.
Use Code CTBFALL
Residential Construction Guide
Learn Building Basics
This downloadable, 26-page guide is full of diagrams and details about plumbing, electrical, and more.
PLAN 36-448
This plan can be customized
Tell us about your desired changes so we can prepare an estimate for the design service. Click the button to submit your request for pricing, or call 1-888-447-1946 for assistance.
Plan Description
Floor Plans
Full Specs & Features
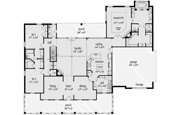
Dimension
Depth : 66' 5"
Width : 76' 10"
Area
Bonus: 452 sq/ft
First Floor: 2661 sq/ft
Ceiling
Main Ceiling : 9'
Roof
Primary Pitch : 10:12
Roof Framing : Combination Truss/Conventional
Roof Type : Asphalt
Exterior Wall Framing
Exterior Wall Finish : Brick/Stucco
Framing : 2"x4"
Bedroom Features
Split Bedrooms
Kitchen Features
Breakfast Nook
Eating Bar
Kitchen Island
Additional Room Features
Family Room Keeping Room
Play Flex Room
Storage Area
Unfinished Future Space
Garage Features
Side Entry Garage
Lot Characteristics
Suited For Corner Lot
Suited For View Lot
Outdoor Spaces
Covered Front Porch
Covered Rear Porch
Wrap Around Porch
More
Jack & Jill Bath
Rooms
Bedroom 2:
168 sq/ft width 11' 7" x depth 14' 7"
Bedroom 3:
168 sq/ft width 11' 7" x depth 14' 7"
Dining Room:
162 sq/ft width 11' 6" x depth 14' 2"
Eating:
151 sq/ft width 14' 9" x depth 10' 3"
Garage:
584 sq/ft width 24' 1" x depth 24' 3"
Kitchen:
177 sq/ft width 14' 9" x depth 12'
Master Bedroom:
274 sq/ft width 14' 11" x depth 18' 5"
What's Included In This Plan Set
- Foundation Plan(s): Foundation with footing details. Plumbing is repeated on slab foundation.
- Floor Plan(s): Floor plan with dimensions.
- Exterior Elevations: Elevations from all four sides and top.
- Overhead Roof Plan(s): A view of the home from above showing roof pitch, peaks, valleys, and other details.
- Cross Section(s): A slice of the home from roof to foundation, showing relationships between floors, roof, and foundation.
- Electrical Plan(s): Electrical layout showing fixtures and switches, but not circuits.
- Construction Notes / Detail(s): Shows basic parts and assemblies recommended for the home so the builder can see how things come together.
- Framing Detail(s): Suggested layout only. Details including cornices and at least one section.
Plan Set
$573.75
$658.75
$718.25
$467.50
Foundation
$0.00
Additional Options
$42.50
$85.00
$33.15
$85.00
$21.25
* Alternate Foundations may take time to prepare.
** Options with a fee may take time to prepare. Please call to confirm.
 
         
         
                 
                         
                         
                 
                 
                 
                 
                 
                 
                 
                 
                 
                 
                         
                        