- Jump to:
- All (3)
- Floor plans (1)
Key Specs
2710
sq ft
3
Beds
3
Baths
1
Floors
3
Garages
Phone: 1-888-447-1946
See our Terms & Conditions and Privacy Policy.
Use Code CTBFALL
Residential Construction Guide
Learn Building Basics
This downloadable, 26-page guide is full of diagrams and details about plumbing, electrical, and more.
PLAN 417-567
This plan can be customized
Tell us about your desired changes so we can prepare an estimate for the design service. Click the button to submit your request for pricing, or call 1-888-447-1946 for assistance.
Plan Description
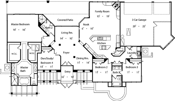
Floor Plans
Full Specs & Features
Dimension
Depth : 50'
Width : 98' 6"
Area
First Floor: 2710 sq/ft
Roof
Primary Pitch : 6:12
Roof Framing : Truss
Roof Type : Tile
Exterior Wall Framing
Exterior Wall Finish : Brick/Stucco
Framing : Wood - 2x4
Bedroom Features
Fireplace
Formal Dining Room
Formal Living Room / Parlor
Main Floor Master Bedroom
Split Bedrooms
Kitchen Features
Breakfast Nook
Kitchen Island
Kitchenette Wet Bar
Walk In Pantry Cabinet Pantry
Additional Room Features
Den Office Study Computer
Family Room Keeping Room
Main Floor Laundry
Outdoor Spaces
Courtyard
Rooms
3rd BR Closet:
13 sq/ft width 6' 8" x depth 2'
Bathroom 2:
47 sq/ft width 6' 10" x depth 6' 11"
Bathroom 3:
64 sq/ft width 5' 6" x depth 11' 9"
Bedroom 2:
124 sq/ft width 11' x depth 11' 4"
Bedroom 2 Closet:
13 sq/ft width 6' 8" x depth 2'
Bedroom 3:
124 sq/ft width 11' x depth 11' 4"
Bedroom 3 Closet:
13 sq/ft width 6' 8" x depth 2'
Bedroom 4 Closet:
13 sq/ft width 6' 7" x depth 2'
Breakfast Room:
85 sq/ft width 5' 10" x depth 14' 7"
Dining Room:
146 sq/ft width 11' 4" x depth 12' 11"
Foyer:
37 sq/ft width 7' x depth 5' 4"
Garage:
756 sq/ft width 29' 8" x depth 25' 6"
Gathering Room:
341 sq/ft width 17' 8" x depth 19' 4"
Hall Closet:
8 sq/ft width 5' 8" x depth 1' 6"
Kitchen:
287 sq/ft width 21' x depth 13' 8"
Laundry Room:
35 sq/ft width 5' x depth 7'
Living Room:
158 sq/ft width 14' x depth 11' 4"
Master Bathroom:
228 sq/ft width 15' x depth 15' 3"
Master Bedroom:
372 sq/ft width 22' 10" x depth 16' 4"
Master Closet:
45 sq/ft width 7' 6" x depth 6'
Porch - Front:
60 sq/ft width 7' x depth 8' 8"
Porch - Rear:
682 sq/ft width 48' 2" x depth 14' 2"
Study:
152 sq/ft width 13' 4" x depth 11' 5"
Walk-In Closet:
45 sq/ft width 7' 6" x depth 6'
What's Included In This Plan Set
All plans are drawn at ¼” scale or larger and include :
- Foundation Plan: This page shows all necessary notations and dimensions including support columns, walls, and excavated/unexcavated areas.
- Exterior Elevations: Views of the home from all four sides showing exterior materials and measurements.
- Floor Plan(s): Detailed plans for each level showing room dimensions, wall partitions, windows and doors, etc.
- Cross Section: A slice of the home from roof to foundation, showing important details like stairs and wall construction.
- Overhead Roof Plan(s): A view of the home from above showing roof pitch, peaks, valleys, and other details.
- Construction Notes and Details: Shows the builder how things come together, like walls, the chimney, insulation, and more.
Plan Set
$977.50
$1147.50
$1275.00
$1955.00
$595.00
Foundation
$0.00
Framing
$0.00
Additional Options
$42.50
$85.00
$33.15
$85.00
$25.50
* Alternate Foundations may take time to prepare.
** Options with a fee may take time to prepare. Please call to confirm.
 
         
         
                 
                         
                 
                 
                 
                 
                 
                 
                 
                 
                 
                 
                         
                        