SAVED No Saved House Plans REGISTER LOGIN Empty Cart
Don't lose your saved plans!  Create an account to access your saves whenever you want. See our Terms & Conditions and Privacy Policy.

PLAN 308-247

Photographs may show modified designs.

Save
  • Jump to:
  • All (3)
  • Floor plans (2)
Questions? Get Personalized Help
Home  >  Style  >  Country

Key Specs


Plan Sq Ft

2797
sq ft

Plan Bedrooms

4
Beds

Plan Bathrooms

2
Baths

Plan Floors

2
Floors

Plan Garages

3
Garages

Select Plan Set Options

What's included?

Additional options

Dropdown arrow

Right-Reading Reverse
$175.00
Choose this option to reverse your plans and to have the text and dimensions readable.
Additional Construction Sets
$60.00/each
Additional hard copies of the plan (can be ordered at the time of purchase and within 90 days of the purchase date).
Audio Video Design
$100.00
Receive an overlay sheet with suggested placement of audio and video components.
Construction Guide
$39.00
Educate yourself about basic building ideas with these four detailed diagrams that discuss electrical, plumbing, mechanical, and structural topics.
Lighting Design
$100.00
Receive an overlay sheet with suggested placement of lighting fixtures.
Mirror Reversed Sets
$55.00
Printed sets showing plan in reverse, text and dimensions will be backwards.
Subtotal
$565.00
Best Price Guaranteed*

Also order by phone: 1-888-447-1946
 
Questions about building your home?
Get Personalized Help
We do our best to get back to you within 24 - 48 business hours.
Need an answer faster? Call now...
Phone: 1-888-447-1946
Hours:
Ready for Your Call 7 Days a Week
Every Day 7 am - 8:30 pm Eastern

See our Terms & Conditions and Privacy Policy.

 
Wow!
Cost to Build Reports
Only $1.99 Right Now
Use Code CTB2026
Our Cost to Build Report gives you a personalized estimate for building your home, based on your location, plan, and materials.
Get Cost To Build Report
Limit one per order.

Residential Construction Guide

Learn Building Basics

This downloadable, 26-page guide is full of diagrams and details about plumbing, electrical, and more.

PLAN 308-247

This plan can be customized

Tell us about your desired changes so we can prepare an estimate for the design service. Click the button to submit your request for pricing, or call 1-888-447-1946 for assistance.

Modify This Plan

Plan Description


This country design floor plan is 2797 sq ft and has 4 bedrooms and 2 bathrooms.

Full Specs & Features


Dimension

Depth : 41' 6"

Width : 66' 9"

Area

Basement Unfinished: 1400 sq/ft

First Floor: 1420 sq/ft

Second Floor: 1377 sq/ft

* Total Square Footage typically only includes conditioned space and does not include garages, porches, bonus rooms, or decks.

Exterior Wall Framing

Exterior Wall Finish : Stone/Stucco

Bedroom Features

Formal Dining Room

Formal Living Room / Parlor

Upstairs Master Bedrooms

Walk In Closet

Kitchen Features

Breakfast Nook

Additional Room Features

Den Office Study Computer

Family Room Keeping Room

Master Sitting Area

Mud Room

Outdoor Spaces

Covered Front Porch

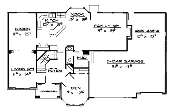
Rooms

Bedroom 2:

131 sq/ft width 10' 10" x depth 12' 2"

Bedroom 3:

141 sq/ft width 13' 2" x depth 10' 9"

Bedroom 4:

124 sq/ft width 11' 6" x depth 10' 10"

Breakfast Nook:

156 sq/ft width 10' x depth 15' 8"

Den:

147 sq/ft width 11' 6" x depth 12' 10"

Dining Room:

181 sq/ft width 11' 6" x depth 15' 9"

Family Room:

246 sq/ft width 15' 9" x depth 15' 8"

Garage:

622 sq/ft width 31' 8" x depth 19' 8"

Kitchen:

188 sq/ft width 12' x depth 15' 8"

Living Room:

166 sq/ft width 11' 6" x depth 14' 6"

Master Bedroom:

308 sq/ft width 21' 5" x depth 14' 5"

Master Sitting Room:

75 sq/ft width 11' 4" x depth 6' 8"

Work Shop:

242 sq/ft width 15' 6" x depth 15' 8"

What's Included In This Plan Set


All plans are drawn at ¼” scale or larger and include :

  • Foundation Plan: This page shows all necessary notations and dimensions including support columns, walls, and excavated/unexcavated areas.
  • Exterior Elevations: Views of the home from all four sides showing exterior materials and measurements.
  • Floor Plan(s): Detailed plans for each level showing room dimensions, wall partitions, windows and doors, etc.
  • Cross Section: A slice of the home from roof to foundation, showing important details like stairs and wall construction.
  • Overhead Roof Plan(s): A view of the home from above showing roof pitch, peaks, valleys, and other details.
  • Construction Notes and Details: Shows the builder how things come together, like walls, the chimney, insulation, and more.
» See important information before purchasing.
Questions? Call 1-888-447-1946

Plan Set

5 Copy Set:
$565.00
5 printed plan sets mailed to you.
8 Copy Set:
$620.00
8 printed plan sets mailed to you.
Reproducible Set:
$765.00
For inexpensive local printing / making minor adjustments by hand. 1 printed set, typically on Bond paper.
Single Set:
$510.00
One printed set for bidding purposes only. Not a legal building set for construction.

Foundation

Daylight Basement:
$0.00
Ideal for sloping lot, lower level of home partially underground.

Additional Options

Right-Reading Reverse:
$175.00
Choose this option to reverse your plans and to have the text and dimensions readable.
Additional Construction Sets:
$60.00
Additional hard copies of the plan (can be ordered at the time of purchase and within 90 days of the purchase date).
Audio Video Design:
$100.00
Receive an overlay sheet with suggested placement of audio and video components.
Construction Guide:
$39.00
Educate yourself about basic building ideas with these four detailed diagrams that discuss electrical, plumbing, mechanical, and structural topics.
Lighting Design:
$100.00
Receive an overlay sheet with suggested placement of lighting fixtures.
Mirror Reversed Sets:
$55.00
A mirror-reversed set is a printed copy of your house, resulting in the same image you would see if you held the drawing up to a mirror. Everything, including the text, is backward in relation to the original design. These kinds of drawing are typically used to reorient an original plan more advantageously on a site, either because the homeowner prefers it that way or because of limitations of the site itself. Note: Mirror reverse sets are only available with a 5 copy or 8 copy set. With a Reproducible, PDF, or CAD set, you can print mirrored copies locally. In addition: 5 Copy set selected, should only allow 4 mirrored sets to be selected. 8 Copy set selected, should only allow 7 mirrored sets to be selected.

* Alternate Foundations may take time to prepare.

** Options with a fee may take time to prepare. Please call to confirm.

Unless you buy an “unlimited” plan set or a multi-use license you may only build one home from a set of plans. Please call to verify if you intend to build more than once. Plan licenses are non-transferable and cannot be resold.
Coupon Codes