- Jump to:
- All (4)
- Floor plans (2)
Phone: 1-888-447-1946
See our Terms & Conditions and Privacy Policy.
Use Code CTBFALL
Residential Construction Guide
Learn Building Basics
This downloadable, 26-page guide is full of diagrams and details about plumbing, electrical, and more.
PLAN 80-219
This plan can be customized
Tell us about your desired changes so we can prepare an estimate for the design service. Click the button to submit your request for pricing, or call 1-888-447-1946 for assistance.
Plan Description
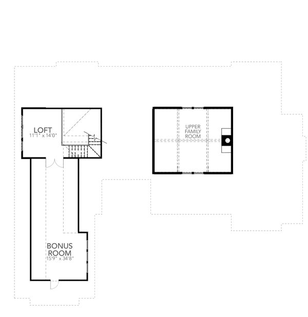
Floor Plans
Full Specs & Features
Dimension
Depth : 85'
Height : 27'
Width : 83'
Area
Bonus : 500 sq/ft
Garage : 849 sq/ft
Main Floor : 2687 sq/ft
Patios : 672 sq/ft
Porch : 434 sq/ft
Upper Floor : 201 sq/ft
Ceiling
Bonus Ceiling : 9'
Garage Ceiling : 9'
Main Ceiling : 10'
Upper Ceiling Ft : 9'
Roof
Primary Pitch : 12:12
Roof Framing : Stick
Roof Type : Metal
Exterior Wall Framing
Exterior Wall Finish : Board & Batten
Framing : 2x4
Bedroom Features
Main Floor Bedrooms
Main Floor Master Bedroom
Split Bedrooms
Walk In Closet
Kitchen Features
Kitchen Island
Additional Room Features
Den Office Study Computer
Family Room Keeping Room
Main Floor Laundry
Mud Room
Play Flex Room
Storage Area
Garage Features
Side Entry Garage
Outdoor Spaces
Covered Front Porch
Covered Rear Porch
Outdoor Kitchen Grill
More
Jack & Jill Bath
What's Included In This Plan Set
All plans are drawn at ¼” scale or larger and include :
- Foundation Plan: This page shows all necessary notations and dimensions including support columns, walls, and excavated/unexcavated areas.
- Exterior Elevations: Views of the home from all four sides showing exterior materials and measurements.
- Floor Plan(s): Detailed plans for each level showing room dimensions, wall partitions, windows and doors, etc.
- Cross Section: A slice of the home from roof to foundation, showing important details like stairs and wall construction.
- Overhead Roof Plan(s): A view of the home from above showing roof pitch, peaks, valleys, and other details.
- Construction Notes and Details: Shows the builder how things come together, like walls, the chimney, insulation, and more.
Plan Set
$1657.50
$2210.00
$1105.00
Foundation
$0.00
$0.00
Additional Options
$127.50
$85.00
$33.15
$85.00
* Alternate Foundations may take time to prepare.
** Options with a fee may take time to prepare. Please call to confirm.
 
         
         
                 
                         
                         
                 
                 
                 
                 
                 
                 
                 
                 
                 
                 
                        