- Jump to:
- All (4)
- Floor plans (2)
Phone: 1-888-447-1946
See our Terms & Conditions and Privacy Policy.
Use Code CTBFALL
Residential Construction Guide
Learn Building Basics
This downloadable, 26-page guide is full of diagrams and details about plumbing, electrical, and more.
PLAN 70-717
This plan can be customized
Tell us about your desired changes so we can prepare an estimate for the design service. Click the button to submit your request for pricing, or call 1-888-447-1946 for assistance.
Plan Description
Floor Plans
Full Specs & Features
Dimension
Depth : 64'
Height : 23' 8"
Width : 69'
Area
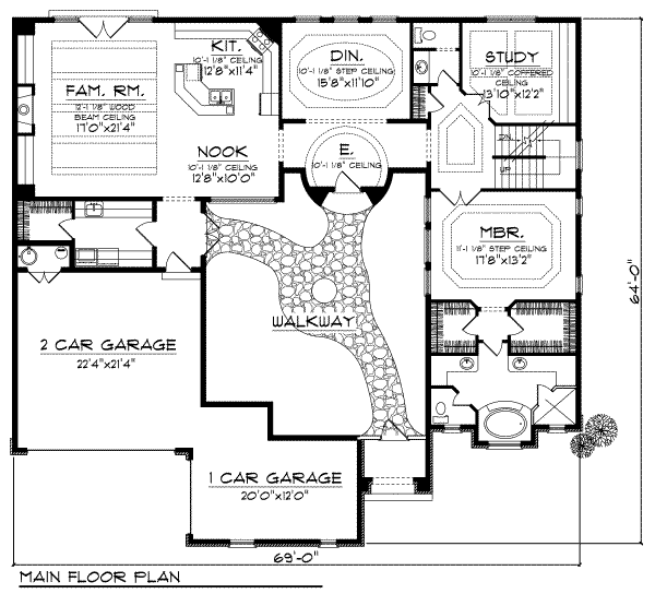
First Floor: 2205 sq/ft
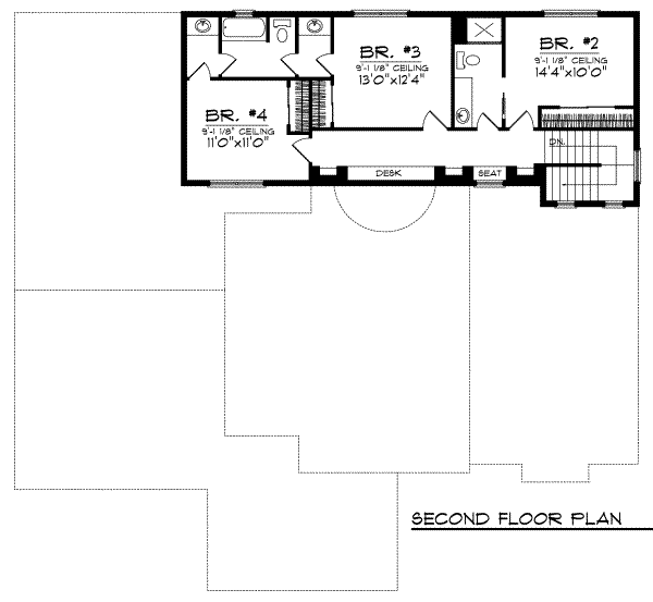
Second Floor: 896 sq/ft
Ceiling
Main Ceiling : 10'
Upper Ceiling Ft : 9'
Roof
Primary Pitch : 4:12
Roof Framing : Truss
Roof Type : Tile
Exterior Wall Framing
Exterior Wall Finish : Stone/Stucco
Framing : 2"x6"
Bedroom Features
Main Floor Master Bedroom
Walk In Closet
Kitchen Features
Breakfast Nook
Kitchen Island
Additional Room Features
Den Office Study Computer
Family Room Keeping Room
Great Room Living Room
Storage Area
Garage Features
Oversized Garage
Side Entry Garage
Lot Characteristics
Suited For Corner Lot
Suited For View Lot
Outdoor Spaces
Courtyard
More
Jack & Jill Bath
Rooms
Bedroom 2:
143 sq/ft width 14' 4" x depth 10'
Bedroom 2 Closet:
20 sq/ft width 10' 4" x depth 2'
Bedroom 3:
160 sq/ft width 13' x depth 12' 4"
Bedroom 3 Closet:
10 sq/ft width 2' x depth 5' 4"
Bedroom 4:
121 sq/ft width 11' x depth 11'
Bedroom 4 Closet:
11 sq/ft width 2' x depth 5' 8"
Breakfast Area:
126 sq/ft width 12' 8" x depth 10'
Dining Room:
185 sq/ft width 15' 8" x depth 11' 10"
Foyer:
134 sq/ft width 17' 6" x depth 7' 8"
Garage:
476 sq/ft width 22' 4" x depth 21' 4"
Garage Two:
240 sq/ft width 20' x depth 12'
Hall:
44 sq/ft width 5' 6" x depth 8'
Hall:
100 sq/ft width 25' x depth 4'
Hall Bathroom:
65 sq/ft width 5' 4" x depth 12' 4"
Hall Closet:
8 sq/ft width 2' x depth 4'
Laundry Room:
76 sq/ft width 9' 6" x depth 8'
Master Bathroom:
150 sq/ft width 17' 8" x depth 8' 6"
Master Bedroom:
232 sq/ft width 17' 8" x depth 13' 2"
Master Closet:
33 sq/ft width 5' 6" x depth 6' 2"
Master Closet Two:
49 sq/ft width 8' x depth 6' 2"
Powder Room:
42 sq/ft width 5' 8" x depth 7' 5"
What's Included In This Plan Set
- Cover Sheet: Cover sheet with front rendering
- Foundation Plan(s): Foundation plans at 1/4" = 1' scale
- Floor Plan(s): Floor plans at 1/4" = 1' scale
- Exterior Elevations: Exterior elevations of all four views, front at 1/4" = 1' scale, rear and sides vary from 1/8" to 1/4" = 1' scale
- Overhead Roof Plan(s): A view of the home from above showing roof pitch, peaks, valleys, and other details.
- Cross Section(s): A slice of the home from roof to foundation, showing relationships between floors, roof, and foundation.
- Building Section(s): Building sections and details as required to construct the individual design
- Electrical Plan(s): Schematic electrical plans with suggested switch, outlet, and light fixture locations
- Kitchen Cabinet Elevation(s): Interior elevation of cabinets at 1/4" = 1' scale
- Construction Notes / Detail(s): Shows basic parts and assemblies recommended for the home so the builder can see how things come together.
- Specification(s): General specification design notes
Plan Set
$1052.30
$1094.80
$1319.20
$1319.20
$2104.60
Foundation
$0.00
$335.75
$335.75
Additional Options
$335.75
$68.00
$140.25
$335.75
$33.15
$140.25
$63.75
* Alternate Foundations may take time to prepare.
** Options with a fee may take time to prepare. Please call to confirm.
 
         
         
                 
                         
                         
                 
                 
                 
                 
                 
                 
                 
                 
                 
                