SAVED No Saved House Plans REGISTER LOGIN Empty Cart
Don't lose your saved plans!  Create an account to access your saves whenever you want. See our Terms & Conditions and Privacy Policy.

PLAN 932-1219

Photographs may show modified designs.

Save
  • Jump to:
  • All (8)
  • Floor plans (3)
Questions? Get Personalized Help
Home  >  Style  >  Country

Key Specs


Plan Sq Ft

4068
sq ft

Plan Bedrooms

5
Beds

Plan Bathrooms

3.5
Baths

Plan Floors

2
Floors

Plan Garages

0
Garages

Select Plan Set Options

What's included?

Additional options

Dropdown arrow

Right-Reading Reverse
$300.00
Choose this option to reverse your plans and to have the text and dimensions readable.
Additional Construction Sets
$63.00/each
Additional hard copies of the plan (can be ordered at the time of purchase and within 90 days of the purchase date).
Audio Video Design
$165.00
Receive an overlay sheet with suggested placement of audio and video components.
Construction Guide
$39.00
Educate yourself about basic building ideas with these four detailed diagrams that discuss electrical, plumbing, mechanical, and structural topics.
Lighting Design
$165.00
Receive an overlay sheet with suggested placement of lighting fixtures.
Material List
$450.00
A spreadsheet of building supplies needed to construct the infrastructure of your new house. Please note materials lists will not reflect add-ons such as alternate foundation and framing options.
Subtotal
$3063.00
Best Price Guaranteed*

Also order by phone: 1-888-447-1946
 
Questions about building your home?
Get Personalized Help
We do our best to get back to you within 24 - 48 business hours.
Need an answer faster? Call now...
Phone: 1-888-447-1946
Hours:
Ready for Your Call 7 Days a Week
Every Day 7 am - 8:30 pm Eastern

See our Terms & Conditions and Privacy Policy.

 
Wow!
Cost to Build Reports
Only $1.99 Right Now
Use Code CTBFALL
Our Cost to Build Report gives you a personalized estimate for building your home, based on your location, plan, and materials.
Get Cost To Build Report
Limit one per order.

Residential Construction Guide

Learn Building Basics

This downloadable, 26-page guide is full of diagrams and details about plumbing, electrical, and more.

PLAN 932-1219

This plan can be customized

Tell us about your desired changes so we can prepare an estimate for the design service. Click the button to submit your request for pricing, or call 1-888-447-1946 for assistance.

Modify This Plan

Plan Description


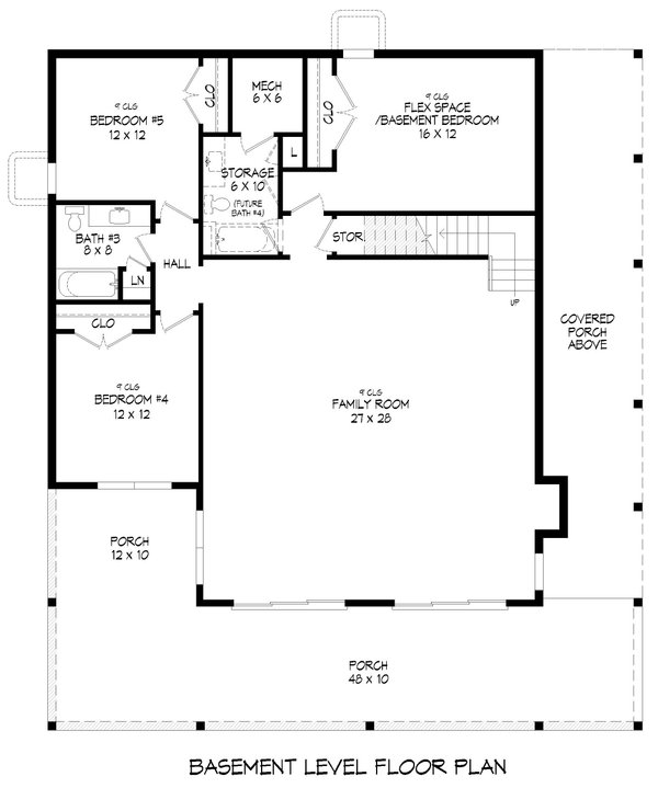
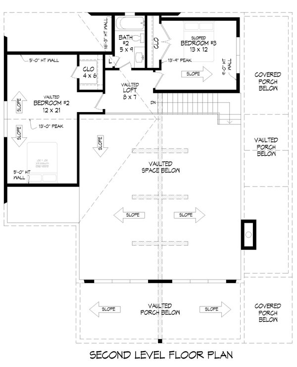
This country design floor plan is 4068 sq ft and has 5 bedrooms and 3.5 bathrooms.

Full Specs & Features


Dimension

Depth : 55'

Height : 24' 10"

Width : 48'

Area

Basement : 1696 sq/ft

Decks : 944 sq/ft

Main Floor : 1696 sq/ft

Porch : 599 sq/ft

Upper Floor : 676 sq/ft

* Total Square Footage typically only includes conditioned space and does not include garages, porches, bonus rooms, or decks.

Ceiling

Ceiling Details : Upstairs ceilings slope 9'-0" to 13'-9" height.

Lower Ceiling : 9'

Main Ceiling : 9'

Upper Ceiling Ft : 9'

Roof

Primary Pitch : 12:12

Roof Framing : Conventional

Roof Load : 10

Roof Type : Gable

Secondary Pitch : 9:12

Exterior Wall Framing

Exterior Wall Finish : siding/wood

Framing : 2x6

Bedroom Features

Lower Level Bedrooms

Main Floor Master Bedroom

Upstairs Bedrooms

Walk In Closet

Kitchen Features

Eating Bar

Kitchen Island

Walk In Pantry Cabinet Pantry

Additional Room Features

Family Room Keeping Room

Great Room Living Room

Loft

Main Floor Laundry

Mud Room

Play Flex Room

Storage Area

Lot Characteristics

Suited For Sloping Lot

Suited For View Lot

Outdoor Spaces

Covered Front Porch

Covered Rear Porch

Wrap Around Porch

More

Suited For Vacation Home

What's Included In This Plan Set


Plans are typically drawn to ¼” scale and include:
  • Foundation Plan(s): This page shows all necessary notations and dimensions including support columns, walls, and excavated/unexcavated areas.
  • Floor Plan(s): Detailed plans for each level showing room dimensions, wall partitions, windows and doors sizes, joist directions and beam locations.
  • Exterior Elevations: Views of the home from all four sides showing exterior materials, roof slope, ridge heights, siding and trim notes.
  • Overhead Roof Plan(s): A view of the home from above showing roof pitch, peaks, valleys, and other details.
  • Cross Section(s): A slice of the home from roof to foundation, showing relationships between floors, roof, and foundation.
  • Construction Notes / Detail(s): Shows basic parts and assemblies recommended for the home so the builder can see how things come together.
» See important information before purchasing.
Questions? Call 1-888-447-1946

Plan Set

PDF Set:
$3063.00
PDF plan sets are best for fast electronic delivery and inexpensive local printing.
5 Copy Set:
$3375.00
5 printed plan sets mailed to you.
5 Copy and PDF Set:
$3502.00
5 printed plan sets mailed to you plus PDF plan sets are best for fast electronic delivery and inexpensive local printing.
CAD and PDF Set:
$3750.00
For use by design professionals to make substantial changes to your house plan and inexpensive local printing plus PDF plan sets are best for fast electronic delivery and inexpensive local printing.
Study Set:
$2300.00
One electronic set for bidding purposes only. Not a legal building set for construction.

Foundation

Walk Out Basement:
$0.00
Ideal for a sloping lot, lower level with outdoor access.
Crawlspace:
$300.00
Ideal for semi-sloped or level lot, home can be built off of grade, typically 18” - 48”.
Slab:
$300.00
Ideal for level lot, single layer concrete poured directly on grade.
Basement:
$650.00
Ideal for level lot, lower level of home partially or fully underground.

Framing

Wood 2x6:
$0.00
Wood 2x6 Exterior Walls
Wood 2x4:
$300.00
Wood 2x4 Exterior Walls

Additional Options

Right-Reading Reverse:
$300.00
Choose this option to reverse your plans and to have the text and dimensions readable.
Additional Construction Sets:
$63.00
Additional hard copies of the plan (can be ordered at the time of purchase and within 90 days of the purchase date).
Audio Video Design:
$165.00
Receive an overlay sheet with suggested placement of audio and video components.
Construction Guide:
$39.00
Educate yourself about basic building ideas with these four detailed diagrams that discuss electrical, plumbing, mechanical, and structural topics.
Lighting Design:
$165.00
Receive an overlay sheet with suggested placement of lighting fixtures.
Material List:
$450.00
A spreadsheet of building supplies needed to construct the infrastructure of your new house. Please note materials lists will not reflect add-ons such as alternate foundation and framing options.

* Alternate Foundations may take time to prepare.

** Options with a fee may take time to prepare. Please call to confirm.

Unless you buy an “unlimited” plan set or a multi-use license you may only build one home from a set of plans. Please call to verify if you intend to build more than once. Plan licenses are non-transferable and cannot be resold.
Coupon Codes