SAVED No Saved House Plans REGISTER LOGIN Empty Cart
Don't lose your saved plans!  Create an account to access your saves whenever you want. See our Terms & Conditions and Privacy Policy.
15% OFF FOR THE FIRST 25 CUSTOMERS

PLAN 453-23

Photographs may show modified designs.

Save
  • Jump to:
  • All (7)
  • Floor plans (3)
Questions? Get Personalized Help
Home  >  Style  >  European

Key Specs


Plan Sq Ft

7480
sq ft

Plan Bedrooms

6
Beds

Plan Bathrooms

5.5
Baths

Plan Floors

2
Floors

Plan Garages

3
Garages

Select Plan Set Options

What's included?

Additional options

Dropdown arrow

Right-Reading Reverse
$170.00
Choose this option to reverse your plans and to have the text and dimensions readable.
Additional Construction Sets
$42.50/each
Additional hard copies of the plan (can be ordered at the time of purchase and within 90 days of the purchase date).
Audio Video Design
$140.25
Receive an overlay sheet with suggested placement of audio and video components.
Comprehensive Material List
$420.75
A complete list of building supplies needed to construct the infrastructure of your new house, plus an overlay of materials shown directly on your PDF (foundation to rooftop with interior and exterior materials), and a detailed, itemized door and window schedule showing all sizes and types. Please allow 5-7 Business Days for completion. Note, the Comprehensive list is only available with a PDF purchase. The Comprehensive list can be ordered no matter what additional plan options you have selected.
Construction Guide
$33.15
Educate yourself about basic building ideas with these four detailed diagrams that discuss electrical, plumbing, mechanical, and structural topics.
Lighting Design
$140.25
Receive an overlay sheet with suggested placement of lighting fixtures.
Mirror Reversed Sets
$42.50
Printed sets showing plan in reverse, text and dimensions will be backwards.
Subtotal
$2400.00 NOW $2040.00
You save $360.00 (15% savings)
Sale ends soon!
Best Price Guaranteed*

Also order by phone: 1-888-447-1946
 
Questions about building your home?
Get Personalized Help
We do our best to get back to you within 24 - 48 business hours.
Need an answer faster? Call now...
Phone: 1-888-447-1946
Hours:
Ready for Your Call 7 Days a Week
Every Day 7 am - 8:30 pm Eastern

See our Terms & Conditions and Privacy Policy.

 
Wow!
Cost to Build Reports
Only $1.99 Right Now
Use Code CTB2026
Our Cost to Build Report gives you a personalized estimate for building your home, based on your location, plan, and materials.
Get Cost To Build Report
Limit one per order.

Residential Construction Guide

Learn Building Basics

This downloadable, 26-page guide is full of diagrams and details about plumbing, electrical, and more.

PLAN 453-23

This plan can be customized

Tell us about your desired changes so we can prepare an estimate for the design service. Click the button to submit your request for pricing, or call 1-888-447-1946 for assistance.

Modify This Plan

Plan Description


Adorning the foyer is a gracefully curving staircase, enclosed in a European style turret, leads to the upper sleeping quarters. A computer loft area, with built-in desk is the perfect spot for homework. After homework is complete, the kids can relax in their private, upper-level den. Upper level baths have solar tubes in ceilings, allowing natural sunlight to brightly and evenly illuminate the room.

Full Specs & Features


Dimension

Depth : 95' 4"

Width : 109' 3"

Area

Basement Living: 1749 sq/ft

First Floor: 3544 sq/ft height 10'

Garage: 836 sq/ft

Second Floor: 2187 sq/ft height 9'

* Total Square Footage typically only includes conditioned space and does not include garages, porches, bonus rooms, or decks.

Ceiling

Lower Ceiling : 10'

Main Ceiling : 10'

Upper Ceiling Ft : 9'

Exterior Wall Framing

Exterior Wall Finish : Stone

Framing : 2"x4"

Bedroom Features

Guest Suite

Main Floor Bedrooms

Main Floor Master Bedroom

Upstairs Bedrooms

Walk In Closet

Kitchen Features

Breakfast Nook

Butler's Pantry

Eating Bar

Kitchen Island

Kitchenette Wet Bar

Walk In Pantry Cabinet Pantry

Additional Room Features

Den Office Study Computer

Family Room Keeping Room

Great Room Living Room

Hobby Rec Room Game Room

Loft

Main Floor Laundry

Master Sitting Area

Media Room

Mud Room

Play Flex Room

Storage Area

Sunroom

Wet Bar

Garage Features

Oversized Garage

Side Entry Garage

Lot Characteristics

Suited For Sloping Lot

Suited For View Lot

Outdoor Spaces

Balcony

Covered Front Porch

Covered Rear Porch

Grill Deck Sundeck

Screened Porch

More

Suited For Vacation Home

Unusual Shape

Structural Information Provided

Foundation Drawing

Structural 1st Floor Framing

Structural 2nd Floor Framing

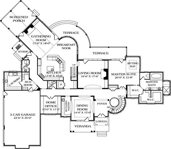
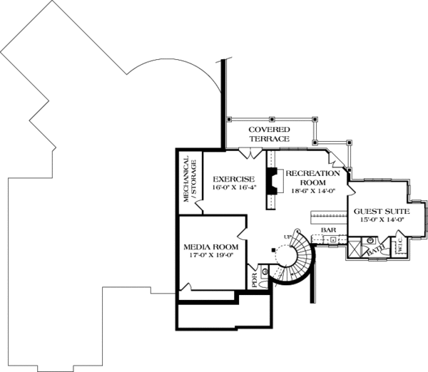
Rooms

Bedroom 2:

176 sq/ft width 11' 6" x depth 15' 4"

Bedroom 3:

188 sq/ft width 14' 4" x depth 13' 2"

Bedroom 4:

145 sq/ft width 13' 10" x depth 10' 6"

Gathering Room:

280 sq/ft width 17' 6" x depth 16'

Guest Bedroom 1:

210 sq/ft width 15' x depth 14'

Kitchen:

280 sq/ft width 17' 6" x depth 16'

Living Room:

288 sq/ft width 16' 6" x depth 17' 6"

Media Room:

323 sq/ft width 17' x depth 19'

Recreation Room:

274 sq/ft width 18' 6" x depth 14' 10"

What's Included In This Plan Set


This plan typically includes:Plans are typically drawn to ¼” scale and include:
  • Foundation Plan(s): Dimensioned and detailed foundation plan (type as listed on home plan description). Typical foundation details, wall sections, and cornice details necessary for construction.
  • Floor Plan(s): Dimensioned and detailed floor plans
  • Exterior Elevations: Views of the home from all four sides showing exterior materials, roof slope, ridge heights, siding and trim notes.
  • Overhead Roof Plan(s): A view of the home from above showing roof pitch, peaks, valleys, and other details.
  • Cross Section(s): A slice of the home from roof to foundation, showing relationships between floors, roof, and foundation.
  • Building Section(s): Shows the relationship between different levels, wall heights, and the overall building volume. May include details like foundation, framing, insulation, and finishes.
  • Electrical Plan(s): Separate electrical plan (may be shown on floor plans in some cases). Shows the location of lights, receptacles, switches, etc.
  • Construction Notes / Detail(s): Shows basic parts and assemblies recommended for the home so the builder can see how things come together.
  • Framing Detail(s): Framing plans (framing may be shown on floor plans in some cases.) If included, the framing layout is intended to be a suggested layout only. Design loads and weather conditions vary by region. As a result the size, spacing, and layout of all structural elements in this home design may need approval by a structural engineer or code official based on your specific site location.
» See important information before purchasing.
Questions? Call 1-888-447-1946

Plan Set

PDF Set:
$2040.00
PDF plan sets are best for fast electronic delivery and inexpensive local printing.
Reproducible Set:
$2040.00
For inexpensive local printing / making minor adjustments by hand. 1 printed set, typically on Bond paper.
CAD Set:
$4080.00
For use by design professionals to make substantial changes to your house plan and inexpensive local printing.

Foundation

Daylight Basement:
$0.00
Ideal for sloping lot, lower level of home partially underground.

Additional Options

Right-Reading Reverse:
$170.00
Choose this option to reverse your plans and to have the text and dimensions readable.
Additional Construction Sets:
$42.50
Additional hard copies of the plan (can be ordered at the time of purchase and within 90 days of the purchase date).
Audio Video Design:
$140.25
Receive an overlay sheet with suggested placement of audio and video components.
Comprehensive Material List:
$420.75
A complete list of building supplies needed to construct the infrastructure of your new house, plus an overlay of materials shown directly on your PDF (foundation to rooftop with interior and exterior materials), and a detailed, itemized door and window schedule showing all sizes and types. Please allow 5-7 Business Days for completion. Note, the Comprehensive list is only available with a PDF purchase. The Comprehensive list can be ordered no matter what additional plan options you have selected.
Construction Guide:
$33.15
Educate yourself about basic building ideas with these four detailed diagrams that discuss electrical, plumbing, mechanical, and structural topics.
Lighting Design:
$140.25
Receive an overlay sheet with suggested placement of lighting fixtures.
Mirror Reversed Sets:
$42.50
A mirror-reversed set is a printed copy of your house, resulting in the same image you would see if you held the drawing up to a mirror. Everything, including the text, is backward in relation to the original design. These kinds of drawing are typically used to reorient an original plan more advantageously on a site, either because the homeowner prefers it that way or because of limitations of the site itself. Note: Mirror reverse sets are only available with a 5 copy or 8 copy set. With a Reproducible, PDF, or CAD set, you can print mirrored copies locally. In addition: 5 Copy set selected, should only allow 4 mirrored sets to be selected. 8 Copy set selected, should only allow 7 mirrored sets to be selected.

* Alternate Foundations may take time to prepare.

** Options with a fee may take time to prepare. Please call to confirm.

Unless you buy an “unlimited” plan set or a multi-use license you may only build one home from a set of plans. Please call to verify if you intend to build more than once. Plan licenses are non-transferable and cannot be resold.