By Devin Uriarte
Open floor plans have changed the way we envision our living spaces where focus lies more on connectivity. These new house blueprints create a sense of spaciousness, allowing rooms to flow into one another effortlessly.
Check out more house blueprints with open floor plans.
New Southern House Blueprint
New Southern House Blueprint - Front Exterior
New Southern House Blueprint - Main Floor
This new house plan offers traditionally simple curb appeal with a side entrance garage. The unique L-shape creates a luxe courtyard that welcomes visitors. Indoors the open layout offers guests lots of space to host, and the vaulted ceilings in the living room allow for great natural light. Large sliding glass doors open to the rear porch where there’s an outdoor kitchen for summer barbeques. The kitchen features an impressive island for meal prep along with a nearby walk-in pantry for additional storage. Each of the three bedrooms have walk-in closets and their own private bathrooms.
New Farmhouse with Open Floor Plan
New Farmhouse with Open Floor Plan - Front Exterior
New Farmhouse with Open Floor Plan - Main Floor
If you’re looking for a house plan with a charming farmhouse exterior and modern interior, then this new house blueprint is a great choice. There’s an immediate welcoming vibe walking up to the home from the adorable front porch. Double doors open to the foyer and lead you into the spacious living room. Vaulted ceilings help the space feel more open than it already is, and the timber beams add a touch of rustic farmhouse style. This blueprint also features an outdoor living and grilling porch, equipped with a fireplace and grill. By opening the sliding glass doors, you can create a seamless indoor-outdoor flow that leads right into the kitchen. Owners will love preparing meals for family and friends at the kitchen island and having access to the walk-in pantry and butler’s pantry.
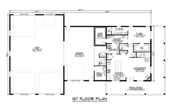
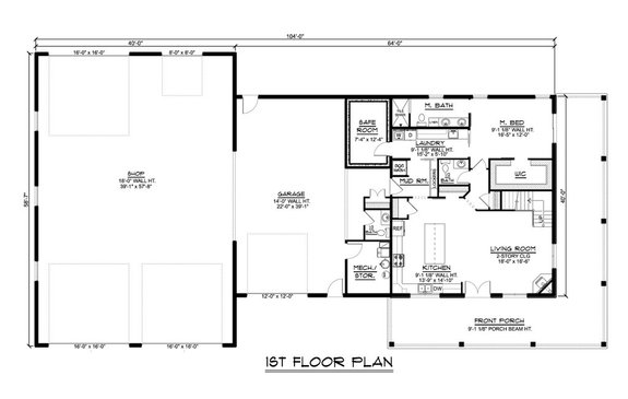
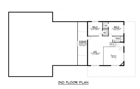
New Barndominium
New Barndominium - Front Exterior
New Barndominium - Upper Floor
The blueprint of this new barndominium features a simple open floor plan. What’s impressive about this barndominium is the expansive four-car garage with high ceilings and a convenient workshop inside. This new plan would be ideal for any owner looking for extra storage and who doesn’t want to compromise on living space. The living space indoors has an open layout and lovely views of the wraparound porch. There’s a primary suite on the main floor with its own bathroom, a walk-in closet, and easy access to the laundry room. Upstairs there’s a cozy loft for guests to enjoy along with additional storage space.
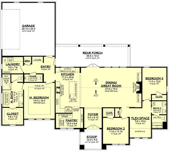
Traditional House Blueprint
Traditional House Blueprint - Front Exterior
Traditional House Blueprint - Main Floor
Beautiful windows and a pitched roof give this new house blueprint traditional curb appeal. Vaulted ceilings indoors make the space feel more open and a charming fireplace gives it a cozy vibe. There is a large island in the kitchen that looks out to the open living space and includes an eating bar for guests to relax. A thoughtful amenity to the space is the impressive walk-in pantry with shelving and cabinets. At one end of the home blueprint is the primary suite, a walk-in laundry room, and a two-car garage. The other side features two well-sized guest bedrooms and a flex space with a slopped ceiling.
New Farmhouse Blueprint
New Farmhouse Blueprint - Front Exterior
New Farmhouse Blueprint - Main Floor
Start the morning by enjoying a cup of coffee on the classic front porch of this new farmhouse blueprint. Inside this farmhouse is a functional open floor plan with vaulted ceilings and a sliding glass door leading to the rear porch. The living room flows into the kitchen that features an impressive island with a built-in bar top for casual dining. For a more elevated dining experience, there is a formal dining area off the kitchen. To make meal preparation easier, there is a walk-in pantry around the corner from the kitchen. A thoughtful addition to this blueprint is the side entry garage. Having a garage on the side of the home draws more attention to the attractive curb appeal.
Hillside Blueprint with Open Floor Plan
Hillside Blueprint with Open Floor Plan - Front Exterior
Hillside Blueprint with Open Floor Plan - Main Floor
Hillside Blueprint with Open Floor Plan - Basement Floor Plan
The views of this new hillside blueprint will be breathtaking, and owners will be able to take full advantage of the open deck. French doors in the primary suite open to the deck, creating a luxurious experience. Views can also be enjoyed in the open living room and kitchen with the help from the large windows and French doors. There’s plenty of counter space in the kitchen including a bar top and walk-in pantry. Downstairs there’s a guest bedroom and a massive basement that can be utilized any way the owner prefers.
Modern Plan
Modern Plan - Front Exterior
Modern Plan - Upper Floor Plan
This modern house blueprint has a simple layout that would work well for a narrower lot. A two-car drive up garage opens immediately into the kitchen. The open floor plan allows owners to host guests with ease as they prepare meals in the kitchen. During summer the sliding glass door can stay open and create a nice flow out to the deck. To maximize the living space, all bedrooms sit on the second floor. There are three guest bedrooms, a spectacular primary suite, and a walk-in laundry room.
New Country Corner Lot Plan
New Country Corner Lot Plan - Front Exterior
New Country Corner Lot Plan - Main Floor Plan
Enter this corner lot plan through the side garage or the vaulted front porch. The front porch has vaulted ceilings and dual covered decks that welcome you into the home. Sloped vaulted ceilings span from the great room into the country style kitchen for a more elevated vibe. The large kitchen island is eye-catching as it looks out to the open floor plan. In the great room there’s a two-sided fireplace that adds a touch of modern luxury to the overall space. The fireplace can also be enjoyed in the primary suite along with private access to the front covered deck. The guest bedroom on the opposite side of the blueprint also has access to its own covered deck.

