- Jump to:
- All (3)
- Floor plans (2)
Key Specs
1788
sq ft
3
Beds
2.5
Baths
2
Floors
2
Garages
Phone: 1-888-447-1946
See our Terms & Conditions and Privacy Policy.
Use Code CTBFALL
Residential Construction Guide
Learn Building Basics
This downloadable, 26-page guide is full of diagrams and details about plumbing, electrical, and more.
PLAN 124-426
This plan can be customized
Tell us about your desired changes so we can prepare an estimate for the design service. Click the button to submit your request for pricing, or call 1-888-447-1946 for assistance.
Plan Description
Floor Plans
Full Specs & Features
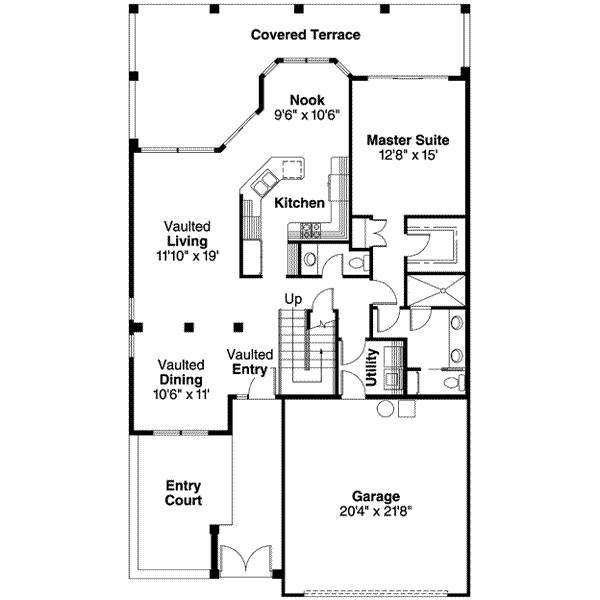
Dimension
Depth : 66'
Height : 23'
Width : 38'
Area
First Floor: 1325 sq/ft
Garage: 462 sq/ft
Second Floor: 463 sq/ft
Ceiling
Main Ceiling : 9'
Roof
Primary Pitch : 5:12
Roof Framing : Truss
Roof Load : 30
Exterior Wall Framing
Exterior Wall Finish : Stucco
Framing : 2"x6"
Bedroom Features
Main Floor Master Bedroom
Split Bedrooms
Upstairs Bedrooms
Walk In Closet
Kitchen Features
Breakfast Nook
Walk In Pantry Cabinet Pantry
Additional Room Features
Great Room Living Room
Main Floor Laundry
Master Sitting Area
Mud Room
Garage Features
Front Entry Garage
Lot Characteristics
Suited For Narrow Lot
Outdoor Spaces
Courtyard
Covered Rear Porch
More
Empty Nester
Suited For Vacation Home
What's Included In This Plan Set
Each plan set is drawn at 1/4"=1' scale and includes the following drawings:
- Artist's Rendering: An artist's drawing of the home, usually viewed from the front, and general construction notes.
- Elevations: Shows the front, sides, and rear, including exterior materials, trim sizes, roof pitches, etc.
- Main Floor Plan: Shows placement and dimensions of walls, doors, & windows. Includes the location of appliances, plumbing fixtures, beams, ceiling heights, etc.
- Second Floor Plan (if any): Shows the second floor in the same detail as the main floor. Includes second floor framing and details.
- Foundation Plan: Shows the location of all concrete footings, floor beams, first floor framing, and foundation details. If there is a basement, a basement plan is included which shows all basement details. Foundation types vary; please call to confirm the foundation type of the plan you are interested in.
- Floor Framing Plan (if any): Shows location and spacing of floor joists and supporting walls or beams.
- Roof Framing Plan: Shows roof outlines, conventional framing/trusses, beams, roof framing details, etc. Specific details such as fireplaces, stairways, decks, etc. Details are drawn at 1/2" = 1' scale, and appear as needed throughout the prints.
- Section: Shows a cross-section of the home. Shows support members, exterior and interior materials, insulation, and foundation.
- Electrical Plan: A schematic layout of all lighting, switches and electrical outlets.
Plan Set
$871.25
$1062.50
$1785.00
$1955.00
$2146.25
$701.25
Foundation
$0.00
$297.50
$391.00
Framing
$0.00
$297.50
Additional Options
$255.00
$46.75
$701.25
$140.25
$250.75
$33.15
$140.25
* Alternate Foundations may take time to prepare.
** Options with a fee may take time to prepare. Please call to confirm.
 
         
         
                 
                         
                         
                 
                 
                 
                 
                 
                 
                 
                 
                 
                