- Jump to:
- All (5)
- Floor plans (1)
Phone: 1-888-447-1946
See our Terms & Conditions and Privacy Policy.
Use Code CTBFALL
Residential Construction Guide
Learn Building Basics
This downloadable, 26-page guide is full of diagrams and details about plumbing, electrical, and more.
PLAN 56-692
This plan can be customized
Tell us about your desired changes so we can prepare an estimate for the design service. Click the button to submit your request for pricing, or call 1-888-447-1946 for assistance.
Plan Description
Floor Plans
Full Specs & Features
Dimension
Depth : 74' 3"
Height : 22' 6"
Width : 50'
Area
Bonus: 888 sq/ft
First Floor: 1820 sq/ft
Roof
Primary Pitch : 7:12
Roof Framing : Conventional
Exterior Wall Framing
Exterior Wall Finish : Stone
Framing : Wood - 2x4
Bedroom Features
Fireplace
Formal Dining Room
Split Bedrooms
Walk In Closet
Kitchen Features
Breakfast Nook
Additional Room Features
Family Room Keeping Room
Master Sitting Area
Sunroom
Unfinished Future Space
Outdoor Spaces
Covered Front Porch
Screened Porch
Rooms
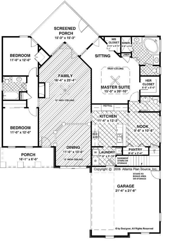
Bedroom 2:
132 sq/ft width 11' x depth 12'
Bedroom 3:
132 sq/ft width 11' x depth 12'
Breakfast Nook:
103 sq/ft width 9' 8" x depth 10' 8"
Dining Room:
143 sq/ft width 11' x depth 13'
Family Room:
413 sq/ft width 16' 4" x depth 25' 4"
Garage:
462 sq/ft width 21' 4" x depth 21' 8"
Kitchen:
149 sq/ft width 11' 4" x depth 13' 2"
Laundry Room:
43 sq/ft width 7' 6" x depth 5' 10"
Master Closet:
24 sq/ft width 4' 11" x depth 4' 11"
Master Closet Two:
36 sq/ft width 6' x depth 6'
Porch - Front:
96 sq/ft width 16' 1" x depth 6'
Porch - Screened:
232 sq/ft width 15' 3" x depth 15' 3"
What's Included In This Plan Set
- Foundation Plan(s): This page shows all necessary notations and dimensions including footings, support columns, walls, and excavated/unexcavated areas.
- Floor Plan(s): Detailed plans for each level showing room dimensions, wall partitions, windows and doors, fixture locations, and ceiling treatments.
- Exterior Elevations: All four sides
- Overhead Roof Plan(s): A view of the home from above showing roof pitch, peaks, valleys, and other details.
- Cross Section(s): A slice of the home from roof to foundation, showing relationships between floors, roof, and foundation.
- Electrical Plan(s): Most plans from this designer have this available
- Kitchen Cabinet Elevation(s): Detailed drawings of kitchen cabinet elevations
- Construction Notes / Detail(s): Shows basic parts and assemblies recommended for the home so the builder can see how things come together.
- Rendering(s): Artist rendering
- Specification(s): Includes general specifications, not specific to individual plans.
Plan Set
$1100.75
$1143.25
$1185.75
$1317.50
$1525.75
Foundation
$0.00
$297.50
$297.50
Framing
$0.00
$297.50
Additional Options
$250.75
$55.25
$637.50
$85.00
$33.15
$85.00
$250.75
$1275.00
* Alternate Foundations may take time to prepare.
** Options with a fee may take time to prepare. Please call to confirm.
 
         
         
                 
                         
                 
                 
                 
                 
                 
                 
                 
                 
                 
                