SAVED No Saved House Plans REGISTER LOGIN Empty Cart
Don't lose your saved plans!  Create an account to access your saves whenever you want. See our Terms & Conditions and Privacy Policy.
20% OFF TODAY FOR BLACK FRIDAY
  • Jump to:
  • All (35)
  • Floor plans (2)
Questions? Get Personalized Help
Home  >  Style  >  Modern

Key Specs


Plan Sq Ft

2589
sq ft

Plan Bedrooms

3
Beds

Plan Bathrooms

2.5
Baths

Plan Floors

1
Floors

Plan Garages

3
Garages

Select Plan Set Options

What's included?

Additional options

Dropdown arrow

Right-Reading Reverse
$240.00
Choose this option to reverse your plans and to have the text and dimensions readable.
2 Car Front-Loading Garage
$240.00
Changes garage to front load
2 Car Side-Loading Garage
$240.00
Changes garage to side load
3 Car Front-Loading Garage
$400.00
Changes garage to front load
3 Car Side-Loading Garage
$0.00
Changes garage to side load
Additional Use License
$400.00
Allows you to build one more home for each additional license purchased.
Audio Video Design
$132.00
Receive an overlay sheet with suggested placement of audio and video components.
Construction Guide
$31.20
Educate yourself about basic building ideas with these four detailed diagrams that discuss electrical, plumbing, mechanical, and structural topics.
Material List
$240.00
A spreadsheet of building supplies needed to construct the infrastructure of your new house. Please note materials lists will not reflect add-ons such as alternate foundation and framing options.
Mirror Reversed Sets
$240.00
Printed sets showing plan in reverse, text and dimensions will be backwards.
Unlimited Use License
$2264.00
Allows you to build this home as many times as you want.
Subtotal
$1550.00 NOW $1240.00
You save $310.00 (20% savings)
Sale ends soon!
Best Price Guaranteed*

Also order by phone: 1-888-447-1946
 
Questions about building your home?
Get Personalized Help
We do our best to get back to you within 24 - 48 business hours.
Need an answer faster? Call now...
Phone: 1-888-447-1946
Hours:
Ready for Your Call 7 Days a Week
Every Day 7 am - 8:30 pm Eastern

See our Terms & Conditions and Privacy Policy.

 
Wow!
Cost to Build Reports
Only $1.99 Right Now
Use Code CTBFALL
Our Cost to Build Report gives you a personalized estimate for building your home, based on your location, plan, and materials.
Get Cost To Build Report
Limit one per order.

Residential Construction Guide

Learn Building Basics

This downloadable, 26-page guide is full of diagrams and details about plumbing, electrical, and more.

PLAN 1069-45

This plan can be customized

Tell us about your desired changes so we can prepare an estimate for the design service. Click the button to submit your request for pricing, or call 1-888-447-1946 for assistance.

Modify This Plan

Plan Description


A small but mighty floor plan with a Mid-Century Modern architectural vibe.

Full Specs & Features


Dimension

Depth : 73'

Height : 21' 9"

Width : 79'

Area

Garage : 856 sq/ft

Main Floor : 2589 sq/ft

Patios : 663 sq/ft

Porch : 318 sq/ft

Storage : 2589 sq/ft

* Total Square Footage typically only includes conditioned space and does not include garages, porches, bonus rooms, or decks.

Ceiling

Ceiling Details : High volume space over living room with clerestory windows.

Garage Ceiling : 10'

Main Ceiling : 9'

Roof

Primary Pitch : 4:12

Roof Framing : truss and stick

Roof Type : standing seam metal roof

Exterior Wall Framing

Exterior Wall Finish : wood, stone, bnb

Framing : 2x6

Insulation : R-38

Bedroom Features

Main Floor Bedrooms

Main Floor Master Bedroom

Split Bedrooms

Walk In Closet

Kitchen Features

Breakfast Nook

Butler's Pantry

Eating Bar

Kitchen Island

Additional Room Features

Den Office Study Computer

Family Room Keeping Room

Great Room Living Room

Hobby Rec Room Game Room

Main Floor Laundry

Master Sitting Area

Media Room

Mud Room

Play Flex Room

Garage Features

Side Entry Garage

Entryway

Friend S Entry

Lot Characteristics

Suited For Corner Lot

Suited For View Lot

Outdoor Spaces

Covered Front Porch

Covered Rear Porch

More

Additional Half Bath

Economical To Build

Empty Nester

Jack & Jill Bath

Suited For Vacation Home

Energy Efficient Features

Energy Efficient Design

What's Included In This Plan Set


All plans are drawn at ¼” scale or larger and include :

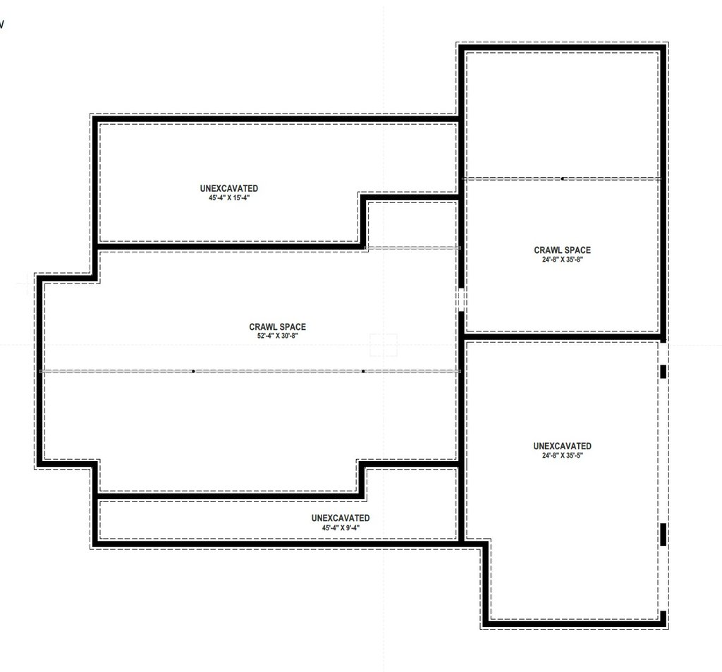
  • Foundation Plan: This page shows all necessary notations and dimensions including support columns, walls, and excavated/unexcavated areas.
  • Exterior Elevations: Views of the home from all four sides showing exterior materials and measurements.
  • Floor Plan(s): Detailed plans for each level showing room dimensions, wall partitions, windows and doors, etc.
  • Cross Section: A slice of the home from roof to foundation, showing important details like stairs and wall construction.
  • Overhead Roof Plan(s): A view of the home from above showing roof pitch, peaks, valleys, and other details.
  • Construction Notes and Details: Shows the builder how things come together, like walls, the chimney, insulation, and more.
» See important information before purchasing.
Questions? Call 1-888-447-1946

Plan Set

PDF Print Set:
$1240.00
A non-modifiable, print only PDF file
PDF Set:
$1240.00
PDF plan sets are best for fast electronic delivery and inexpensive local printing.
CAD and PDF Set:
$1720.00
For use by design professionals to make substantial changes to your house plan and inexpensive local printing plus PDF plan sets are best for fast electronic delivery and inexpensive local printing.
CAD Set:
$1720.00
For use by design professionals to make substantial changes to your house plan and inexpensive local printing.
CAD Single Build:
$1720.00
For use by design professionals to make substantial changes to your house plan and inexpensive local printing.
PDF Unlimited Build:
$1840.00
PDF plan sets are best for fast electronic delivery and inexpensive local printing.
CAD and PDF Set Unlimited Build:
$2280.00
For use by design professionals to make substantial changes to your house plan and inexpensive local printing plus PDF plan sets are best for fast electronic delivery and inexpensive local printing.
CAD Unlimited Build:
$2280.00
For use by design professionals to make substantial changes to your house plan and inexpensive local printing.
Single Set:
$1240.00
One printed set for bidding purposes only. Not a legal building set for construction.

Foundation

Crawlspace:
$0.00
Ideal for semi-sloped or level lot, home can be built off of grade, typically 18” - 48”.
Basement:
$240.00
Ideal for level lot, lower level of home partially or fully underground.
Daylight Basement:
$240.00
Ideal for sloping lot, lower level of home partially underground.
Monolithic Slab:
$240.00
A single concrete pour with thicker portions that replace footers under load bearing walls and all perimeter edges.
Slab:
$240.00
Ideal for level lot, single layer concrete poured directly on grade.
Walk Out Basement:
$240.00
Ideal for a sloping lot, lower level with outdoor access.

Framing

Wood 2x6:
$0.00
Wood 2x6 Exterior Walls
Wood 2x4:
$240.00
Wood 2x4 Exterior Walls

Additional Options

Right-Reading Reverse:
$240.00
Choose this option to reverse your plans and to have the text and dimensions readable.
2 Car Front-Loading Garage:
$240.00
Changes garage to front load
2 Car Side-Loading Garage:
$240.00
Changes garage to side load
3 Car Front-Loading Garage:
$400.00
Changes garage to front load
3 Car Side-Loading Garage:
$0.00
Changes garage to side load
Additional Use License:
$400.00
Allows you to build one more home for each additional license purchased.
Audio Video Design:
$132.00
Receive an overlay sheet with suggested placement of audio and video components.
Construction Guide:
$31.20
Educate yourself about basic building ideas with these four detailed diagrams that discuss electrical, plumbing, mechanical, and structural topics.
Material List:
$240.00
A spreadsheet of building supplies needed to construct the infrastructure of your new house. Please note materials lists will not reflect add-ons such as alternate foundation and framing options.
Mirror Reversed Sets:
$240.00
A mirror-reversed set is a printed copy of your house, resulting in the same image you would see if you held the drawing up to a mirror. Everything, including the text, is backward in relation to the original design. These kinds of drawing are typically used to reorient an original plan more advantageously on a site, either because the homeowner prefers it that way or because of limitations of the site itself. Note: Mirror reverse sets are only available with a 5 copy or 8 copy set. With a Reproducible, PDF, or CAD set, you can print mirrored copies locally. In addition: 5 Copy set selected, should only allow 4 mirrored sets to be selected. 8 Copy set selected, should only allow 7 mirrored sets to be selected.
Unlimited Use License:
$2264.00
Allows you to build this home as many times as you want.

* Alternate Foundations may take time to prepare.

** Options with a fee may take time to prepare. Please call to confirm.

Unless you buy an “unlimited” plan set or a multi-use license you may only build one home from a set of plans. Please call to verify if you intend to build more than once. Plan licenses are non-transferable and cannot be resold.