- Jump to:
- All (2)
- Floor plans (1)
Key Specs
2685
sq ft
3
Beds
2
Baths
1
Floors
3
Garages
Phone: 1-888-447-1946
See our Terms & Conditions and Privacy Policy.
Use Code CTBFALL
Residential Construction Guide
Learn Building Basics
This downloadable, 26-page guide is full of diagrams and details about plumbing, electrical, and more.
PLAN 117-293
This plan can be customized
Tell us about your desired changes so we can prepare an estimate for the design service. Click the button to submit your request for pricing, or call 1-888-447-1946 for assistance.
Plan Description
Floor Plans
Full Specs & Features
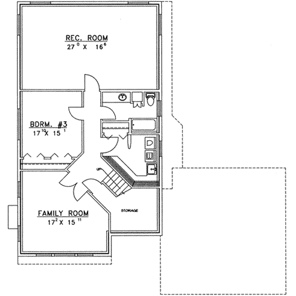
Dimension
Depth : 56' 2"
Height : 21' 1"
Width : 59' 9"
Area
Basement Living: 1223 sq/ft
First Floor: 1462 sq/ft
Ceiling
Main Ceiling : 9'
Roof
Primary Pitch : 6:12
Roof Framing : Truss
Exterior Wall Framing
Exterior Wall Finish : Siding
Framing : 2"x6"
Additional Room Features
Family Room Keeping Room
Hobby Rec Room Game Room
Garage Features
Oversized Garage
Lot Characteristics
Suited For Sloping Lot
Rooms
Bedroom 3:
268 sq/ft width 17' 10" x depth 15' 1"
Dining Room:
277 sq/ft width 19' 2" x depth 14' 6"
Family Room:
273 sq/ft width 17' 2" x depth 15' 11"
Garage:
560 sq/ft width 23' 8" x depth 23' 8"
Kitchen:
160 sq/ft width 14' 2" x depth 11' 4"
Living Room:
287 sq/ft width 17' 2" x depth 16' 9"
Master Suite:
213 sq/ft width 17' 10" x depth 12'
Recreation Room:
445 sq/ft width 27' x depth 16' 6"
What's Included In This Plan Set
- Foundation Plan(s): Footing locations, foundation details, etc.
- Floor Plan(s): Layout of floor plan, window/door schedule, interior and exterior dimensions
- Exterior Elevations: Exterior on all four sides, siding notes, roof pitches, garage door heights, etc.
- Overhead Roof Plan(s): A view of the home from above showing roof pitch, peaks, valleys, and other details.
- Cross Section(s): Cut-through view of home. Shows foundation, insulation, wall construction, ceiling heights, etc.
- Electrical Plan(s): Lighting, switches, electrical outlet placement throughout home.
- Detail Sheet(s): Additional structural details included in most log and ICF plans. Important: design loads and weather conditions vary by region. As a result the size, spacing, and layout of all structural elements in this home design may need approval by a structural engineer or code official based on your specific site location.
- Construction Notes / Detail(s): Referencing the entirety of the project.
- Framing Detail(s): Location of supporting walls and beams. Location/spacing of floor joists, floor framing details. Layout of roof, roof framing details, truss/rafter locations, connection details etc. If included, the framing layout is intended to be a suggested layout only. Design loads and weather conditions vary by region. As a result the size, spacing, and layout of all structural elements in this home design may need approval by a structural engineer or code official based on your specific site location.
Plan Set
$1143.25
$1143.25
$1738.25
Foundation
$0.00
Additional Options
$165.75
$140.25
$250.75
$33.15
$140.25
* Alternate Foundations may take time to prepare.
** Options with a fee may take time to prepare. Please call to confirm.
 
         
         
                 
                         
                 
                 
                 
                 
                 
                 
                 
                 
                