- Jump to:
- All (4)
- Floor plans (2)
Phone: 1-888-447-1946
See our Terms & Conditions and Privacy Policy.
Use Code CTBFALL
Residential Construction Guide
Learn Building Basics
This downloadable, 26-page guide is full of diagrams and details about plumbing, electrical, and more.
PLAN 5-318
This plan can be customized
Tell us about your desired changes so we can prepare an estimate for the design service. Click the button to submit your request for pricing, or call 1-888-447-1946 for assistance.
Plan Description
Floor Plans
Full Specs & Features
Dimension
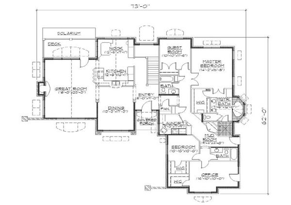
Depth : 62'
Height : 26'
Width : 71'
Area
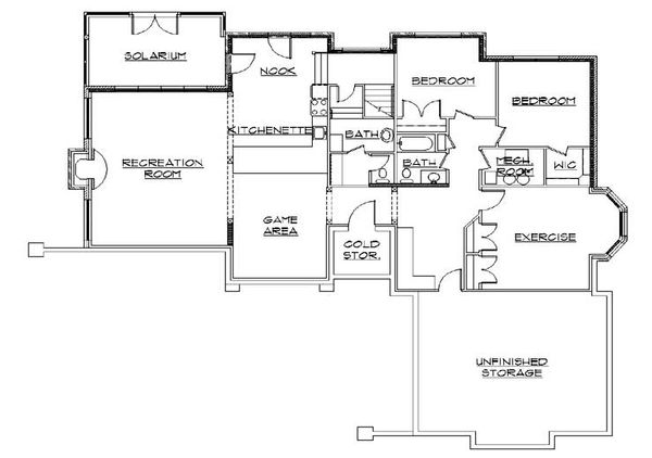
Lower Floor : 2202 sq/ft
Main Floor : 2808 sq/ft
Ceiling
Main Ceiling : 9'
Roof
Primary Pitch : 10:12
Exterior Wall Framing
Framing : 2"x6"
Bedroom Features
Walk In Closet
Kitchen Features
Breakfast Nook
Eating Bar
Kitchenette Wet Bar
Walk In Pantry Cabinet Pantry
Additional Room Features
Den Office Study Computer
Great Room Living Room
Hobby Rec Room Game Room
Mud Room
Storage Area
Unfinished Future Space
Wine Cellar
Outdoor Spaces
Grill Deck Sundeck
Code Compliance
Irc 2006
What's Included In This Plan Set
- Foundation Plan(s): This page shows all necessary notations and dimensions including footings, support columns, walls, and excavated/unexcavated areas.
- Floor Plan(s): Detailed plans, drawn to 1/4" scale for each level showing room dimensions, wall partitions, windows, etc. as well as the location of electrical outlets and switches.
- Exterior Elevations: A blueprint picture of all four sides showing exterior materials and measurements.
- Overhead Roof Plan(s): A view of the home from above showing roof pitch, peaks, valleys, and other details.
- Cross Section(s): A slice of the home from roof to foundation, showing relationships between floors, roof, and foundation.
- Construction Notes / Detail(s): Shows basic parts and assemblies recommended for the home so the builder can see how things come together.
Plan Set
$2550.00
$2550.00
$382.50
Foundation
$0.00
Additional Options
$425.00
$85.00
$33.15
$85.00
* Alternate Foundations may take time to prepare.
** Options with a fee may take time to prepare. Please call to confirm.
 
         
         
                 
                         
                         
                 
                 
                 
                 
                 
                 
                 
                 
                 
                 
                        