- Jump to:
- All (16)
- Floor plans (3)
Phone: 1-888-447-1946
See our Terms & Conditions and Privacy Policy.
Use Code CTBFALL
Residential Construction Guide
Learn Building Basics
This downloadable, 26-page guide is full of diagrams and details about plumbing, electrical, and more.
PLAN 939-14
This plan can be customized
Tell us about your desired changes so we can prepare an estimate for the design service. Click the button to submit your request for pricing, or call 1-888-447-1946 for assistance.
Plan Description
Floor Plans
Full Specs & Features
Dimension
Depth : 39'
Height : 20' 3"
Width : 62'
Area
Basement Living: 1020 sq/ft height 9'
Basement Unfinished: 1045 sq/ft height 9'
First Floor: 2141 sq/ft height 9'
Garage: 864 sq/ft height 9'
Roof
Primary Pitch : 6:12
Roof Framing : Conventional
Roof Type : Shingle
Exterior Wall Framing
Exterior Wall Finish : Siding
Framing : Wood - 2x6 Wood - 2x4
Bedroom Features
Fireplace
Guest Suite
Main Floor Master Bedroom
Walk In Closet
Additional Room Features
Main Floor Laundry
Open Floor Plan
Sunroom
Outdoor Spaces
Deck
Screened Porch
Rooms
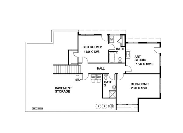
Bedroom 2:
175 sq/ft width 14' x depth 12' 6"
Bedroom 3:
275 sq/ft width 20' x depth 13' 9"
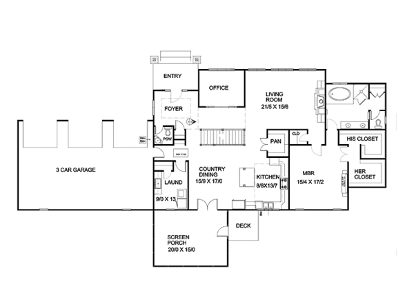
Country Kitchen:
267 sq/ft width 15' 9" x depth 17'
Kitchen:
117 sq/ft width 8' 8" x depth 13' 7"
Laundry Room:
117 sq/ft width 9' x depth 13'
Living Room:
331 sq/ft width 21' 5" x depth 15' 6"
Master Bedroom:
263 sq/ft width 15' 4" x depth 17' 2"
Porch - Screened:
300 sq/ft width 20' x depth 15'
Porch Front:
84 sq/ft
What's Included In This Plan Set
All plans are drawn at ¼” scale or larger and include :
- Foundation Plan: This page shows all necessary notations and dimensions including support columns, walls, and excavated/unexcavated areas.
- Exterior Elevations: Views of the home from all four sides showing exterior materials and measurements.
- Floor Plan(s): Detailed plans for each level showing room dimensions, wall partitions, windows and doors, etc.
- Cross Section: A slice of the home from roof to foundation, showing important details like stairs and wall construction.
- Overhead Roof Plan(s): A view of the home from above showing roof pitch, peaks, valleys, and other details.
- Construction Notes and Details: Shows the builder how things come together, like walls, the chimney, insulation, and more.
Plan Set
$1345.00
$1445.00
$1545.00
$1595.00
$1795.00
Foundation
$0.00
$0.00
Framing
$0.00
$0.00
Additional Options
$175.00
$45.00
$100.00
$39.00
$200.00
$55.00
* Alternate Foundations may take time to prepare.
** Options with a fee may take time to prepare. Please call to confirm.
 
         
         
                 
                         
                         
                         
                 
                 
                 
                 
                 
                 
                 
                 
                 
                 
                        