SAVED No Saved House Plans REGISTER LOGIN Empty Cart
BLOG
Our Favorites + Building Knowledge and Materials
Home>Articles

3 Bedroom Open-Concept Barndominium Plans

3 Bedroom Open-Concept Barndominium Plans
Enjoy rustic style with 3 bedroom open-concept barndominiums

3 Bedroom Open-Concept Barndominium Plans

By Courtney Pittman

Barndominiums aren’t just popular, they’re also practical. 3 bedroom open-concept barndominium plans pack a punch with smart layouts, modern kitchens, and thoughtful amenities. The term barndominium in this case refers to rustic designs that showcase barn-like style and sometimes big garages (and conventional framing instead of metal, though our barndominium collection does have some metal house plans). Here are five plans that offer modern floor plans and impressive curb appeal.

See our collection of barndominium plans.

Barndominium Plan with Wraparound Porch Barndominium Plan with Wraparound Porch Barndominium Plan with Wraparound Porch - Front Exterior

Barndominium Plan with Wraparound Porch Barndominium Plan with Wraparound Porch - Main Floor

Looking for a modern layout with outdoor living? Check out this 3 bedroom house plan. The open floor plan makes it easy to move between the main living areas. Dual sinks, a big walk-in closet, a separate tub, and a shower round out the primary suite. Unwind on the large wraparound porch. Another wow moment: the cool RV garage.

3 Bedroom Plan with Big Workshop 3 Bedroom Plan with Big Workshop 3 Bedroom Plan with Big Workshop - Front Exterior

3 Bedroom Plan with Big Workshop 3 Bedroom Plan with Big Workshop - Main Floor

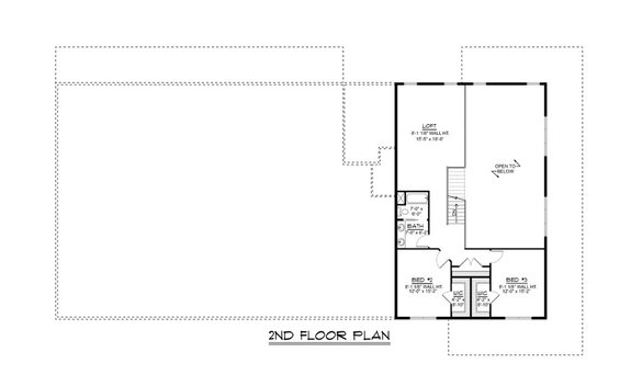
3 Bedroom Plan with Big Workshop 3 Bedroom Plan with Big Workshop - Upper Floor

Hello curb appeal! Here’s a barndominium house plan that makes an impression inside and out. The open layout places the living room, the dining area, and the kitchen together on the right side of the plan. At the back, the primary suite’s spacious walk-in closet opens directly to the laundry room for extra convenience.

Don’t miss the huge garage workshop and the wraparound porch. Upstairs, two secondary bedrooms (each with a walk-in closet) share a full bath, while a versatile loft completes this level.

Eye-Catching Barndominium Plan Eye-Catching Barndominium Plan Eye-Catching Barndominium Plan - Front Exterior

Eye-Catching Barndominium Plan Eye-Catching Barndominium Plan - Main Level

Board-and-batten siding, a wraparound porch, and lots of windows decorate the exterior of this barndominium design. Inside, storage space is plentiful with a walk-in closet in each bedroom, a large pantry, and lockers in the mudroom.

The primary suite rests at the back of the plan and is well-outfitted with a luxurious custom shower and a big walk-in closet. We love the open living area.

Two-Story House Plan with Three-Car Garage Two-Story House Plan with Three-Car Garage Two-Story House Plan with Three-Car Garage - Front Exterior

Two-Story House Plan with Three-Car Garage Two-story House Plan with Three-Car Garage - Main Level

Two-Story House Plan with Three-Car Garage Two-Story House Plan with Three-Car Garage - Upper Level

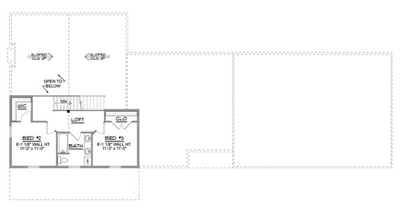
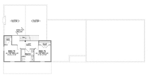
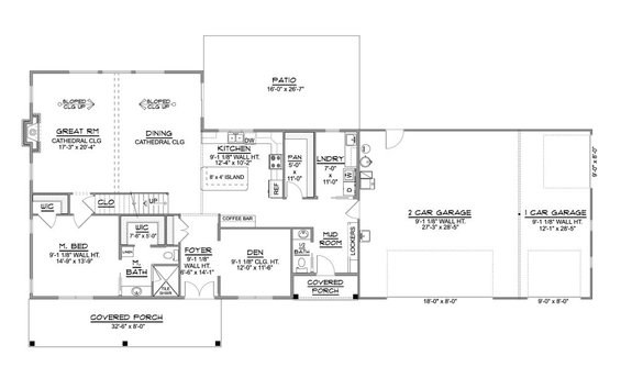
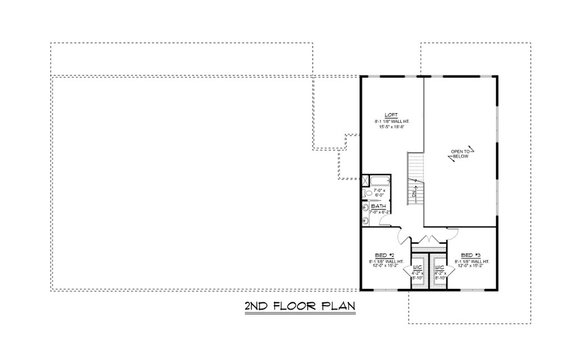
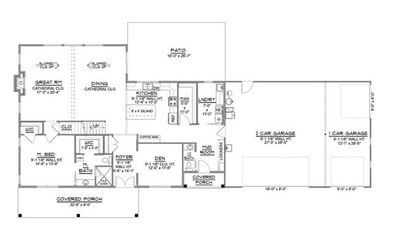
It doesn’t get much better than this open-concept design. The kitchen overlooks the dining area and the great room, which feature a cathedral ceiling. A walk-in pantry is ready to store groceries. Two walk-in closets and a spacious shower highlight the primary suite.

Other smart details include a handy mudroom (with lockers), a flexible den, and a three-car garage. Two additional bedrooms, a full bath, and a loft sit on the second level.

Barndominium Plan with Office Barndominium Plan with Office Barndominium Plan with Office - Front Exterior

Barndominium Plan with Office Barndominium Plan with Office - Main Level

Barndominium Plan with Office Barndominium Plan with Office - Upper Level

A metal roof shades the wraparound porch of this barndominium plan. The open layout places the living room, the dining area, and the kitchen at the heart of the home. The coffee bar is a fun amenity.

Check out the extra-large walk-in closet in the primary suite. Upstairs, the office gives you a quiet place to work. A loft, two bedrooms, and a bathroom round out this level.

Small Barndominium Plan Small Barndominium Plan Small Barndominium Plan - Front Exterior

Small Barndominium Plan Small Barndominium Plan - Main Level

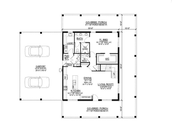
Building on a small lot? Check out this budget-friendly barndominium plan. A welcoming front porch invites you to enjoy the view. Inside, the hardworking mudroom offers lockers.

The island kitchen serves the living room and the dining area. On the right side of the plan, the primary suite offers privacy and a luxurious shower.

Explore barndominium plans.

3 Bedroom Open-Concept Barndominium Plans

Today's Deals