SAVED No Saved House Plans REGISTER LOGIN Empty Cart
BLOG
Our Favorites + Building Knowledge and Materials
Home>Articles

5 Cool 2,500 Sq. Ft. Barndominium Floor Plans for You!

5 Cool 2,500 Sq. Ft. Barndominium Floor Plans for You!
Perfect barndos: not too big, not too small

by Jenny Clark

Looking for a barndominium floor plan that's just the right size? Below you'll discover four 2,500 sq. ft. barndo layouts. Note: We offer metal-framed barndo designs as well as traditional wood-framed plans with a rustic barn look. Be sure to review the floor plans carefully, and give us a call if you have any questions: 1-888-447-1946

View the Barndominium Plans Collection

Country Curb Appeal

Single-Story Barndominium Plan 44-261 - Front Exterior Single-Story Barndominium Plan 44-261 - Front Exterior

Single-Story Barndominium Plan 44-261 - Main Floor Single-Story Barndominium Plan 44-261 - Main Floor

This wood-framed, barndominium-style floor plan with one story and 2,460 sq. ft. boasts beautiful country curb appeal, an open layout, a kitchen island, three bedrooms, and two baths. What's more, check out the oversized garage with a workshop in the back of the design. Need a little outdoor living space? Note the covered front and rear porches.

Four Bedrooms, Two Stories, Metal-Framed

4 Bedroom Metal-Framed Barndominium Plan 1092-35 - Front Exterior 4 Bedroom Metal-Framed Barndominium Plan 1092-35 - Front Exterior

4 Bedroom Metal-Framed Barndominium Plan 1092-35 - Main Floor 4 Bedroom Metal-Framed Barndominium Plan 1092-35 - Main Floor

4 Bedroom Metal-Framed Barndominium Plan 1092-35 - Upper Floor 4 Bedroom Metal-Framed Barndominium Plan 1092-35 - Upper Floor

Looking for a two-story barndominium with four bedrooms? This 2,528-sq.-ft. barndominium plan might be perfect for you. Cool call-outs of this design include dual vanities in the main-level primary suite, a mudroom, a walk-in pantry, a front porch, and a loft. Designed for use as a PEMB (Pre-engineered Metal Building), this metal house plan will typically be built using Z8 metal core and steel columns with insulated metal sheeting on the exterior and 2 X 4" studs for the interior walls.

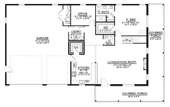
Big Garage + Wraparound Porch

Barndominium Plan with Big Garage 1064-111 - Front Exterior Barndominium Plan with Big Garage 1064-111 - Front Exterior

Barndominium Plan with Big Garage 1064-111 - Main Floor Barndominium Plan with Big Garage 1064-111 - Main Floor

Barndominium Plan with Big Garage 1064-111 - Upper Floor Barndominium Plan with Big Garage 1064-111 - Upper Floor

While wood-framed, this 2,456-sq.-ft. home design's curb appeal screams barndominium. Note the huge garage and wraparound porch, two common characteristics of barndo plans. Inside, this plan presents an open layout, a kitchen peninsula, three bedrooms, two-and-a-half baths, an office, and a loft.

Exactly 2,500 Sq. Ft.

2,500 Sq. Ft. Barndominium Plan 430-342 - Front Exterior 2,500 Sq. Ft. Barndominium Plan 430-342 - Front Exterior

Barndominium Plan with Big Garage 1064-111 - Main Floor 2,500 Sq. Ft. Barndominium Plan 430-342 - Main Floor

How perfect is this? Here we have a 2,500-sq.-ft., wood-framed barndominium design with chic modern farmhouse flair. Major perks of this floor plan include a wraparound porch, a huge three-car garage, an open layout, a kitchen island, a vaulted ceiling, and a walk-in pantry. Plus, check out the main-level primary suite, which sports a spa-like bathroom and a beamed ceiling in the bedroom. Sweet!

Single-Story, Metal-Framed

Single-Story Metal-Framed Barndominium Plan 120-274 - Front Exterior Single-Story Metal-Framed Barndominium Plan 120-274 - Front Exterior

Single-Story Metal-Framed Barndominium Plan 120-274 - Main Floor Single-Story Metal-Framed Barndominium Plan 120-274 - Main Floor

This 2,486-sq.-ft., metal-framed barndominium floor plan features an open layout, vaulted ceilings, and outdoor living. Note how this design maximizes convenience by offering a mudroom with a built-in bench and easy access to the pantry and powder room. Also note the primary suite's walk-in closet – it's so big it features an island!

See more barndominium floor plans here

Today's Deals